| 家事がしやすい家事楽動線!家族みんなが便利な間取りです♪3帖の洗面室はランドリースペースとして活用できます。洗う→干す→しまうができる家事楽洗面室です♪ | |||
| 物件コード | 00101-200402 | ||
|---|---|---|---|
| 物件名 | 北山 新築建売 希望が丘小学校区 | ||
| 交通 | 駅:信越線 長岡駅から徒歩54分、バス:西中入口から徒歩2分 | ||
| 物件所在地 | 新潟県長岡市北山4丁目39-8、39-17 | ||
| 物件種別 | 新築一戸建て | ||
| 構造 | 木造 | 階建 | 地上2階建 |
| 建ぺい率/容積率 | 60%/200% | ||
| 建物面積 | 1階 43.06㎡/ 2階 44.71㎡/ 計 87.77㎡ /26.55坪 | ||
| 土地面積 | 132.79㎡ /40.16坪 | ||
| 築年月 | 2025年7月(築10ヶ月) | ||
| 入居時期 | 随時入居(引き渡し)可 | ||
| 用途地域 | 第1種中高層住居専用地域 | 地目 | 宅地 (現状:宅地) |
| 都市計画 | 市街化区域 | 学校区 | 希望が丘小学校(600m)・西中学校(650m) |
| 形状 | 間口 7.2m × 奥行 18.2m | 道路 | 西側 市道 幅員6m |
| 私道 | - | ||
| 所在階/階数 | - | 号室 | - |
|---|---|---|---|
| 販売価格 | 24,500,000円 | 方位 | 北西 |
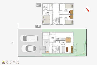
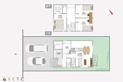
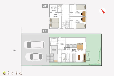
| 間取り |
3LDK (洋室:6、6、6) LDK14.5帖 洗面室3帖、土間収納2帖、WIC2帖 |
||
| 専有面積 | - | バルコニー面積 | - |
| その他面積 | - | 駐車場 | - |
| 管理費 | - | 修繕積立金 | - |
| 現況 | 空家 | ||
| 仲介手数料 | なし | ||
| 利用制限 | - | ||
| 設備 | 整形地、前面道路6m以上、日当り良好、閑静な住宅街、スーパー近く、BELS/省エネ基準適合認定建物、瑕疵担保保険付き、建物確認・完了検査済証あり、フラット35S適合、全室フローリング、駐車場2台以上、庭あり、TVインターホン、複層ガラス、ディンプルキー、システムキッチン、カウンターキッチン、IHクッキングヒーター、追いだき機能付き、バス1坪以上、温水洗浄便座、シャワー付き洗面台、エアコン、24時間換気システム、オール電化、省エネ給湯、上水道、下水道、電気、ウォークインクローゼット、全居室収納あり、シューズインクローゼット、シューズBOX、照明器具付き、即引き渡し可能 | ||
| 取引態様 | 売主 | ||
| 備考 | ↓ おすすめポイント ↓ 安心のご契約! ~ニコニコ住宅の建物価格について~ 表示価格には、 「土地」「建物」 「瑕疵担保責任保険」 「長期保証」「クリーニング費用」 「建物内の展示物撤収費用」 がきちんと含まれますのでご安心ください。 家事の時間を短縮できるよう、 家事楽にこだわった間取りです。 アウトドア用品や除雪道具も収納できる! 1坪の広々土間収納があります。 通学や買い物に便利な立地です! ■セブンイレブン北山2丁目店 徒歩5分(350m) ■ウオロク北山店 徒歩7分(550m) ■希望が丘小学校 徒歩8分(600m) ■西中学校 徒歩9分(650m) ■アクロスプラザ南七日町 車4分(1.6km) ■イオン 車5分(1.8km) ■リバーサイド千秋 車7分(2.8km) LDKエアコン、カーテン、2階トイレ付です! 建売とは思えない! 手厚いアフターサービスが自慢の家 最長60年長期保証の家: 地盤・基礎・構造・雨漏りは基本保証20年 メンテナンス実施で最長60年 設備保証10年: ユニットバス・システムキッチン・給湯設備・多機能便座 無料点検:10年間で4回実施 緊急駆けつけサービス:24時間365日10年間 建築確認番号 第R06-2396号 |
||
| 情報登録日 | 2025/12/20 | 次回更新予定日 | 2026/06/05 |
| 取引条件有効期限 | 2026/12/31 | ||
|
|
|
|
| TEL: | 0258-24-1110 |
|---|---|
| 所在地: | 新潟県長岡市宝4丁目2番地25 |
| 交通: | 「宝4丁目」バス停より徒歩2分 |
| 営業時間: | 8:30 ~ 17:30/定休日:土曜・日曜・祝日 |
| 免許番号: | 新潟県知事(13)1619号 |
| 所属団体名: | 新潟県宅地建物取引業協会 長岡支部 |
| 取引態様: | 売主 |