| 物件コード | 00090-200040 | ||
|---|---|---|---|
| 物件名 | 売モーテル 愛花夢・長岡 | ||
| 交通 | 駅:信越線 長鳥駅から徒歩110分、バス:田代から徒歩6分 | ||
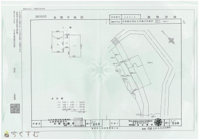
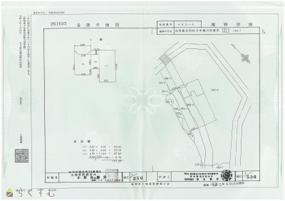
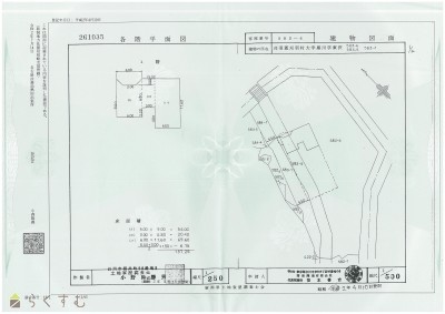
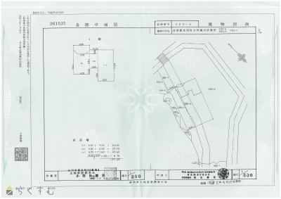
| 物件所在地 | 新潟県刈羽郡刈羽村黒川584-1 | ||
| 物件種別 | 投資物件・その他 | ||
| 物件区分 | その他 | ||
| 構造 | 鉄筋コン | 階建 | 地上3階建 |
| 建ぺい率/容積率 | 70%/200% | ||
| 建物面積 | 1階 137.25㎡/ 2階 501.04㎡/ 3階 495㎡/ 計 1,133.29㎡ /342.82坪 | ||
| 土地面積 | 3,330.98㎡ /1,007.62坪 | ||
| 築年月 | 1990年2月(築36年) | ||
| 入居時期 | 随時入居(引き渡し)可 | ||
| 用途地域 | 無指定 | 地目 | 宅地 (現状:宅地) |
| 都市計画 | 非線引き都市計画区域 | 学校区 | 刈羽小学校(7,375m)・刈羽中学校(7,674m) |
| 形状 | 間口 75m × 奥行 42m | 道路 | 国道八号線 |
| 私道 | - | ||
| 所在階/階数 | - | 号室 | - |
|---|---|---|---|
| 販売価格 | 90,000,000円 | 方位 | - |
| 表面利回り (満室想定時) |
- | 満室想定年収 | - (想定月収: - ) |
| 現行利回り | - | 現行年間年収 | - |
| 住戸数 | - | ||
| 間取り | - | ||
| 専有面積 | - | バルコニー面積 | - |
| その他面積 | - | 駐車場 | - |
| 管理費 | - | 修繕積立金 | - |
| 現況 | 指定なし | ||
| 仲介手数料 | 3,300,000円 | ||
| 利用制限 | - | ||
| 設備 | 事業向け | ||
| 取引態様 | 一般 | ||
| 備考 | 売買価格は、ご相談に乗ります オーナーチェンジ物件です。 |
||
| 情報登録日 | 2025/03/08 | 次回更新予定日 | 2026/06/06 |
| 取引条件有効期限 | 2025/04/04 | ||
|
|
|
|
|
|
| TEL: | 0257-24-3711 |
|---|---|
| 所在地: | 新潟県柏崎市北半田2丁目1番6号 |
| 交通: | 越後線 東柏崎駅 徒歩20分 |
| 営業時間: | 10:00~18:00 事前予約で営業時間外でも相談可能/定休日:水曜日、日曜日(事前予約で内見及びご相談可能) |
| 免許番号: | 新潟県知事(12)第2490号 |
| 所属団体名: | 新潟県宅地建物取引業協会 柏崎支部 |
| 取引態様: | 一般 |