| 物件コード | 00088-200837 | ||
|---|---|---|---|
| 物件名 | 柏崎市四谷3丁目1番売り住宅 | ||
| 交通 | 駅:越後線 東柏崎駅から徒歩13分、バス:日吉町から徒歩2分 | ||
| 物件所在地 | 新潟県柏崎市四谷三丁目1番38号 | ||
| 物件種別 | 中古一戸建て | ||
| 構造 | 木造 | 階建 | 地上2階建 |
| 建ぺい率/容積率 | 60%/200% | ||
| 建物面積 | 1階 69.16㎡/ 2階 23.18㎡/ 計 92.34㎡ /27.93坪 | ||
| 土地面積 | 126.39㎡ /38.23坪 | ||
| 築年月 | 1970年6月(築55年) | ||
| 入居時期 | 相談 | ||
| 用途地域 | 第1種住居地域 | 地目 | 宅地 (現状:宅地) |
| 都市計画 | 非線引き都市計画区域 | 学校区 | 比角小学校(300m)・第二中学校(700m) |
| 形状 | - | 道路 | 柏崎市道3-4号線(消雪パイプ・歩道除雪) |
| 私道 | - | ||
| 所在階/階数 | - | 号室 | - |
|---|---|---|---|
| 販売価格 | 4,300,000円 | 方位 | 西 |
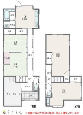
| 間取り |
4DK (和室:7.5畳、6畳) (洋室:12、9.2) 6.5DK インナーガレージ |
||
| 専有面積 | - | バルコニー面積 | - |
| その他面積 | - | 駐車場 | - |
| 管理費 | - | 修繕積立金 | - |
| 現況 | 空家 | ||
| 仲介手数料 | 330,000円 | ||
| 利用制限 | - | ||
| 設備 | システムキッチン、3口コンロ、バス1坪以上、温水洗浄便座、トイレ2か所以上、都市ガス、上水道、下水道、全居室収納あり | ||
| 取引態様 | 一般 | ||
| 備考 | 未登記の増築部分有り(H2増築) 現況有姿売買 ■シャッター付きガレージ、EV車充電設備新設済み ■浴室乾燥/暖房/冷房装置付きで快適 ■宅配ボックス(中古) ■2階ミニキッチン ■2階洋室の一部リフォーム済み ■カメラ付きインターホン ■一部の窓/ダブルサッシかペアガラス |
||
| 情報登録日 | 2026/02/13 | 次回更新予定日 | 2026/03/06 |
| 取引条件有効期限 | 2026/04/28 | ||
|
|
|
|
| TEL: | 0257-24-0034 |
|---|---|
| 所在地: | 新潟県柏崎市土合628-1 |
| 交通: | |
| 営業時間: | 8:30~17:30/定休日:土・日・祝(対応可能です) 年末年始・お盆・GW |
| 免許番号: | 新潟県知事(9)第3199号 |
| 所属団体名: | 新潟県宅地建物取引業協会 柏崎支部 |
| 取引態様: | 一般 |