| 物件コード | 00088-200742 | ||
|---|---|---|---|
| 物件名 | 西山町石地売分譲マンション | ||
| 交通 | 駅:越後線 石地駅から徒歩71分、バス:羅石前から徒歩9分 | ||
| 物件所在地 | 新潟県柏崎市西山町尾町159-14石地マンション415 | ||
| 物件種別 | 中古マンション | ||
| 構造 | 鉄筋コン | 階建 | 地上5階建 |
| 建ぺい率/容積率 | - | ||
| 建物面積 | - | ||
| 土地面積 | 4,816㎡ /1,456.84坪 | ||
| 築年月 | 1975年7月(築50年) | ||
| 入居時期 | 相談 | ||
| 用途地域 | 無指定 | 地目 | 山林 |
| 都市計画 | 都市計画区域外 | 学校区 | 二田小学校(6,948m)・西山中学校(6,412m) |
| 形状 | - | 道路 | 私道 |
| 私道 | - | ||
| 所在階/階数 | 4階/5階 | 号室 | 415号室 |
|---|---|---|---|
| 販売価格 | 400,000円 | 方位 | 北 |
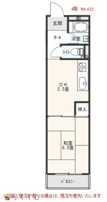
| 間取り |
1DK (和室:6畳) DK5.5 |
||
| 専有面積 | 25.08㎡ /7.58坪 | バルコニー面積 | 2.4㎡ /0.72坪 |
| その他面積 | - | 駐車場 | 1台 |
| 管理費 | 4,500円 | 修繕積立金 | 1,100円 |
| 現況 | 空家 | ||
| 仲介手数料 | 330,000円 | ||
| 利用制限 | - | ||
| 設備 | エレベーター、駐車場空きあり、2口コンロ、都市ガス、下水道、別荘 | ||
| 取引態様 | 専属専任 | ||
| 備考 | 駐車場:1台分無料 管理組合に加入して頂きます。 現況有姿売買 トイレと給湯器は故障していて使用できません。 仲介手数料別途 |
||
| 情報登録日 | 2025/12/18 | 次回更新予定日 | 2026/01/13 |
| 取引条件有効期限 | 2024/09/17 | ||
|
|
|
|
| TEL: | 0257-24-0034 |
|---|---|
| 所在地: | 新潟県柏崎市土合628-1 |
| 交通: | |
| 営業時間: | 8:30~17:30/定休日:土・日・祝(対応可能です) 年末年始12/28~1/5・お盆・GW |
| 免許番号: | 新潟県知事(9)第3199号 |
| 所属団体名: | 新潟県宅地建物取引業協会 柏崎支部 |
| 取引態様: | 専属専任 |