| 物件コード | 00083-200044 | ||
|---|---|---|---|
| 物件名 | アンジュ枇杷島 | ||
| 交通 | 駅:信越線 柏崎駅から徒歩12分、バス:宮場町から徒歩3分 | ||
| 物件所在地 | 新潟県柏崎市関町6-5 | ||
| 物件種別 | 投資物件・その他 | ||
| 物件区分 | 1棟売りマンション・アパート | ||
| 構造 | 木造 | 階建 | 地上2階建 | 
| 建ぺい率/容積率 | 60%/200% | ||
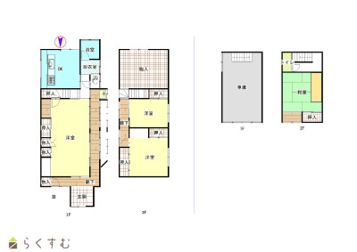
| 建物面積 | 計 192.35㎡ /58.18坪 | ||
| 土地面積 | 269.01㎡ /81.37坪 | ||
| 築年月 | 1976年10月(築49年) | ||
| 入居時期 | 相談 | ||
| 用途地域 | 第1種低層住居専用地域 | 地目 | 宅地 | 
| 都市計画 | 非線引き都市計画区域 | 学校区 | 枇杷島小学校(275m)・鏡が沖中学校(1,023m) | 
| 形状 | - | 道路 | - | 
| 私道 | - | ||
| 所在階/階数 | - | 号室 | - | 
|---|---|---|---|
| 販売価格 | 6,200,000円 | 方位 | - | 
| 表面利回り (満室想定時)  | 
						12% | 満室想定年収 | - (想定月収: - ) | 
| 現行利回り | - | 現行年間年収 | - | 
| 住戸数 | 1 | ||
| 間取り | 3SLDK | ||
| 専有面積 | 192.35㎡ /58.18坪 ~ 192.35㎡ /58.18坪 | バルコニー面積 | - | 
| その他面積 | - | 駐車場 | 2~3台 | 
| 管理費 | - | 修繕積立金 | - | 
| 現況 | 居住中 | ||
| 仲介手数料 | 270,600円 | ||
| 利用制限 | - | ||
| 設備 | 公営水道、都市ガス、下水道 | ||
| 取引態様 | 一般 | ||
| 備考 | - | ||
| 情報登録日 | 2024/11/07 | 次回更新予定日 | 2025/11/18 | 
| 取引条件有効期限 | 2025/12/31 | ||
| 
							 | 
						
							 
						 | 
					
| 
							 | 
						
							 | 
					
| TEL: | 0257-24-2545 | 
|---|---|
| 所在地: | 新潟県柏崎市東港町4番1号 | 
| 交通: | 柏崎駅 | 
| 営業時間: | 9:00~17:00/定休日:日曜日・祝日 | 
| 免許番号: | 新潟県知事(3)第5068号 | 
| 所属団体名: | 新潟県宅地建物取引協会 柏崎支部 | 
| 取引態様: | 一般 |