| 自社物件につきキャンペーン中! | |||
| 物件コード | 00080-200327 | ||
|---|---|---|---|
| 物件名 | ≪ミサワホームの分譲住宅≫ 丘陵公園分譲D棟 | ||
| 交通 | 駅:信越線 来迎寺駅から徒歩101分、バス:陽光台3丁目から徒歩4分 | ||
| 物件所在地 | 新潟県長岡市陽光台4丁目 | ||
| 物件種別 | 新築一戸建て | ||
| 構造 | 木質パネル接着工法 | 階建 | 地上2階建 |
| 建ぺい率/容積率 | 60%/200% | ||
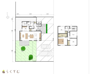
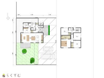
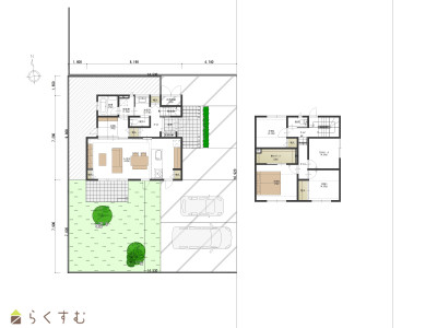
| 建物面積 | 1階 55.48㎡/ 2階 52.99㎡/ 計 108.47㎡ /32.81坪 | ||
| 土地面積 | 246.14㎡ /74.45坪 | ||
| 築年月 | 2024年10月(築1年) | ||
| 入居時期 | 随時入居(引き渡し)可 | ||
| 用途地域 | 第1種中高層住居専用地域 | 地目 | 宅地 |
| 都市計画 | 市街化区域 | 学校区 | 青葉台小学校(1,223m)・青葉台中学校(1,794m) |
| 形状 | 間口 16.93m × 奥行 14.53m | 道路 | 東側8.0m 消雪設備あり |
| 私道 | - | ||
| 所在階/階数 | - | 号室 | - |
|---|---|---|---|
| 販売価格 | 39,900,000円 | 方位 | 東 |
| 間取り |
4LDK (和室:3畳) (洋室:4.5、4.5、5、7.5) LDK18 |
||
| 専有面積 | - | バルコニー面積 | - |
| その他面積 | - | 駐車場 | - |
| 管理費 | - | 修繕積立金 | - |
| 現況 | - | ||
| 仲介手数料 | なし | ||
| 利用制限 | - | ||
| 設備 | 整形地、前面道路6m以上、日当り良好、閑静な住宅街、長期優良住宅、設計住宅性能評価付き、耐震構造、BELS/省エネ基準適合認定建物、瑕疵担保保険付き、建物確認・完了検査済証あり、LDK15畳以上、全室フローリング、天井高2.5m以上、駐車場2台以上、駐車場3台以上、南向き、庭あり、TVインターホン、複層ガラス、ディンプルキー、システムキッチン、カウンターキッチン、IHクッキングヒーター、浄水器、食器洗浄乾燥機、3口コンロ、追いだき機能付き、バス1坪以上、温水洗浄便座、シャワー付き洗面台、エアコン、床暖房、24時間換気システム、高気密高断熱住宅、ウッドデッキ・テラス、都市ガス、上水道、下水道、電気、ウォークインクローゼット、全居室収納あり、床下収納、シューズBOX、BS端子、LAN端子、照明器具付き、即引き渡し可能、バリアフリー | ||
| 取引態様 | 売主 | ||
| 備考 | <QUOカードプレゼントに関しまして> ※1家族1回限り ※将来的に住まいづくりを検討の方限定で、未成年・学生の方は除きます ※特典のみの目当てで来場された方には特典をお渡しできない場合がござます |
||
| 情報登録日 | 2026/03/27 | 次回更新予定日 | 2026/04/21 |
| 取引条件有効期限 | 2026/03/31 | ||
|
|
|
|
|
|
| TEL: | 0120-486-330 |
|---|---|
| 所在地: | 新潟県長岡市古正寺2丁目71番地 |
| 交通: | 長岡駅 |
| 営業時間: | 9:00~18:00/定休日:火・水 |
| 免許番号: | 国土交通大臣(3)8557号 |
| 所属団体名: | 新潟県宅地建物取引協会 長岡支部 |
| 取引態様: | 売主 |