| 物件コード | 00070-200086 | ||
|---|---|---|---|
| 物件名 | 栃尾原町事務所・店舗 | ||
| 交通 | 駅:信越線 見附駅から徒歩161分、バス:巻渕から徒歩8分 | ||
| 物件所在地 | 新潟県長岡市栃尾原町3丁目11-28 | ||
| 物件種別 | 投資物件・その他 | ||
| 物件区分 | その他 | ||
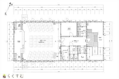
| 構造 | 木造 | 階建 | 地上1階建 | 
| 建ぺい率/容積率 | 60%/200% | ||
| 建物面積 | - | ||
| 土地面積 | 624.58㎡ /188.93坪 | ||
| 築年月 | 2012年11月(築13年) | ||
| 入居時期 | 相談 | ||
| 用途地域 | 第1種住居地域 | 地目 | 宅地・雑種地 | 
| 都市計画 | 市街化区域 | 学校区 | 栃尾東小学校(719m)・刈谷田中学校(627m) | 
| 形状 | - | 道路 | 栃尾原町29号線 | 
| 私道 | - | ||
| 所在階/階数 | - | 号室 | - | 
|---|---|---|---|
| 販売価格 | 9,800,000円 | 方位 | - | 
| 表面利回り (満室想定時)  | 
						- | 満室想定年収 | - (想定月収: - ) | 
| 現行利回り | - | 現行年間年収 | - | 
| 住戸数 | - | ||
| 間取り | - | ||
| 専有面積 | - | バルコニー面積 | - | 
| その他面積 | - | 駐車場 | - | 
| 管理費 | - | 修繕積立金 | - | 
| 現況 | 空家 | ||
| 仲介手数料 | 389,400円 | ||
| 利用制限 | - | ||
| 設備 | 事業向け | ||
| 取引態様 | 一般 | ||
| 備考 | 事務所や店舗・作業場として、大幅リフォームして寮の様な使い方等色々工夫次第です。 現況お引渡しの物件になります。 倉庫:平成24年築8.26㎡含む。  | 
					||
| 情報登録日 | 2025/03/31 | 次回更新予定日 | 2025/11/18 | 
| 取引条件有効期限 | 2025/06/30 | ||
| 
							 | 
						
							 
						 | 
					
| 
							 | 
						
							 | 
					
| TEL: | 0258-63-1112 | 
|---|---|
| 所在地: | 新潟県見附市市野坪町31-3 | 
| 交通: | 見附駅 | 
| 営業時間: | 9:00~17:00/定休日:水・木曜日 | 
| 免許番号: | 新潟県知事(9)第3180号 | 
| 所属団体名: | 公益社団法人 新潟県宅地建物取引業協会 三条支部 | 
| 取引態様: | 一般 |