| 物件コード | 00063-200096 | ||
|---|---|---|---|
| 物件名 | 見附市学校町 店舗 | ||
| 交通 | 駅:信越線 見附駅から徒歩20分、バス:見附保育園前から徒歩2分 | ||
| 物件所在地 | 新潟県見附市学校町1丁目477-6 | ||
| 物件種別 | 中古一戸建て | ||
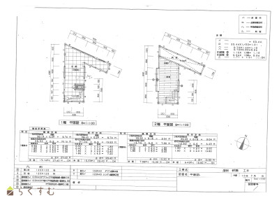
| 構造 | 木造 | 階建 | 地上2階建 |
| 建ぺい率/容積率 | 60%/200% | ||
| 建物面積 | 1階 30.19㎡/ 2階 20.25㎡/ 計 50.44㎡ /15.25坪 | ||
| 土地面積 | 131.51㎡ /39.78坪 | ||
| 築年月 | 1998年1月(築28年) | ||
| 入居時期 | 相談 | ||
| 用途地域 | 準工業地域 | 地目 | 宅地 |
| 都市計画 | 市街化区域 | 学校区 | 見附小学校(395m)・見附中学校(1,277m) |
| 形状 | 間口 10m | 道路 | 北側:市道 |
| 私道 | - | ||
| 所在階/階数 | - | 号室 | - |
|---|---|---|---|
| 販売価格 | 3,800,000円 | 方位 | - |
| 間取り | 2K | ||
| 専有面積 | - | バルコニー面積 | - |
| その他面積 | - | 駐車場 | - |
| 管理費 | - | 修繕積立金 | - |
| 現況 | 空家 | ||
| 仲介手数料 | 330,000円 | ||
| 利用制限 | - | ||
| 設備 | 日当り良好、駐車3台以上可能、都市ガス、上水道、下水道、田舎暮らし、事業向け | ||
| 取引態様 | 一般 | ||
| 備考 | 駐車場3台可(カーポート) 未登記建物 現況有姿取引 土地は4筆 |
||
| 情報登録日 | 2026/01/14 | 次回更新予定日 | 2026/04/20 |
| 取引条件有効期限 | 2026/06/08 | ||
|
|
|
|
|
|
| TEL: | 0258-78-4413 |
|---|---|
| 所在地: | 新潟県三島郡出雲崎町松本99-1 |
| 交通: | JR 出雲崎駅 |
| 営業時間: | 8:15~17:30/定休日:水曜・年末年始休暇、GW、夏季休暇 |
| 免許番号: | 新潟県知事(3)第5114号 |
| 所属団体名: | 新潟県宅地建物取引協会 長岡支部 |
| 取引態様: | 一般 |