| 金額を抑えてお求めやすい物件です | |||
| 物件コード | 00044-200703 | ||
|---|---|---|---|
| 物件名 | 長岡市小曽根 中古住宅 | ||
| 交通 | 駅:信越線 北長岡駅から徒歩31分 | ||
| 物件所在地 | 新潟県長岡市小曽根町475-5 | ||
| 物件種別 | 中古一戸建て | ||
| 構造 | 木造 | 階建 | 地上2階建 | 
| 建ぺい率/容積率 | 70%/200% | ||
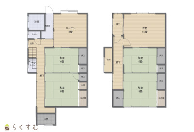
| 建物面積 | 1階 67.47㎡/ 2階 60.14㎡/ 計 127.61㎡ /38.6坪 | ||
| 土地面積 | 182㎡ /55.05坪 | ||
| 築年月 | 1970年12月(築54年) | ||
| 入居時期 | 随時入居(引き渡し)可 | ||
| 用途地域 | 無指定 | 地目 | 宅地 | 
| 都市計画 | 市街化調整区域 | 学校区 | 富曾亀小学校(782m)・東北中学校(1,471m) | 
| 形状 | 間口 9.1m × 奥行 20m | 道路 | 北側:公道 5.5m | 
| 私道 | - | ||
| 所在階/階数 | - | 号室 | - | 
|---|---|---|---|
| 販売価格 | 2,300,000円 | 方位 | - | 
| 間取り | 5DK | ||
| 専有面積 | - | バルコニー面積 | - | 
| その他面積 | - | 駐車場 | - | 
| 管理費 | - | 修繕積立金 | - | 
| 現況 | 空家 | ||
| 仲介手数料 | 330,000円 | ||
| 利用制限 | - | ||
| 設備 | 閑静な住宅街、駐車2台可能、バス1坪以上、都市ガス、上水道、下水道 | ||
| 取引態様 | 一般 | ||
| 備考 | ■現況有姿での引渡しとなります ■売主による契約不適合責任は免責となります | ||
| 情報登録日 | 2025/11/04 | 次回更新予定日 | 2025/11/19 | 
| 取引条件有効期限 | 2025/12/31 | ||
| 
							 | 
						
							 
						 | 
					
| 
							 | 
						
							 | 
					
| TEL: | 0258-86-6934 | 
|---|---|
| 所在地: | 新潟県長岡市大島本町3丁目10番8号202号室 | 
| 交通: | |
| 営業時間: | 9:30~18:00/定休日:水曜日、日曜日 | 
| 免許番号: | 新潟県知事(3)第4978号 | 
| 所属団体名: | ブレインリアルエステート合同会社 | 
| 取引態様: | 一般 |