| 敷地内消雪設備・複数台駐車スペースあり | |||
| 物件コード | 00043-200206 | ||
|---|---|---|---|
| 物件名 | 高見町(中古戸建 付)物置(事務所・倉庫) | ||
| 交通 | 駅:信越線 押切駅から徒歩33分、バス:高見から徒歩1分 | ||
| 物件所在地 | 新潟県長岡市高見町759番地7 | ||
| 物件種別 | 投資物件・その他 | ||
| 物件区分 | その他 | ||
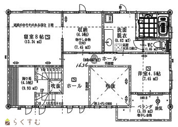
| 構造 | 木造 | 階建 | 地上2階建 |
| 建ぺい率/容積率 | 60%/200% | ||
| 建物面積 | 1階 41.38㎡/ 2階 42.2㎡/ 計 83.58㎡ /25.28坪 | ||
| 土地面積 | 507.36㎡ /153.47坪 | ||
| 築年月 | 2008年7月(築17年) | ||
| 入居時期 | 2026年7月以降 | ||
| 用途地域 | 準工業地域 | 地目 | 宅地 (現状:宅地) |
| 都市計画 | 市街化区域 | 学校区 | 黒条小学校(1,045m)・堤岡中学校(1,192m) |
| 形状 | 間口 19.55m × 奥行 20.76m | 道路 | 西側14.7m、南側17m |
| 私道 | - | ||
| 所在階/階数 | - | 号室 | - |
|---|---|---|---|
| 販売価格 | 29,800,000円 | 方位 | - |
| 表面利回り (満室想定時) |
- | 満室想定年収 | - (想定月収: - ) |
| 現行利回り | - | 現行年間年収 | - |
| 住戸数 | - | ||
| 間取り | - | ||
| 専有面積 | - | バルコニー面積 | - |
| その他面積 | - | 駐車場 | - |
| 管理費 | - | 修繕積立金 | - |
| 現況 | 居住中 | ||
| 仲介手数料 | 1,049,400円 | ||
| 利用制限 | - | ||
| 設備 | 角地、駐車場(近隣含む)、公営水道、LPG、下水道、事業向け | ||
| 取引態様 | 一般 | ||
| 備考 | 個人事業主・法人経営者向け!!自宅+倉庫・物置用建物付 | ||
| 情報登録日 | 2026/04/11 | 次回更新予定日 | 2026/06/05 |
| 取引条件有効期限 | 2026/12/31 | ||
|
|
|
|
| TEL: | 0258-21-3751 |
|---|---|
| 所在地: | 新潟県長岡市古正寺町108-1 |
| 交通: | 越後交通「西病院前」バス停徒歩約5分 |
| 営業時間: | 9:00~18:00/定休日:年末・年始・GW・夏期(お盆) |
| 免許番号: | 新潟県知事(10)第2891号 |
| 所属団体名: | 新潟県宅地建物取引業協会 長岡支部 |
| 取引態様: | 一般 |