| 敷地内消雪設備・複数台駐車スペースあり | |||
| 物件コード | 00043-200205 | ||
|---|---|---|---|
| 物件名 | 高見町中古戸建&物置(事務所・倉庫) | ||
| 交通 | 駅:信越線 押切駅から徒歩33分、バス:高見から徒歩1分 | ||
| 物件所在地 | 新潟県長岡市高見町759番地7 | ||
| 物件種別 | 中古一戸建て | ||
| 構造 | 木造 | 階建 | 地上2階建 |
| 建ぺい率/容積率 | 60%/200% | ||
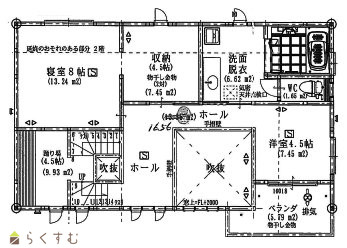
| 建物面積 | 1階 69.26㎡/ 2階 58.79㎡/ 計 128.05㎡ /38.73坪 | ||
| 土地面積 | 507.36㎡ /153.47坪 | ||
| 築年月 | 2008年7月(築17年) | ||
| 入居時期 | 2026年7月以降 | ||
| 用途地域 | 準工業地域 | 地目 | 宅地 (現状:宅地) |
| 都市計画 | 市街化区域 | 学校区 | 黒条小学校(1,045m)・堤岡中学校(1,192m) |
| 形状 | 間口 19.55m × 奥行 20.76m | 道路 | 西側14.7m、南側17m |
| 私道 | - | ||
| 所在階/階数 | - | 号室 | - |
|---|---|---|---|
| 販売価格 | 29,800,000円 | 方位 | 南西 |
| 間取り |
3LDK (和室:6畳) (洋室:8、4.5) LDK約20畳 他、収納4.5畳、(仕切り無)洋室(相当スペース)4.5畳 |
||
| 専有面積 | - | バルコニー面積 | - |
| その他面積 | - | 駐車場 | - |
| 管理費 | - | 修繕積立金 | - |
| 現況 | 居住中 | ||
| 仲介手数料 | 1,049,400円 | ||
| 利用制限 | - | ||
| 設備 | 角地、新築時図面あり、建物確認・完了検査済証あり、LDK15帖以上、駐車2台可能、駐車場融雪設備あり、南向き、TVインターホン、システムキッチン、カウンターキッチン、IHクッキングヒーター、バス1坪以上、温水洗浄便座、トイレ2か所以上、エアコンあり、LPG、上水道、下水道、ウォークインクローゼット、事業向け | ||
| 取引態様 | 一般 | ||
| 備考 | 個人事業主・法人経営者向け!!自宅+倉庫・物置用建物付 | ||
| 情報登録日 | 2026/04/11 | 次回更新予定日 | 2026/06/06 |
| 取引条件有効期限 | 2026/12/31 | ||
|
|
|
|
| TEL: | 0258-21-3751 |
|---|---|
| 所在地: | 新潟県長岡市古正寺町108-1 |
| 交通: | 越後交通「西病院前」バス停徒歩約5分 |
| 営業時間: | 9:00~18:00/定休日:年末・年始・GW・夏期(お盆) |
| 免許番号: | 新潟県知事(10)第2891号 |
| 所属団体名: | 新潟県宅地建物取引業協会 長岡支部 |
| 取引態様: | 一般 |