| 物件コード | 00041-200756 | ||
|---|---|---|---|
| 物件名 | ドーン・レジデンス 210 | ||
| 交通 | 駅:上越新幹線 長岡駅から徒歩28分、バス:宮内7丁目から徒歩1分 | ||
| 物件所在地 | 新潟県長岡市宮内7丁目3番9号ドーン・レジデンス 210号 | ||
| 物件種別 | 投資物件・その他 | ||
| 物件区分 | マンション(区分所有) | ||
| 構造 | 鉄筋コン | 階建 | 地上9階建 |
| 建ぺい率/容積率 | 60%/200% | ||
| 建物面積 | - | ||
| 土地面積 | - | ||
| 築年月 | 1992年8月(築33年) | ||
| 入居時期 | 相談 | ||
| 用途地域 | 第1種住居地域 | 地目 | 宅地 (現状:宅地) |
| 都市計画 | 市街化区域 | 学校区 | 宮内小学校(766m)・宮内中学校(1,012m) |
| 形状 | - | 道路 | - |
| 私道 | - | ||
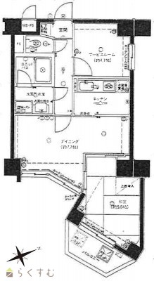
| 所在階/階数 | 2階/9階 | 号室 | 210号室 |
|---|---|---|---|
| 販売価格 | 4,500,000円 | 方位 | - |
| 表面利回り (満室想定時) |
17.33% | 満室想定年収 | 780,000円 (想定月収: 65,000円 ) |
| 現行利回り | - | 現行年間年収 | - |
| 住戸数 | 1 | ||
| 間取り | 1SDK | ||
| 専有面積 | 45.42㎡ /13.73坪 ~ 45.42㎡ /13.73坪 | バルコニー面積 | 5.6㎡ /1.69坪 |
| その他面積 | - | 駐車場 | 9,000円(賃料含む) |
| 管理費 | 10,500円 | 修繕積立金 | 5,250円 |
| 現況 | 賃貸中 | ||
| 仲介手数料 | なし | ||
| 利用制限 | ペット:可、楽器:不可 | ||
| 設備 | エレベーター | ||
| 取引態様 | 売主 | ||
| 備考 | ①水道子メーター制 ②ケーブルTV視聴料2,200円(税別)/月がかかります。 |
||
| 情報登録日 | 2023/11/27 | 次回更新予定日 | 2026/06/05 |
| 取引条件有効期限 | 2023/12/25 | ||
|
|
|
|
| TEL: | 0258-33-7711 |
|---|---|
| 所在地: | 新潟県長岡市柏町1丁目4-33 |
| 交通: | 長岡駅 |
| 営業時間: | 9:00~17:30/定休日:土曜日・日曜日・祝日・お盆・年末年始 |
| 免許番号: | 新潟県知事(1)第5568号 |
| 所属団体名: | (公社)新潟県宅地建物取引業協会,(公社)首都圏不動産公正取引協議会,(公財)日本賃貸住宅管理協会 |
| 取引態様: | 売主 |