| 物件コード | 00040-201188 | ||
|---|---|---|---|
| 物件名 | チサンマンション旭町 | ||
| 交通 | 駅:信越線 長岡駅から徒歩10分 | ||
| 物件所在地 | 新潟県長岡市旭町2-3-7チサンマンション旭町 401 | ||
| 物件種別 | 中古マンション | ||
| 構造 | 鉄筋コン | 階建 | 地上6階建 |
| 建ぺい率/容積率 | 80%/400% | ||
| 建物面積 | 計 1,819.72㎡ /550.46坪 | ||
| 土地面積 | 463.5㎡ /140.2坪 | ||
| 築年月 | 1980年12月(築45年) | ||
| 入居時期 | 随時入居(引き渡し)可 | ||
| 用途地域 | 商業地域 | 地目 | 宅地 (現状:宅地) |
| 都市計画 | 市街化区域 | 学校区 | 阪之上小学校(733m)・南中学校(473m) |
| 形状 | - | 道路 | 公道 |
| 私道 | - | ||
| 所在階/階数 | 4階/6階 | 号室 | 401号室 |
|---|---|---|---|
| 販売価格 | 2,000,000円 | 方位 | 南東 |
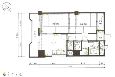
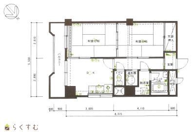
| 間取り |
2DK (和室:6畳、6畳) 5.5 |
||
| 専有面積 | 45.73㎡ /13.83坪 | バルコニー面積 | 5.41㎡ /1.63坪 |
| その他面積 | - | 駐車場 | - |
| 管理費 | 9,400円 | 修繕積立金 | 11,300円 |
| 現況 | 空家 | ||
| 仲介手数料 | 330,000円 | ||
| 利用制限 | ペット:不可、楽器:不可 | ||
| 設備 | 角部屋、2階以上、日当り良好、閑静な住宅街、最寄駅近く、エレベーター、和室あり、南向き、都市ガス、公営水道、下水道、即入居可能 | ||
| 取引態様 | 一般 | ||
| 備考 | - | ||
| 情報登録日 | 2026/01/07 | 次回更新予定日 | 2026/06/05 |
| 取引条件有効期限 | 2026/04/06 | ||
|
|
|
|
| TEL: | 0120-1818-27 |
|---|---|
| 所在地: | 新潟県長岡市千歳1-3-25 |
| 交通: | 長岡駅 |
| 営業時間: | 8時30分~17時30分(大手支店は9時~18時)/定休日:本社:土日祝日(事前予約での対応可能)、支店:日曜祝日第5土曜(毎年2月下旬から3月は休みなし) |
| 免許番号: | 新潟県知事(17)第191号 |
| 所属団体名: | 新潟県宅地建物取引協会 長岡支部 |
| 取引態様: | 一般 |