| 物件コード | 00040-201162 | ||
|---|---|---|---|
| 物件名 | 三条市石上中古住宅 | ||
| 交通 | 駅:弥彦線 北三条駅から徒歩17分、バス:新潟木下前から徒歩3分 | ||
| 物件所在地 | 新潟県三条市石上1丁目2-20 | ||
| 物件種別 | 中古一戸建て | ||
| 構造 | 木造 | 階建 | 地上2階建 | 
| 建ぺい率/容積率 | 60%/200% | ||
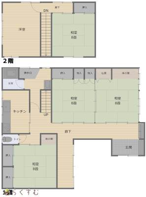
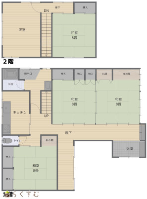
| 建物面積 | 1階 96.69㎡/ 2階 35.21㎡/ 計 131.9㎡ /39.89坪 | ||
| 土地面積 | 198.51㎡ /60.04坪 | ||
| 築年月 | 1981年7月(築44年) | ||
| 入居時期 | 随時入居(引き渡し)可 | ||
| 用途地域 | 第1種住居地域 | 地目 | 宅地 (現状:宅地) | 
| 都市計画 | 非線引き都市計画区域 | 学校区 | 上林小学校(1,725m)・第三中学校(850m) | 
| 形状 | - | 道路 | 北側 公道 8m | 
| 私道 | - | ||
| 所在階/階数 | - | 号室 | - | 
|---|---|---|---|
| 販売価格 | 4,980,000円 | 方位 | - | 
| 間取り | 5K | ||
| 専有面積 | - | バルコニー面積 | - | 
| その他面積 | - | 駐車場 | - | 
| 管理費 | - | 修繕積立金 | - | 
| 現況 | 空家 | ||
| 仲介手数料 | 330,000円 | ||
| 利用制限 | - | ||
| 設備 | 閑静な住宅街 | ||
| 取引態様 | 専任 | ||
| 備考 | 駐車スペースは約1台分 給湯器は現在撤去されております  | 
					||
| 情報登録日 | 2025/09/17 | 次回更新予定日 | 2025/11/19 | 
| 取引条件有効期限 | 2025/12/31 | ||
							 
						 | 
						
							 
						 | 
					
							 
						 | 
						
							 
						 | 
					
| TEL: | 0120-1818-27 | 
|---|---|
| 所在地: | 新潟県長岡市千歳1-3-25 | 
| 交通: | 長岡駅 | 
| 営業時間: | 8時30分~17時30分(大手支店は9時~18時)/定休日:本社:土日祝日(事前予約での対応可能)、支店:日曜祝日第5土曜(毎年2月下旬から3月は休みなし) | 
| 免許番号: | 新潟県知事(17)第191号 | 
| 所属団体名: | 新潟県宅地建物取引協会 長岡支部 | 
| 取引態様: | 専任 |