| 物件コード | 00040-201155 | ||
|---|---|---|---|
| 物件名 | 長町中古住宅 | ||
| 交通 | 駅:信越線 長岡駅から徒歩17分、バス:昭和通りから徒歩2分 | ||
| 物件所在地 | 新潟県長岡市長町2丁目2-2 | ||
| 物件種別 | 中古一戸建て | ||
| 構造 | 木造 | 階建 | 地上2階建 |
| 建ぺい率/容積率 | 80%/300% | ||
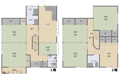
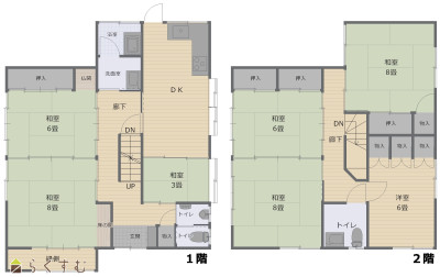
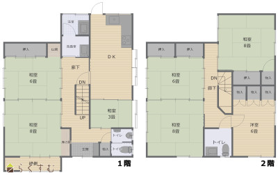
| 建物面積 | 1階 68.63㎡/ 2階 66.24㎡/ 計 134.87㎡ /40.79坪 | ||
| 土地面積 | 120.93㎡ /36.58坪 | ||
| 築年月 | 1983年10月(築42年) | ||
| 入居時期 | 随時入居(引き渡し)可 | ||
| 用途地域 | 近隣商業地域 | 地目 | 宅地 (現状:宅地) |
| 都市計画 | 市街化区域 | 学校区 | 神田小学校(242m)・東中学校(836m) |
| 形状 | - | 道路 | 東側 公道 4m |
| 私道 | - | ||
| 所在階/階数 | - | 号室 | - |
|---|---|---|---|
| 販売価格 | 7,800,000円 | 方位 | 東 |
| 間取り | 6DK | ||
| 専有面積 | - | バルコニー面積 | - |
| その他面積 | - | 駐車場 | - |
| 管理費 | - | 修繕積立金 | - |
| 現況 | 空家 | ||
| 仲介手数料 | 330,000円 | ||
| 利用制限 | - | ||
| 設備 | 閑静な住宅街 | ||
| 取引態様 | 専任 | ||
| 備考 | - | ||
| 情報登録日 | 2025/12/25 | 次回更新予定日 | 2026/06/05 |
| 取引条件有効期限 | 2025/12/31 | ||
|
|
|
|
| TEL: | 0120-1818-27 |
|---|---|
| 所在地: | 新潟県長岡市千歳1-3-25 |
| 交通: | 長岡駅 |
| 営業時間: | 8時30分~17時30分(大手支店は9時~18時)/定休日:本社:土日祝日(事前予約での対応可能)、支店:日曜祝日第5土曜(毎年2月下旬から3月は休みなし) |
| 免許番号: | 新潟県知事(17)第191号 |
| 所属団体名: | 新潟県宅地建物取引協会 長岡支部 |
| 取引態様: | 専任 |