| ★車2台分のインナーガレージあり★富曽亀小学校・東北中学校まで徒歩圏内★川崎東小学校への学区外就学可能区域 | |||
| 物件コード | 00040-201106 | ||
|---|---|---|---|
| 物件名 | 新保1丁目 売住宅 | ||
| 交通 | 駅:信越線 北長岡駅から徒歩14分、バス:新保1丁目から徒歩3分 | ||
| 物件所在地 | 新潟県長岡市新保1丁目9-31 | ||
| 物件種別 | 中古一戸建て | ||
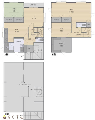
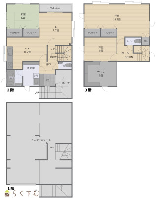
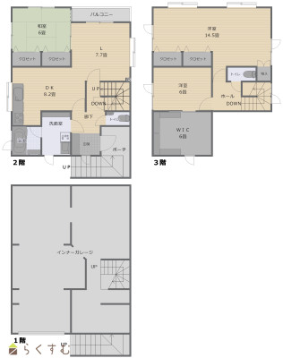
| 構造 | 木造鉄筋コン | 階建 | 地上3階建 |
| 建ぺい率/容積率 | 60%/200% | ||
| 建物面積 | 1階 66.24㎡/ 2階 59.62㎡/ 3階 56.31㎡/ 計 182.17㎡ /55.1坪 | ||
| 土地面積 | 227.23㎡ /68.73坪 | ||
| 築年月 | 1988年11月(築37年) | ||
| 入居時期 | 随時入居(引き渡し)可 | ||
| 用途地域 | 第1種中高層住居専用地域 | 地目 | 宅地 |
| 都市計画 | 市街化区域 | 学校区 | 富曾亀小学校(509m)・東北中学校(875m) |
| 形状 | 間口 12.3m × 奥行 18m | 道路 | 北側 公道 幅員約5.7m 融雪道路 |
| 私道 | - | ||
| 所在階/階数 | - | 号室 | - |
|---|---|---|---|
| 販売価格 | 21,200,000円 | 方位 | 北 |
| 間取り |
3LDK (和室:6畳) (洋室:14.5、6) LDK15.9 |
||
| 専有面積 | - | バルコニー面積 | - |
| その他面積 | - | 駐車場 | - |
| 管理費 | - | 修繕積立金 | - |
| 現況 | 空家 | ||
| 仲介手数料 | なし | ||
| 利用制限 | - | ||
| 設備 | スーパー近く、LDK15帖以上、駐車2台可能、TVインターホン、システムキッチン、IHクッキングヒーター、食器洗浄乾燥機、2口コンロ、追いだき機能付き、浴室乾燥機、バス1坪以上、温水洗浄便座、トイレ2か所以上、シャワー付き洗面台、エアコンあり、24時間換気システム、都市ガス、上水道、下水道、ウォークインクローゼット、全居室収納あり、シューズBOX、内装リフォーム済み | ||
| 取引態様 | 売主 | ||
| 備考 | ※第二種高度地区、建築基準法第22条区域、まちなか居住区域に該当します。 | ||
| 情報登録日 | 2025/10/16 | 次回更新予定日 | 2026/03/07 |
| 取引条件有効期限 | 2026/01/15 | ||
|
|
|
|
|
|
| TEL: | 0120-1818-27 |
|---|---|
| 所在地: | 新潟県長岡市千歳1-3-25 |
| 交通: | 長岡駅 |
| 営業時間: | 8時30分~17時30分(大手支店は9時~18時)/定休日:本社:土日祝日(事前予約での対応可能)、支店:日曜祝日第5土曜(毎年2月下旬から3月は休みなし) |
| 免許番号: | 新潟県知事(17)第191号 |
| 所属団体名: | 新潟県宅地建物取引協会 長岡支部 |
| 取引態様: | 売主 |