| 当社売主につき仲介手数料不要! | |||
| 物件コード | 00037-200114 | ||
|---|---|---|---|
| 物件名 | 柳橋町77坪売土地 | ||
| 交通 | 駅:信越線 柏崎駅から徒歩12分、バス:枇杷島から徒歩2分 | ||
| 物件所在地 | 新潟県柏崎市柳橋町732-1 | ||
| 物件種別 | 売土地・分譲地 | ||
| 物件区分 | 売土地 | ||
| 構造 | - | 階建 | - |
| 建ぺい率/容積率 | 60%/200% | ||
| 建物面積 | - | ||
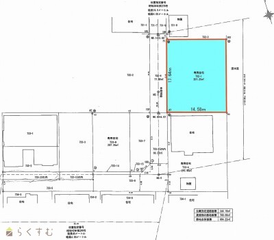
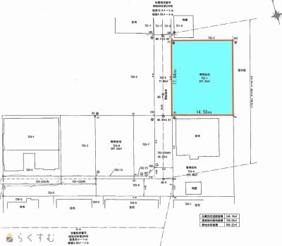
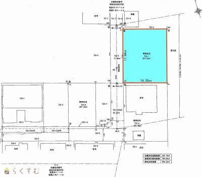
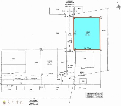
| 土地面積 | 257.25㎡ /77.81坪 | ||
| 築年月 | - | ||
| 入居時期 | 相談 | ||
| 用途地域 | 第1種住居地域 | 地目 | 宅地 (現状:宅地) |
| 都市計画 | 非線引き都市計画区域 | 学校区 | 枇杷島小学校(217m)・鏡が沖中学校(1,164m) |
| 形状 | 間口 17.64m × 奥行 14.58m | 道路 | 西側:幅員4m位置指定道路第276号 |
| 私道 | - | ||
| 所在階/階数 | - | 号室 | - |
|---|---|---|---|
| 販売価格 | 7,781,000円 | 方位 | - |
| 間取り | - | ||
| 専有面積 | - | バルコニー面積 | - |
| その他面積 | - | 駐車場 | - |
| 管理費 | - | 修繕積立金 | - |
| 現況 | 更地 | ||
| 仲介手数料 | なし | ||
| 利用制限 | - | ||
| 設備 | 更地、学校近く、最寄り駅近く、建築条件なし、所有権、側溝、都市ガス(前面道路)、上水道(前面道路)、下水道(前面道路)、都市ガス(宅地内)、上水道(宅地内)、下水道(宅地内)、住宅向け | ||
| 取引態様 | 売主 | ||
| 備考 | 柏崎駅南口まで徒歩約6分☆当社売主につき仲介手数料不要!☆2023.5.24 9,337,200円より値下げしました☆ | ||
| 情報登録日 | 2023/05/24 | 次回更新予定日 | 2026/01/13 |
| 取引条件有効期限 | 2023/06/30 | ||
|
|
|
|
|
| TEL: | 0257-35-5370 |
|---|---|
| 所在地: | 新潟県柏崎市田中10-31 |
| 交通: | 国道8号線よりすぐ |
| 営業時間: | 平日9:00~18:00土日祝10:00~16:0/定休日:当社規定 (お盆・年末年始・GW) |
| 免許番号: | 新潟県知事(4)4821号 |
| 所属団体名: | 新潟県宅地建物取引協会 柏崎支部 |
| 取引態様: | 売主 |