| 物件コード | 00024-200453 | ||
|---|---|---|---|
| 物件名 | 寺泊上田町 中古住宅 | ||
| 交通 | 駅:越後線 寺泊駅から徒歩65分、バス:上田町から徒歩3分 | ||
| 物件所在地 | 新潟県長岡市寺泊上田町8204 | ||
| 物件種別 | 中古一戸建て | ||
| 構造 | 木造 | 階建 | 地上2階建 |
| 建ぺい率/容積率 | - | ||
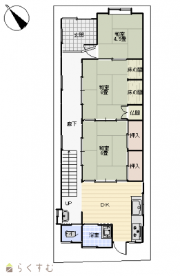
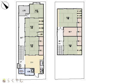
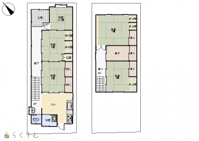
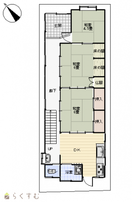
| 建物面積 | 1階 65.63㎡/ 2階 43.95㎡/ 計 109.58㎡ /33.14坪 | ||
| 土地面積 | 89.25㎡ /26.99坪 | ||
| 築年月 | 1960年8月(築65年) | ||
| 入居時期 | 随時入居(引き渡し)可 | ||
| 用途地域 | 無指定 | 地目 | 宅地 |
| 都市計画 | 都市計画区域外 | 学校区 | 寺泊小学校(236m)・寺泊中学校(2,246m) |
| 形状 | - | 道路 | 市道2.7m |
| 私道 | - | ||
| 所在階/階数 | - | 号室 | - |
|---|---|---|---|
| 販売価格 | 1,500,000円 | 方位 | 指定なし |
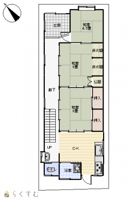
| 間取り |
5DK (和室:4.5畳、6畳、6畳、8畳、8畳) DK6S3 駐車場なし、車の乗入れはできません。 |
||
| 専有面積 | - | バルコニー面積 | - |
| その他面積 | - | 駐車場 | - |
| 管理費 | - | 修繕積立金 | - |
| 現況 | 空家 | ||
| 仲介手数料 | 330,000円 | ||
| 利用制限 | - | ||
| 設備 | 日当り良好、閑静な住宅街、即引き渡し可能 | ||
| 取引態様 | 専任 | ||
| 備考 | 下水公共桝有り、未接続。接続時受益者負担金15万円賦課。 土砂災害警戒区域等の指定あり。 物件前への車の進入は不可。 内見をご希望の方は事前にお電話かメールでお申し出ください。 | ||
| 情報登録日 | 2026/04/16 | 次回更新予定日 | 2026/06/05 |
| 取引条件有効期限 | 2030/09/30 | ||
|
|
|
|
|
|
| TEL: | 0258-41-5336 |
|---|---|
| 所在地: | 新潟県長岡市与板町与板119番地 |
| 交通: | |
| 営業時間: | 8:30~17:30/定休日:土日・祝祭日 (電話対応しております) |
| 免許番号: | 新潟県知事(5)第4750号 |
| 所属団体名: | 新潟県宅地建物取引業協会 長岡支部 |
| 取引態様: | 専任 |