| 物件コード | 00015-200293 | ||
|---|---|---|---|
| 物件名 | 見附市細越1丁目 中古店舗住居付(旧割烹赤坂家) | ||
| 交通 | 駅:信越線 見附駅から徒歩36分、バス:石地入口から徒歩1分 | ||
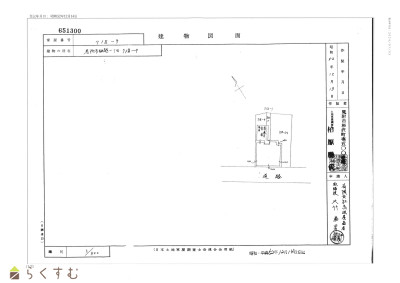
| 物件所在地 | 新潟県見附市細越1丁目3番地12号 | ||
| 物件種別 | 中古一戸建て | ||
| 構造 | 鉄骨 | 階建 | 地上4階建 |
| 建ぺい率/容積率 | 70%/200% | ||
| 建物面積 | 1階 145.26㎡/ 2階 151.23㎡/ 3階 120.85㎡/ 4階 14.35㎡/ 計 431.69㎡ /130.58坪 | ||
| 土地面積 | 270.31㎡ /81.76坪 | ||
| 築年月 | 1977年11月(築48年) | ||
| 入居時期 | 相談 | ||
| 用途地域 | 無指定 | 地目 | 宅地 |
| 都市計画 | 市街化調整区域 | 学校区 | 見附小学校(815m)・見附中学校(537m) |
| 形状 | - | 道路 | 県道 |
| 私道 | - | ||
| 所在階/階数 | - | 号室 | - |
|---|---|---|---|
| 販売価格 | 7,000,000円 | 方位 | - |
| 間取り | 12DK | ||
| 専有面積 | - | バルコニー面積 | - |
| その他面積 | - | 駐車場 | - |
| 管理費 | - | 修繕積立金 | - |
| 現況 | 空家 | ||
| 仲介手数料 | 396,000円 | ||
| 利用制限 | - | ||
| 設備 | 駐車3台以上可能、都市ガス、事業向け | ||
| 取引態様 | 一般 | ||
| 備考 | 現状引渡し。隣地駐車場同時購入必須。 | ||
| 情報登録日 | 2025/05/27 | 次回更新予定日 | 2026/03/07 |
| 取引条件有効期限 | 2025/12/31 | ||
|
|
|
|
| TEL: | 0258-86-8222 |
|---|---|
| 所在地: | 新潟県見附市本町1-1-39 2F |
| 交通: | 信越線見附駅 バス本町十字路 |
| 営業時間: | 9時~18時 ※土曜9時~17時 /定休日:第二第三土曜・日曜・祝日※事前予約での定休日相談可 |
| 免許番号: | 新潟県知事(11)2726 |
| 所属団体名: | 新潟県宅地建物取引業協会 三条支部 |
| 取引態様: | 一般 |