| 物件コード | 00014-200203 | ||
|---|---|---|---|
| 物件名 | 曙2丁目 1棟売マンション 土地246坪 | ||
| 交通 | バス:曙2丁目から徒歩1分 | ||
| 物件所在地 | 新潟県長岡市曙2丁目4番20 | ||
| 物件種別 | 投資物件・その他 | ||
| 物件区分 | その他 | ||
| 構造 | 鉄筋コン | 階建 | 地上3階建 |
| 建ぺい率/容積率 | 60%/200% | ||
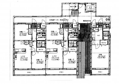
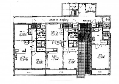
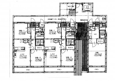
| 建物面積 | 1階 159.26㎡/ 2階 177.46㎡/ 3階 177.46㎡/ 計 514.18㎡ /155.53坪 | ||
| 土地面積 | 813.41㎡ /246.05坪 | ||
| 築年月 | 2008年3月(築18年) | ||
| 入居時期 | 相談 | ||
| 用途地域 | 第2種住居地域 | 地目 | 宅地 (現状:宅地) |
| 都市計画 | 市街化区域 | 学校区 | 豊田小学校(645m)・旭岡中学校(702m) |
| 形状 | 間口 20m × 奥行 38m | 道路 | 東側市道幅員18m |
| 私道 | - | ||
| 所在階/階数 | - | 号室 | - |
|---|---|---|---|
| 販売価格 | 128,000,000円 | 方位 | - |
| 表面利回り (満室想定時) |
- | 満室想定年収 | - (想定月収: - ) |
| 現行利回り | - | 現行年間年収 | - |
| 住戸数 | - | ||
| 間取り | - | ||
| 専有面積 | - | バルコニー面積 | - |
| その他面積 | - | 駐車場 | 付無料 |
| 管理費 | - | 修繕積立金 | - |
| 現況 | 賃貸中 | ||
| 仲介手数料 | 4,290,000円 | ||
| 利用制限 | - | ||
| 設備 | エレベーター、駐車場(近隣含む) | ||
| 取引態様 | 一般 | ||
| 備考 | 現在空室 戸 | ||
| 情報登録日 | 2023/11/18 | 次回更新予定日 | 2026/06/05 |
| 取引条件有効期限 | 2024/03/31 | ||
|
|
|
|
|
|
| TEL: | 0120-35-3901 |
|---|---|
| 所在地: | 新潟県長岡市要町3-1-26 |
| 交通: | 長岡駅大手口①バス乗場より乗車~溝橋下車徒歩約4分 |
| 営業時間: | 9:30~18:00/定休日:日曜・祝祭日 |
| 免許番号: | 新潟県知事(16)第495号 |
| 所属団体名: | 新潟県宅地建物取引業協会 長岡支部 |
| 取引態様: | 一般 |