| 只今賃貸中です。 | |||
| 物件コード | 00011-200226 | ||
|---|---|---|---|
| 物件名 | 投資目算可能(現在年間1000万稼動) 年6% | ||
| 交通 | 駅:信越線 北長岡駅から徒歩25分、バス:北中学校前から徒歩5分 | ||
| 物件所在地 | 新潟県長岡市寿1丁目2-51 | ||
| 物件種別 | 投資物件・その他 | ||
| 物件区分 | 1棟売りマンション・アパート | ||
| 構造 | 鉄骨 | 階建 | 地上1階建 |
| 建ぺい率/容積率 | 60%/200% | ||
| 建物面積 | 1階 708.16㎡/ 計 708.16㎡ /214.21坪 | ||
| 土地面積 | 1,658.5㎡ /501.69坪 | ||
| 築年月 | 1986年3月(築40年) | ||
| 入居時期 | 相談 | ||
| 用途地域 | 準工業地域 | 地目 | 宅地 (現状:宅地) |
| 都市計画 | 市街化区域 | 学校区 | 新町小学校(1,114m)・北中学校(384m) |
| 形状 | 間口 20m | 道路 | 長岡286号 |
| 私道 | - | ||
| 所在階/階数 | 1階/1階 | 号室 | - |
|---|---|---|---|
| 販売価格 | 150,000,000円 | 方位 | - |
| 表面利回り (満室想定時) |
6% | 満室想定年収 | - (想定月収: - ) |
| 現行利回り | - | 現行年間年収 | - |
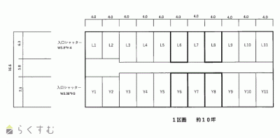
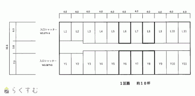
| 住戸数 | 22 | ||
| 間取り | - | ||
| 専有面積 | 708.16㎡ /214.21坪 ~ 708.16㎡ /214.21坪 | バルコニー面積 | - |
| その他面積 | - | 駐車場 | - |
| 管理費 | - | 修繕積立金 | - |
| 現況 | 賃貸中 | ||
| 仲介手数料 | 5,016,000円 | ||
| 利用制限 | - | ||
| 設備 | 事業向け | ||
| 取引態様 | 一般 | ||
| 備考 | 2.8t2基クレーン付きです。建物W16.6m*D44m | ||
| 情報登録日 | 2025/11/18 | 次回更新予定日 | 2026/06/05 |
| 取引条件有効期限 | 2026/09/30 | ||
|
|
|
|
|
| TEL: | 0258-24-0623 |
|---|---|
| 所在地: | 新潟県長岡市蔵王2丁目4番17号 |
| 交通: | JR北長岡駅 |
| 営業時間: | 8:30~17:30/定休日:第2・4土曜・日曜・祭日 |
| 免許番号: | 新潟県知事(2)第5364号 |
| 所属団体名: | 新潟県宅地建物取引業協会 長岡支部 |
| 取引態様: | 一般 |