| 広々敷地でライフスタイルに合わせた増築や家庭菜園をお楽しみください。別荘・田舎暮らしにお薦めです! | |||
| 物件コード | 00008-200268 | ||
|---|---|---|---|
| 物件名 | 小千谷市三仏生 【中古一戸建て】 | ||
| 交通 | バス:三仏生中央から徒歩1分 | ||
| 物件所在地 | 小千谷市三仏生4004-1 外7筆 | ||
| 物件種別 | 中古一戸建て | ||
| 構造 | 木造 | 階建 | 地上2階建 |
| 建ぺい率/容積率 | 70%/200% | ||
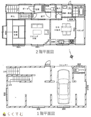
| 建物面積 | 1階 65.43㎡/ 2階 55.94㎡/ 計 121.37㎡ /36.71坪 | ||
| 土地面積 | 1,412.15㎡ /427.17坪 | ||
| 築年月 | 2007年6月(築18年) | ||
| 入居時期 | 相談 | ||
| 用途地域 | 無指定 | 地目 | 宅地・畑 (現状:宅地・畑) |
| 都市計画 | 非線引き都市計画区域 | 学校区 | 和泉小学校(924m)・千田中学校(1,718m) |
| 形状 | 間口 17.73m × 奥行 55m | 道路 | 西側県道三仏生片貝線8m(消雪道路) |
| 私道 | - | ||
| 所在階/階数 | - | 号室 | - |
|---|---|---|---|
| 販売価格 | 15,500,000円 | 方位 | 西 |
| 間取り |
1LDK (和室:6畳) LDK16 |
||
| 専有面積 | - | バルコニー面積 | - |
| その他面積 | 5.37㎡ /1.62坪 ベランダ | 駐車場 | - |
| 管理費 | - | 修繕積立金 | - |
| 現況 | 居住中 | ||
| 仲介手数料 | 577,500円 | ||
| 利用制限 | - | ||
| 設備 | 日当り良好、閑静な住宅街、LDK15帖以上、駐車2台可能、南向き、複層ガラス、システムキッチン、3口コンロ、追いだき機能付き、バス1坪以上、温水洗浄便座、トイレ2か所以上、エアコンあり、都市ガス、上水道、下水道、バリアフリー、シューズBOX、田舎暮らし | ||
| 取引態様 | 一般 | ||
| 備考 | ■LDKは構造材の丸太梁の現しで、内装の一部としてインパクトがあり、天然素材の温かさ、古民家風の力強い和の雰囲気が感じられます。 ■今までが「別宅」としての利用で、内装・設備がとても綺麗です。 ■1階基礎部分にはトイレも有り、子供部屋や趣味の部屋としても転用可能です。 ■令和7年10月屋根・外壁の塗替工事済みです。 ★★内見ご希望の際は、予めご連絡をお願いいたします★★ |
||
| 情報登録日 | 2025/11/27 | 次回更新予定日 | 2026/06/06 |
| 取引条件有効期限 | 2026/03/31 | ||
|
|
|
|
|
|
| TEL: | 0258-39-6030 |
|---|---|
| 所在地: | 新潟県長岡市西新町1-8-11 |
| 交通: | 「新町小学校前」バス停徒歩1分 |
| 営業時間: | 9:00~18:30/定休日:日曜・祭日 |
| 免許番号: | 新潟県知事(4)4829号 |
| 所属団体名: | 公益社団法人 新潟県宅地建物取引業協会 |
| 取引態様: | 一般 |