| <令和8年2月完成予定>◆商業施設やスーパーが徒歩圏内に充実♪ ◆月岡小学校・こども園も徒歩圏内♪お子様も安心の環境です。 ◆前面道路は消雪パイプ設置!冬も安心です。 ◆LDKはソファもダイニングもゆったり置ける広さ♪南向きの窓から光が差し込む、明るい空間♪ ◆対面キッチンは、ご家族やお客様とのコミュニケーションも取りやすくなっています。 ◆洗濯機と物干し場を一緒にし、重い洗濯物を運ぶことなく干せ、家事効率UP! | |||
| 物件コード | 00007-200746 | ||
|---|---|---|---|
| 物件名 | 三条市曲渕3丁目 建売住宅③ | ||
| 交通 | 駅:信越線 三条駅から徒歩17分、バス:曲渕二丁目から徒歩5分 | ||
| 物件所在地 | 新潟県三条市曲渕3丁目137番14 | ||
| 物件種別 | 新築一戸建て | ||
| 構造 | 木造 | 階建 | 地上2階建 | 
| 建ぺい率/容積率 | 50%/100% | ||
| 建物面積 | 計 84㎡ /25.41坪 | ||
| 土地面積 | 165.65㎡ /50.1坪 | ||
| 築年月 | 2026年2月完成予定 | ||
| 入居時期 | 相談 | ||
| 用途地域 | 第1種低層住居専用地域 | 地目 | 宅地 | 
| 都市計画 | 非線引き都市計画区域 | 学校区 | 月岡小学校(351m)・本成寺中学校(1,698m) | 
| 形状 | - | 道路 | 北側:市道 6.0m | 
| 私道 | - | ||
| 所在階/階数 | - | 号室 | - | 
|---|---|---|---|
| 販売価格 | 23,900,000円 | 方位 | 北 | 
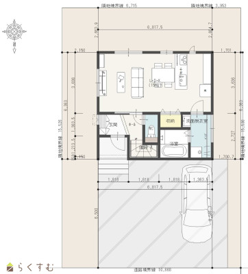
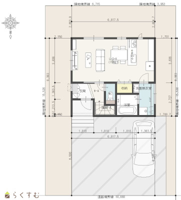
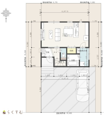
| 間取り | 
													3LDK (洋室:7.2、6.1、6.1) LDK15 建築確認番号:NK第25長00085号  | 
					||
| 専有面積 | - | バルコニー面積 | - | 
| その他面積 | - | 駐車場 | - | 
| 管理費 | - | 修繕積立金 | - | 
| 現況 | 指定なし | ||
| 仲介手数料 | なし | ||
| 利用制限 | - | ||
| 設備 | 整形地、前面道路6m以上、日当り良好、スーパー近く、BELS/省エネ基準適合認定建物、フラット35S適合、LDK15畳以上、全室フローリング、駐車場2台以上、南向き、TVインターホン、複層ガラス、ディンプルキー、システムキッチン、IHクッキングヒーター、3口コンロ、追いだき機能付き、バス1坪以上、温水洗浄便座、シャワー付き洗面台、エアコン、24時間換気システム、省エネ給湯、高気密高断熱住宅、都市ガス、上水道、浄化槽、電気、ウォークインクローゼット、全居室収納あり、シューズBOX、照明器具付き | ||
| 取引態様 | 売主 | ||
| 備考 | ・22条指定区域 ・高さ制限:10m ・外壁後退:1.5m ・消雪パイプ管理費:20,000円/年 ※物件掲載内容と現況に相違がある場合は現況を優先と致します。 詳細はお気軽にお問い合わせください。 担当:小林 携帯:090-1438-1795  | 
					||
| 情報登録日 | 2025/11/01 | 次回更新予定日 | 2025/11/18 | 
| 取引条件有効期限 | 2026/01/01 | ||
| 
							 | 
						
							 
						 | 
					
							 
						 | 
						
							 
						 | 
					
| TEL: | 0258-34-2221 | 
|---|---|
| 所在地: | 新潟県長岡市信濃2-5-36 | 
| 交通: | 長岡駅 | 
| 営業時間: | 9:00~18:00/定休日: | 
| 免許番号: | 新潟県知事(12)2196号 | 
| 所属団体名: | 新潟県宅地建物取引業協会 長岡支部 | 
| 取引態様: | 売主 |