| <令和8年1月完成予定>◆敷地は余裕のある77坪となっています。 ◆半田小学校・鏡が沖中学校エリアです。 ◆スーパー・コンビニ等、小中学校も徒歩圏内です。 ◆LDKは17帖、対面キッチンとなっています。 ◆脱衣室には乾太くんデラックスが設置されています。 ◆寝室にはウォークインクローゼットが設置されています。 ◆洗面台を脱衣室と別にすることで、プライバシーに配慮しました。 ◆お庭10坪以上付きで、お子様の遊び場や、BBQ、家庭菜園などお楽しみ頂けます。 ◆西側には市の水路が有ります。 | |||
| 物件コード | 00007-200735 | ||
|---|---|---|---|
| 物件名 | 柏崎市半田1丁目 建売住宅 | ||
| 交通 | 駅:信越線 茨目駅から徒歩19分、バス:半田中央から徒歩4分 | ||
| 物件所在地 | 新潟県柏崎市半田1丁目字前谷内975番1 | ||
| 物件種別 | 新築一戸建て | ||
| 構造 | 木造 | 階建 | 地上2階建 | 
| 建ぺい率/容積率 | 70%/200% | ||
| 建物面積 | 計 89.23㎡ /26.99坪 | ||
| 土地面積 | 257㎡ /77.74坪 | ||
| 築年月 | 2026年1月完成予定 | ||
| 入居時期 | 相談 | ||
| 用途地域 | 無指定 | 地目 | 宅地 | 
| 都市計画 | 非線引き都市計画区域 | 学校区 | 半田小学校(419m)・鏡が沖中学校(772m) | 
| 形状 | - | 道路 | 北側:市道 約5.5m~5.6m | 
| 私道 | - | ||
| 所在階/階数 | - | 号室 | - | 
|---|---|---|---|
| 販売価格 | 24,800,000円 | 方位 | 東 | 
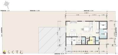
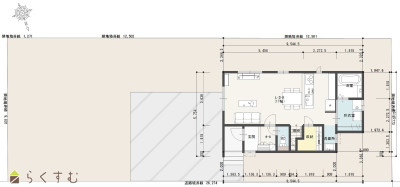
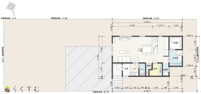
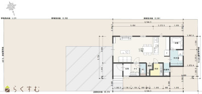
| 間取り | 
													3LDK (洋室:7、6、6) LDK17 建築確認番号:NK第25長00154号  | 
					||
| 専有面積 | - | バルコニー面積 | - | 
| その他面積 | - | 駐車場 | - | 
| 管理費 | - | 修繕積立金 | - | 
| 現況 | 指定なし | ||
| 仲介手数料 | なし | ||
| 利用制限 | - | ||
| 設備 | 角地、整形地、日当り良好、スーパー近く、BELS/省エネ基準適合認定建物、フラット35S適合、LDK15畳以上、全室フローリング、駐車場2台以上、駐車場3台以上、南向き、庭あり、TVインターホン、複層ガラス、ディンプルキー、システムキッチン、IHクッキングヒーター、3口コンロ、追いだき機能付き、バス1坪以上、温水洗浄便座、シャワー付き洗面台、エアコン、24時間換気システム、省エネ給湯、高気密高断熱住宅、都市ガス、上水道、下水道、電気、ウォークインクローゼット、全居室収納あり、床下収納、シューズBOX、照明器具付き、バリアフリー | ||
| 取引態様 | 売主 | ||
| 備考 | ・22条指定区域 ※物件掲載内容と現況に相違がある場合は現況を優先と致します。 詳細はお気軽にお問い合わせください。 担当:藤崎 携帯:090-2763-5443  | 
					||
| 情報登録日 | 2025/11/02 | 次回更新予定日 | 2025/11/18 | 
| 取引条件有効期限 | 2026/01/01 | ||
							 
						 | 
						
							 
						 | 
					
							 
						 | 
						
							 
						 | 
					
| TEL: | 0258-34-2221 | 
|---|---|
| 所在地: | 新潟県長岡市信濃2-5-36 | 
| 交通: | 長岡駅 | 
| 営業時間: | 9:00~18:00/定休日: | 
| 免許番号: | 新潟県知事(12)2196号 | 
| 所属団体名: | 新潟県宅地建物取引業協会 長岡支部 | 
| 取引態様: | 売主 |