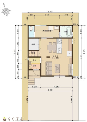
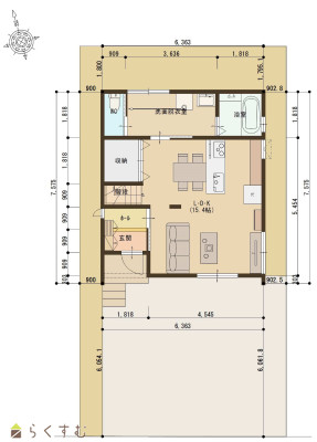
| 15.4帖のLDKは室内を見渡しやすい配置となっています。 室内に物干しスペースが確保されています。 2階にもトイレが設置されています。 2階寝室には3帖のウォークインクローゼットが設置されています。 | |||
| 物件コード | 00007-200680 | ||
|---|---|---|---|
| 物件名 | 長岡市豊2丁目 建売住宅 1号棟 | ||
| 交通 | 駅:信越線 北長岡駅から徒歩21分、バス:豊町から徒歩3分 | ||
| 物件所在地 | 新潟県長岡市豊2丁目1940番11 | ||
| 物件種別 | 新築一戸建て | ||
| 構造 | 木造 | 階建 | 地上2階建 |
| 建ぺい率/容積率 | 60%/200% | ||
| 建物面積 | 計 90.88㎡ /27.49坪 | ||
| 土地面積 | 125.99㎡ /38.11坪 | ||
| 築年月 | 2025年5月(築9ヶ月) | ||
| 入居時期 | 随時入居(引き渡し)可 | ||
| 用途地域 | 第1種中高層住居専用地域 | 地目 | 宅地 |
| 都市計画 | 市街化区域 | 学校区 | 川崎東小学校(464m)・東北中学校(550m) |
| 形状 | - | 道路 | 南側:市道6.0m |
| 私道 | - | ||
| 所在階/階数 | - | 号室 | - |
|---|---|---|---|
| 販売価格 | 24,800,000円 | 方位 | 南 |
| 間取り |
3LDK (洋室:8、6、6) LDK15.4 |
||
| 専有面積 | - | バルコニー面積 | - |
| その他面積 | - | 駐車場 | - |
| 管理費 | - | 修繕積立金 | - |
| 現況 | 指定なし | ||
| 仲介手数料 | なし | ||
| 利用制限 | - | ||
| 設備 | 整形地、前面道路6m以上、日当り良好、スーパー近く、BELS/省エネ基準適合認定建物、フラット35S適合、LDK15畳以上、全室フローリング、駐車場2台以上、南向き、TVインターホン、複層ガラス、ディンプルキー、システムキッチン、IHクッキングヒーター、3口コンロ、追いだき機能付き、バス1坪以上、温水洗浄便座、シャワー付き洗面台、エアコン、24時間換気システム、省エネ給湯、高気密高断熱住宅、都市ガス、上水道、下水道、電気、ウォークインクローゼット、全居室収納あり、床下収納、シューズBOX、照明器具付き、即引き渡し可能、バリアフリー | ||
| 取引態様 | 売主 | ||
| 備考 | 【R7年11月29日価格改定しました】2560万円⇒2480万円 ※旧価格公開日 R6年8月16日 新価格公開日 R7年11月29日 ※物件掲載内容と現況に相違がある場合は現況を優先と致します。 詳細はお気軽にお問い合わせください。 担当:藤崎 携帯:090-2763-5443 |
||
| 情報登録日 | 2026/02/08 | 次回更新予定日 | 2026/03/07 |
| 取引条件有効期限 | 2026/04/01 | ||
|
|
|
|
|
| TEL: | 0258-34-2221 |
|---|---|
| 所在地: | 新潟県長岡市信濃2-5-36 |
| 交通: | 長岡駅 |
| 営業時間: | 9:00~18:00/定休日: |
| 免許番号: | 新潟県知事(12)2196号 |
| 所属団体名: | 新潟県宅地建物取引業協会 長岡支部 |
| 取引態様: | 売主 |