新潟県妙高市桶海1017-2妙高パインバレーロジュマン 中古マンション 1DK 12,800,000円の物件情報

アパホテル&リゾート上越妙高の天然温泉が利用できます。

物件名/所在地 詳細 価格
妙高パインバレーロジュマン
新潟県妙高市桶海1017-2妙高パインバレーロジュマン
  • 専有面積
    :43.9㎡ /13.27坪
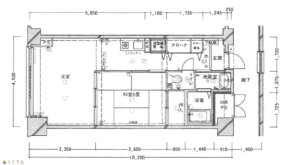
  • 間取り
    :1DK
  • 築年月
    :1991年8月
12,800,000
  • 妙高パインバレーロジュマン
    いえみらいサポート株式会社
  • この物件を問い合わせる/無料
  • TEL: 025-520-7726 025-520-7726

物件画像

外観
間取り
物件画像
※画像クリックで拡大表示
外観
物件画像
※画像クリックで拡大表示
間取り
詳細画像
物件画像
部屋からの景色
物件画像
リビング
物件画像
室内
物件画像
和室
物件画像
冷暖房
物件画像
トイレ
物件画像
洗面所
物件画像
バスルーム
物件画像
マンション内廊下
物件画像
コインランドリー
物件画像
印刷用地図


物件概要

リゾート内施設(ホテル、ゴルフその他アクティビティなど)が優待料金で利用できます。
物件コード 00403-200001
物件名 妙高パインバレーロジュマン
交通 駅:妙高はねうまライン 関山駅から徒歩77分、バス:坂口新田から徒歩74分
物件所在地 新潟県妙高市桶海1017-2妙高パインバレーロジュマン
物件種別 中古マンション
構造 鉄骨鉄筋コン 階建 地上14階地下1階建
建ぺい率/容積率 70%/200%
建物面積 計 10,306.56㎡ /3,117.73坪
土地面積 -
築年月 1991年8月(築34年)
入居(引き渡し)時期 相談
用途地域 無指定 地目 宅地
都市計画 非線引き都市計画区域 学校区 妙高小学校(4,615m)・妙高中学校(4,238m)
形状 - 道路 妙高市道
私道 - その他の制限 -
  • 妙高パインバレーロジュマン
    いえみらいサポート株式会社
  • この物件を問い合わせる/無料
  • TEL: 025-520-7726 025-520-7726

物件詳細情報

所在階/階数 11階/14階 号室 -
販売価格 12,800,000円 方位 -
間取り 1DK
表示面積は、壁芯面積です。登記面積はこれよりも少なくなります。
専有面積 43.9㎡ /13.27坪 バルコニー面積 -
その他面積 - 駐車場 無料(先着順)
管理費 11,000円 修繕積立金 2,200円
現況 居住中
仲介手数料 488,400円
組合費他 2,311円
調整費 5,940円
給湯利用料別途
利用制限 ペット:不可、楽器:不可
設備 10階建て以上、洗濯機置き場、エレベーター、和室あり、駐車場空きあり、管理人常駐(日中)、IHクッキングヒーター、温水洗浄便座、シャワー付き洗面台、LPG、公営水道、浄化槽
取引態様 一般
備考 リビングはフローリングにリフォーム済みです。部屋の窓からは妙高山を眺めることができ、周辺には赤倉スキー場や苗名の滝があり、上越海水浴場や長野の善光寺も車で1時間程です。ホテルでは、焚火や花火イベントも開催していて、部屋から花火を見ることができます!ご家族やお友達とのシーズン使いにも!
取り扱い会社

いえみらいサポート株式会社

新潟県上越市大和2-9-15

情報登録日 2026/04/01 次回更新予定日 2026/06/05
取引条件有効期限 2026/06/30
  • 妙高パインバレーロジュマン
    いえみらいサポート株式会社
  • この物件を問い合わせる/無料
  • TEL: 025-520-7726 025-520-7726

この物件の地図・周辺情報・行政情報

この物件の周辺情報・行政情報を詳しく見る
【周辺情報】
物件の近くにあるコンビニや銀行・学校など、アイコン付のマップで詳しく表示できます!
【行政情報】
水道料や下水道料・ガス料金など、暮らしに関係のある情報を表示しています。

担当取扱い店舗情報

取扱い店舗画像
いえみらいサポート株式会社
TEL: 025-520-7726
所在地: 新潟県上越市大和2-9-15
交通: 上越妙高駅徒歩10分
営業時間: 9時~17時/定休日:土日祝日
免許番号: 新潟県知事(1)第5847号
所属団体名: 公社 新潟県宅地建物取引協会 上越支部
取引態様: 一般