新潟県上越市大潟区渋柿浜1853-3 中古一戸建て 3R 14,000,000円の物件情報

事務所・店舗向き物件です

物件名/所在地 詳細 価格
売り事務所
新潟県上越市大潟区渋柿浜1853-3
  • 土地面積
    :358.09㎡ /108.32坪
  • 建物面積
    :166.54㎡ /50.37坪
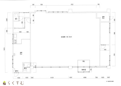
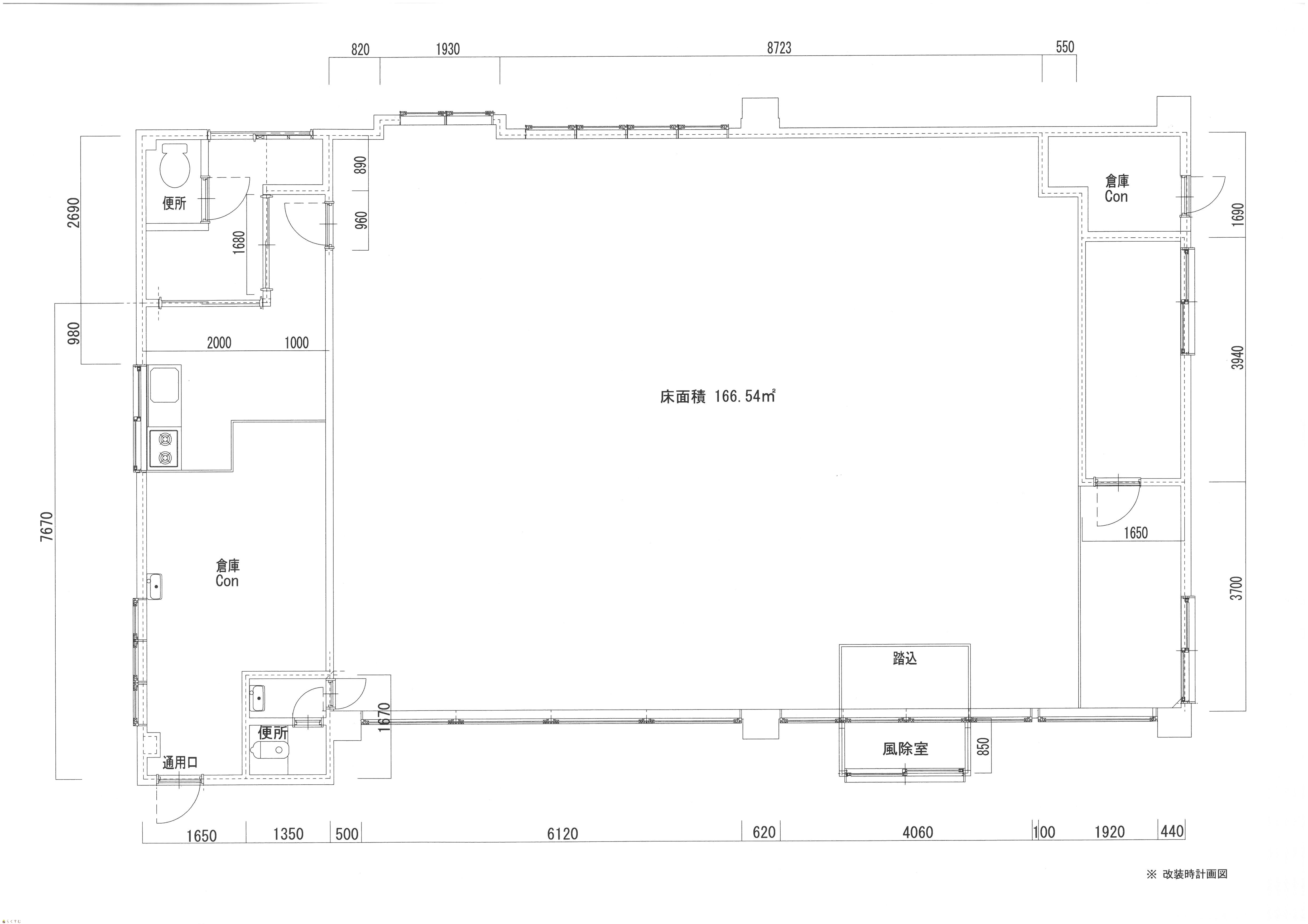
  • 間取り
    :3R
  • 築年月
    :1998年10月
14,000,000
  • 売り事務所
    株式会社ダイニチエンタープライズ
  • この物件を問い合わせる/無料
  • TEL: 025-520-5558 025-520-5558

物件画像

外観
間取り
物件画像
※画像クリックで拡大表示
外観
物件画像
※画像クリックで拡大表示
間取り
詳細画像
物件画像
外観
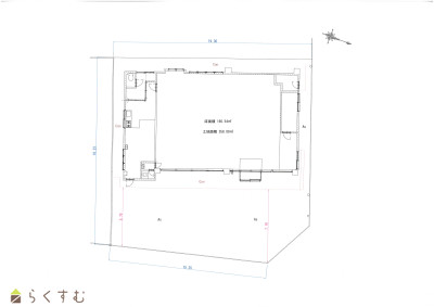
物件画像
土地・建物配置図
物件画像
印刷用地図


物件概要

物件コード 00395-200003
物件名 売り事務所
交通 駅:信越線 犀潟駅から徒歩17分、バス:渋柿東から徒歩2分
物件所在地 新潟県上越市大潟区渋柿浜1853-3
物件種別 中古一戸建て
構造 鉄骨 階建 地上1階建
建ぺい率/容積率 60%/200%
建物面積 1階 166.54㎡/ 計 166.54㎡ /50.37坪
土地面積 358.09㎡ /108.32坪
築年月 1998年10月(築27年)
入居(引き渡し)時期 相談
用途地域 第1種住居地域 地目 宅地
都市計画 市街化区域 学校区 大潟町小学校(1,364m)・大潟町中学校(2,458m)
形状 間口 19.30m × 奥行 18.23m 道路 県道 北側6.6m、市道 東側 車道8.7m歩道2.7m
私道 - その他の制限 都市計画事業 3.4.102浜街道線
  • 売り事務所
    株式会社ダイニチエンタープライズ
  • この物件を問い合わせる/無料
  • TEL: 025-520-5558 025-520-5558

物件詳細情報

所在階/階数 - 号室 -
販売価格 14,000,000円 方位 -
間取り 3R
図面参照
専有面積 - バルコニー面積 -
その他面積 - 駐車場 -
管理費 - 修繕積立金 -
現況 居住中
仲介手数料 なし
利用制限 -
設備 角地、ガスコンロ設置可能、トイレ2か所以上、エアコンあり、都市ガス、上水道、下水道、内装リフォーム済み、外装リフォーム済み、事業向け
取引態様 売主
備考 引渡し時期についてはご相談となります。
駐車場は普通車6台と軽自動車1台 駐車可能です。
北側県道は都市計画制限があります。
固定資産税、所有権移転費用、契約印紙代等が別途かかります。
平成30年 内装、外装リノベーション済み
(リフォーム必要箇所別途あり)
取り扱い会社

株式会社ダイニチエンタープライズ

新潟県上越市大潟区渋柿浜1853番地3

情報登録日 2026/03/30 次回更新予定日 2026/04/21
取引条件有効期限 2026/06/30
  • 売り事務所
    株式会社ダイニチエンタープライズ
  • この物件を問い合わせる/無料
  • TEL: 025-520-5558 025-520-5558

この物件の地図・周辺情報・行政情報

この物件の周辺情報・行政情報を詳しく見る
【周辺情報】
物件の近くにあるコンビニや銀行・学校など、アイコン付のマップで詳しく表示できます!
【行政情報】
水道料や下水道料・ガス料金など、暮らしに関係のある情報を表示しています。

担当取扱い店舗情報

取扱い店舗画像
株式会社ダイニチエンタープライズ
TEL: 025-520-5558
所在地: 新潟県上越市大潟区渋柿浜1853番地3
交通:
営業時間: 8:30~17:00/定休日:土日、祝日
免許番号: 新潟県知事(1)第5762号
所属団体名: 公社 新潟県宅地建物取引協会 上越支部
取引態様: 売主