新潟県柏崎市桜木町23-23 中古一戸建て 6DK 1,980,000円の物件情報

6DK中古住宅!各種商業施設約1km圏内、人気の柏崎小学校・第一中学校エリアです♪リノベーションのご相談も承ります!

物件名/所在地 詳細 価格
柏崎市桜木町 中古戸建
新潟県柏崎市桜木町23-23
  • 土地面積
    :246.51㎡ /74.56坪
  • 建物面積
    :96.88㎡ /29.3坪
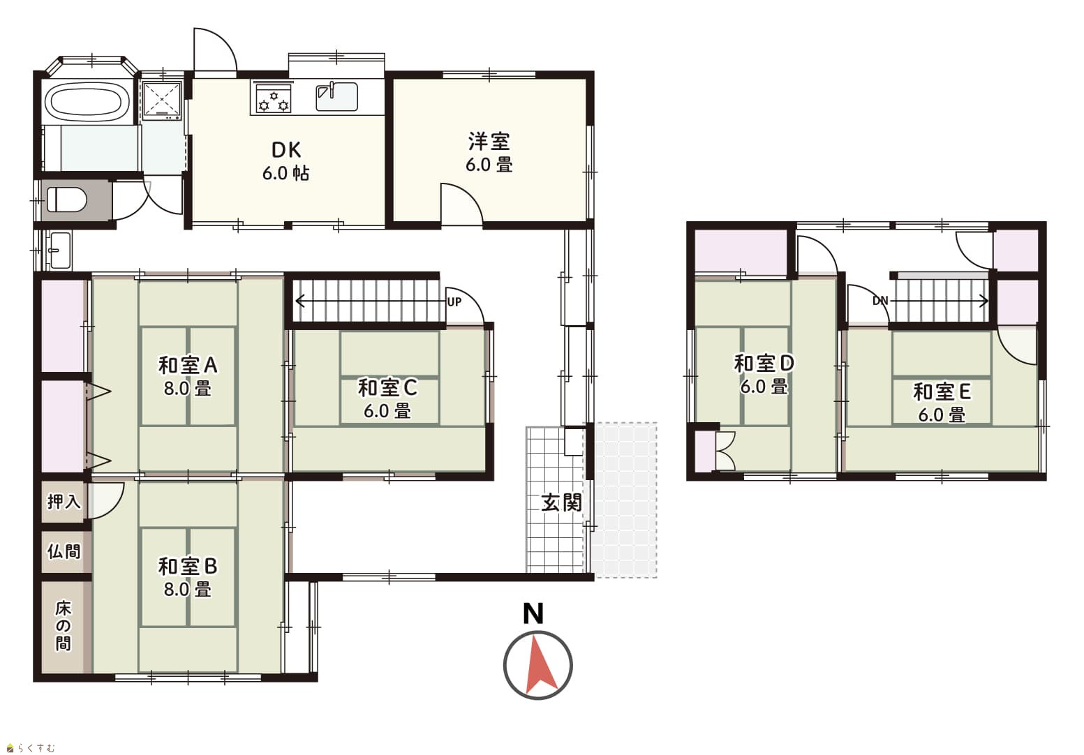
  • 間取り
    :6DK
  • 築年月
    :1974年12月
1,980,000
  • 柏崎市桜木町 中古戸建
    長岡不動産販売株式会社
  • この物件を問い合わせる/無料
  • TEL: 0258-86-4690 0258-86-4690

物件画像

外観
間取り
物件画像
※画像クリックで拡大表示
外観
物件画像
※画像クリックで拡大表示
間取り
詳細画像
物件画像
玄関
物件画像
和室
物件画像
和室
物件画像
内装
物件画像
和室
物件画像
和室
物件画像
和室
物件画像
収納
物件画像
洋室
物件画像
キッチン
物件画像
トイレ
物件画像
バスルーム
物件画像
洗面所
物件画像
内装
物件画像
和室
物件画像
和室
物件画像
内装
物件画像
物件画像
玄関
物件画像
印刷用地図


物件概要

物件コード 00378-200067
物件名 柏崎市桜木町 中古戸建
交通 駅:越後線 東柏崎駅から徒歩16分、バス:翔洋高校前から徒歩1分
物件所在地 新潟県柏崎市桜木町23-23
物件種別 中古一戸建て
構造 木造 階建 地上2階建
建ぺい率/容積率 60%/199%
建物面積 1階 67.9㎡/ 2階 28.98㎡/ 計 96.88㎡ /29.3坪
土地面積 246.51㎡ /74.56坪
築年月 1974年12月(築51年)
入居(引き渡し)時期 随時入居(引き渡し)可
用途地域 第1種住居地域 地目 宅地
都市計画 市街化区域 学校区 柏崎小学校(1,625m)・第一中学校(1,387m)
形状 - 道路 北側 約2.7m 公道
私道 - その他の制限 -
  • 柏崎市桜木町 中古戸建
    長岡不動産販売株式会社
  • この物件を問い合わせる/無料
  • TEL: 0258-86-4690 0258-86-4690

物件詳細情報

所在階/階数 - 号室 -
販売価格 1,980,000円 方位 -
間取り 6DK (和室:8畳、8畳、6畳、6畳、6畳) (洋室:6)
DK6
専有面積 - バルコニー面積 -
その他面積 - 駐車場 -
管理費 - 修繕積立金 -
現況 空家
仲介手数料 312,000円
固定資産税/年 40,439円
令和7年度分
利用制限 -
設備 スーパー近く、システムキッチン、ガスコンロ設置可能、バス1坪以上、都市ガス、上水道、下水道、即引き渡し可能
取引態様 一般
備考 ◆1階南側に未登記増築部分(約32.23㎡)有り
◆再建築可能です。
◆現況有姿でのお引渡しとなります。
◆リノベーションのご相談も承ります。
取り扱い会社

長岡不動産販売株式会社

新潟県長岡市神田町3-4-5

情報登録日 2026/02/20 次回更新予定日 2026/03/06
取引条件有効期限 2026/01/13
  • 柏崎市桜木町 中古戸建
    長岡不動産販売株式会社
  • この物件を問い合わせる/無料
  • TEL: 0258-86-4690 0258-86-4690

この物件の地図・周辺情報・行政情報

この物件の周辺情報・行政情報を詳しく見る
【周辺情報】
物件の近くにあるコンビニや銀行・学校など、アイコン付のマップで詳しく表示できます!
【行政情報】
水道料や下水道料・ガス料金など、暮らしに関係のある情報を表示しています。
高橋医院(病院)まで520m
セブン銀行ATM(銀行)まで110m
柏崎桜木町郵便局(郵便局)まで320m

※カメラのアイコンがある場合は、マウスをポイントするとその施設の画像がご覧いただけます。


担当取扱い店舗情報

取扱い店舗画像
長岡不動産販売株式会社
TEL: 0258-86-4690
所在地: 新潟県長岡市神田町3-4-5
交通: 長岡駅
営業時間: 10:00~18:00/定休日:水曜日 ※ご都合に合わせて対応可能です
免許番号: 新潟県知事(1)第5764号
所属団体名: 公社 全日本不動産協会 新潟県本部
取引態様: 一般
ホームページ: https://nagaoka-f.com/