新潟県長岡市新保1丁目8-35 新築一戸建て 4LDK 29,800,000円の物件情報

ゆとりある305.24㎡の広い敷地。駐車3台可。来客時にも安心です。

物件名/所在地 詳細 価格
新保1丁目 新築戸建
新潟県長岡市新保1丁目8-35
  • 土地面積
    :305.24㎡ /92.33坪
  • 建物面積
    :97.59㎡ /29.52坪
  • 間取り
    :4LDK
  • 築年月
    :2026年1月
29,800,000
  • 新保1丁目 新築戸建
    有限会社 ブライトサクセス
  • この物件を問い合わせる/無料
  • TEL: 0258-35-2220 0258-35-2220

物件画像

外観
間取り
物件画像
※画像クリックで拡大表示
外観
物件画像
※画像クリックで拡大表示
間取り
詳細画像
物件画像
区画図
物件画像
リビング
物件画像
ダイニング
物件画像
キッチン
物件画像
バスルーム
物件画像
洗面所
物件画像
トイレ
物件画像
和室
物件画像
寝室
物件画像
洋室
物件画像
洋室
物件画像
ワーキングスペース
物件画像
トイレ
物件画像
階段
物件画像
収納
物件画像
玄関
物件画像
バルコニー
物件画像
眺望
物件画像
前面道路
物件画像
印刷用地図
動画


物件概要

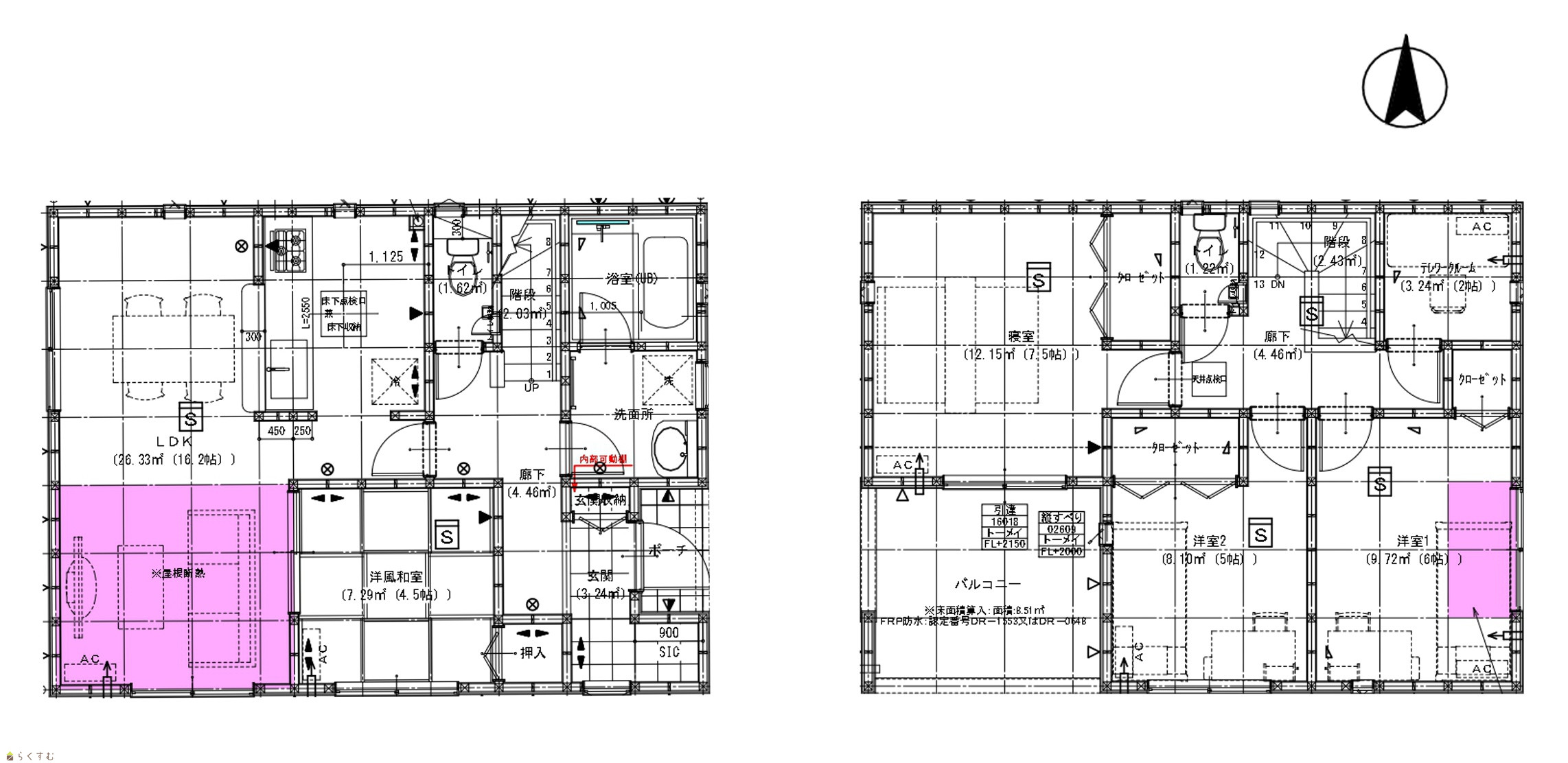
1キロ圏内にはスーパー・ドラッグストア・コンビニ、小学校・中学校も近く、子育て世帯にも安心です。徒歩3分以内には郵便局と銀行も。玄関にはシューズインクロークがあり、靴や外遊び道具もしっかり収納。人感センサー付き玄関灯と防犯カメラで、防犯面にも配慮したつくりです。リビングには和室が隣接し、家族のくつろぎにぴったり。7.5帖の主寝室には8.51㎡のルーフバルコニーがつながり、ゆとりある時間を楽しめます。2階にもトイレ、全居室収納、2帖のテレワークルームなど、毎日の暮らしが快適になる工夫がつまった住まいです。
物件コード 00320-200223
物件名 新保1丁目 新築戸建
交通 駅:信越線 北長岡駅から徒歩15分、バス:新保1丁目から徒歩1分
物件所在地 新潟県長岡市新保1丁目8-35
物件種別 新築一戸建て
構造 木造 階建 地上2階建
建ぺい率/容積率 60%/200%
建物面積 計 97.59㎡ /29.52坪
土地面積 305.24㎡ /92.33坪
築年月 2026年1月(築1ヶ月)
入居(引き渡し)時期 相談
用途地域 第1種中高層住居専用地域 地目 宅地
都市計画 市街化区域 学校区 富曾亀小学校(492m)・東北中学校(798m)
形状 間口 26.2m × 奥行 12.06m 道路 前面道路幅員約8.5m
私道 - その他の制限 第二種高度地区、建築基準法第22条第1項の規定により指定する区域、まちなか居住区域
  • 新保1丁目 新築戸建
    有限会社 ブライトサクセス
  • この物件を問い合わせる/無料
  • TEL: 0258-35-2220 0258-35-2220

物件詳細情報

所在階/階数 - 号室 -
販売価格 29,800,000円 方位
間取り 4LDK (和室:4.5畳) (洋室:7.5、6、5)
LDK16.2
2帖のテレワークルームあり
専有面積 - バルコニー面積 -
その他面積 8.51㎡ /2.57坪  ルーフバルコニー 駐車場 -
管理費 - 修繕積立金 -
現況 -
仲介手数料 1,049,400円
利用制限 -
設備 整形地、前面道路6m以上、日当り良好、閑静な住宅街、スーパー近く、LDK15畳以上、駐車場3台以上、南向き、TVインターホン、複層ガラス、システムキッチン、カウンターキッチン、浴室暖房乾燥機、シャワー付き洗面台、ルーフバルコニー、都市ガス、上水道、下水道、全居室収納あり、シューズインクローゼット、シューズBOX
取引態様 仲介
備考 -
取り扱い会社

有限会社 ブライトサクセス

新潟県長岡市新町1-1-2

情報登録日 2026/02/18 次回更新予定日 2026/03/06
取引条件有効期限 2026/10/31
  • 新保1丁目 新築戸建
    有限会社 ブライトサクセス
  • この物件を問い合わせる/無料
  • TEL: 0258-35-2220 0258-35-2220

この物件の地図・周辺情報・行政情報

この物件の周辺情報・行政情報を詳しく見る
【周辺情報】
物件の近くにあるコンビニや銀行・学校など、アイコン付のマップで詳しく表示できます!
【行政情報】
水道料や下水道料・ガス料金など、暮らしに関係のある情報を表示しています。
ローソン 長岡新保店(コンビニ)まで270m
原信 新保店(スーパー)まで740m
ドラッグトップス 新保薬局(ドラッグストア)まで730m
大光銀行 新保支店(銀行)まで40m
長岡永田郵便局(郵便局)まで230m
セブン-イレブン 長岡永田店(コンビニ)までm

※カメラのアイコンがある場合は、マウスをポイントするとその施設の画像がご覧いただけます。


担当取扱い店舗情報

取扱い店舗画像
有限会社 ブライトサクセス
TEL: 0258-35-2220
所在地: 新潟県長岡市新町1-1-2
交通: 長岡駅
営業時間: 午前10時00分~午後7時 /定休日:オンラインサービス:午前9時30分~午後9時
免許番号: 新潟県知事(1)第5629号
所属団体名: 公社 新潟県宅地建物取引協会 新潟支部
取引態様: 仲介
ホームページ: https://bright-success.net/