新潟県上越市大町5丁目5-4 中古一戸建て 8DK 15,000,000円の物件情報

高田駅に近い住宅地!

物件名/所在地 詳細 価格
大町5丁目 売家
新潟県上越市大町5丁目5-4
  • 土地面積
    :507.74㎡ /153.59坪
  • 建物面積
    :312.7㎡ /94.59坪
  • 間取り
    :8DK
  • 築年月
    :1921年7月
15,000,000
  • 大町5丁目 売家
    上越宅地販売株式会社
  • この物件を問い合わせる/無料
  • TEL: 025-522-3838 025-522-3838

物件画像

外観
間取り
物件画像
※画像クリックで拡大表示
現地写真
物件画像
※画像クリックで拡大表示
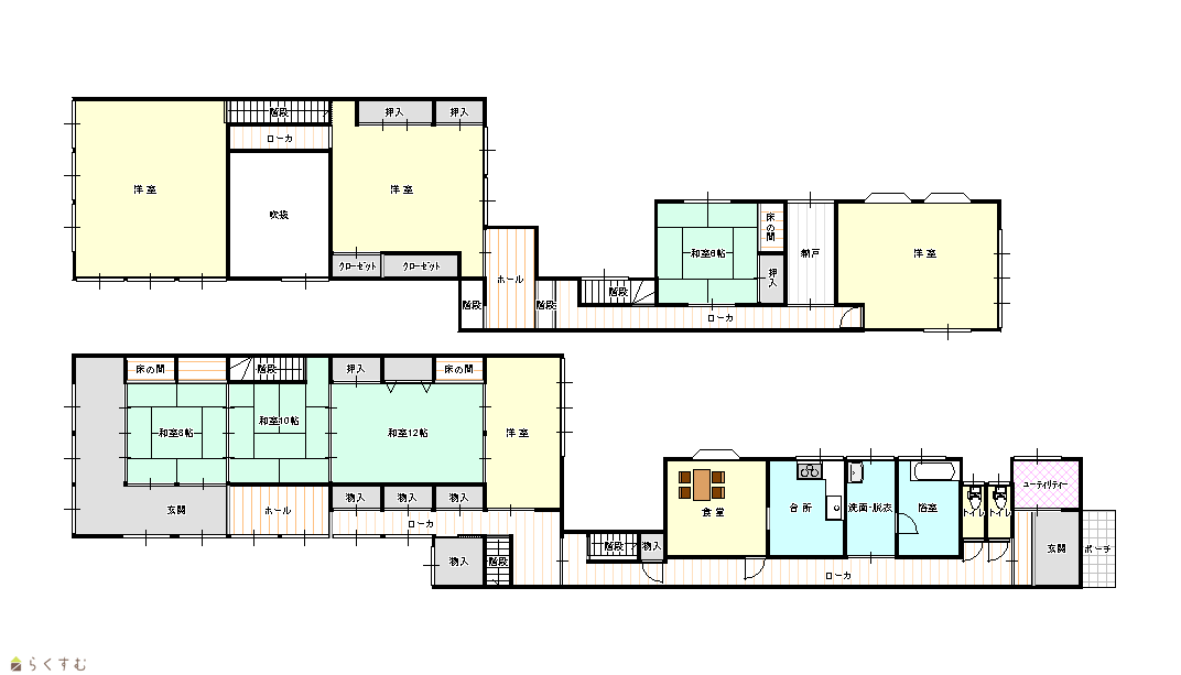
間取図
詳細画像
物件画像
外観写真
物件画像
1階和室
物件画像
2階洋室
物件画像
2階洋室
物件画像
2階和室
物件画像
2階洋室
物件画像
ダイニング
物件画像
キッチン
物件画像
洗面所
物件画像
浴室
物件画像
トイレ
物件画像
1階洋室
物件画像
洗濯室
物件画像
車庫
物件画像
前面道路
物件画像
地図画像


物件概要

150坪の広い土地と8DKの広い間取りでファミリー向けです!
物件コード 00308-200255
物件名 大町5丁目 売家
交通 駅:妙高はねうまライン 高田駅から徒歩9分、バス:本町六丁目から徒歩3分
物件所在地 新潟県上越市大町5丁目5-4
物件種別 中古一戸建て
構造 木造 階建 地上2階建
建ぺい率/容積率 80%/300%
建物面積 1階 176.57㎡/ 2階 136.13㎡/ 計 312.7㎡ /94.59坪
土地面積 507.74㎡ /153.59坪
築年月 1921年7月(築104年)
入居(引き渡し)時期 相談
用途地域 近隣商業地域 地目 宅地
都市計画 市街化区域 学校区 大町小学校(528m)・城北中学校(770m)
形状 - 道路 東側5.5m 西側9m
私道 - その他の制限 準防火
  • 大町5丁目 売家
    上越宅地販売株式会社
  • この物件を問い合わせる/無料
  • TEL: 025-522-3838 025-522-3838

物件詳細情報

所在階/階数 - 号室 -
販売価格 15,000,000円 方位 -
間取り 8DK (和室:12畳、10畳、8畳、6畳) (洋室:16、15、15、9)
DK14
専有面積 - バルコニー面積 -
その他面積 - 駐車場 -
管理費 - 修繕積立金 -
現況 空家
仲介手数料 561,000円
利用制限 -
設備 駐車3台以上可能、追いだき機能付き、浴室乾燥機、バス1坪以上、温水洗浄便座、トイレ2か所以上、都市ガス、上水道、下水道
取引態様 専任
備考 -
取り扱い会社

上越宅地販売株式会社

新潟県上越市南高田町1-2アサノビル1階

情報登録日 2024/04/30 次回更新予定日 2025/11/19
取引条件有効期限 2024/07/31
  • 大町5丁目 売家
    上越宅地販売株式会社
  • この物件を問い合わせる/無料
  • TEL: 025-522-3838 025-522-3838

この物件の地図・周辺情報・行政情報

この物件の周辺情報・行政情報を詳しく見る
【周辺情報】
物件の近くにあるコンビニや銀行・学校など、アイコン付のマップで詳しく表示できます!
【行政情報】
水道料や下水道料・ガス料金など、暮らしに関係のある情報を表示しています。
ローソン 上越高田駅前店(コンビニ)まで370m
セブン-イレブン 上越本町7丁目店(コンビニ)まで390m
イチコスーパー 幸店(スーパー)まで510m
ナルス 北城店(スーパー)まで950m

※カメラのアイコンがある場合は、マウスをポイントするとその施設の画像がご覧いただけます。


担当取扱い店舗情報

取扱い店舗画像
上越宅地販売株式会社
TEL: 025-522-3838
所在地: 新潟県上越市南高田町1-2アサノビル1階
交通: 妙高はねうまライン 南高田駅 徒歩1分
営業時間: 9:00~18:30/定休日:毎週水曜日・GW・夏季・臨時休業(9/21日曜日)・年末年始
免許番号: 新潟県知事(9)第3372号
所属団体名: 公社 新潟県宅地建物取引協会 上越支部
取引態様: 専任
ホームページ: http://takuhan.com/