上越IC近くで交通アクセス良好!
| 物件名/所在地 | 詳細 | 価格 |
|---|---|---|
| 富岡 売店舗
新潟県上越市富岡1874-3 |
|
15,000,000円 |
| 物件コード | 00308-200245 | ||
|---|---|---|---|
| 物件名 | 富岡 売店舗 | ||
| 交通 | 駅:妙高はねうまライン 春日山駅から徒歩36分、バス:富岡十字路から徒歩5分 | ||
| 物件所在地 | 新潟県上越市富岡1874-3 | ||
| 物件種別 | 中古一戸建て | ||
| 構造 | 木造 | 階建 | 地上2階建 |
| 建ぺい率/容積率 | 50%/80% | ||
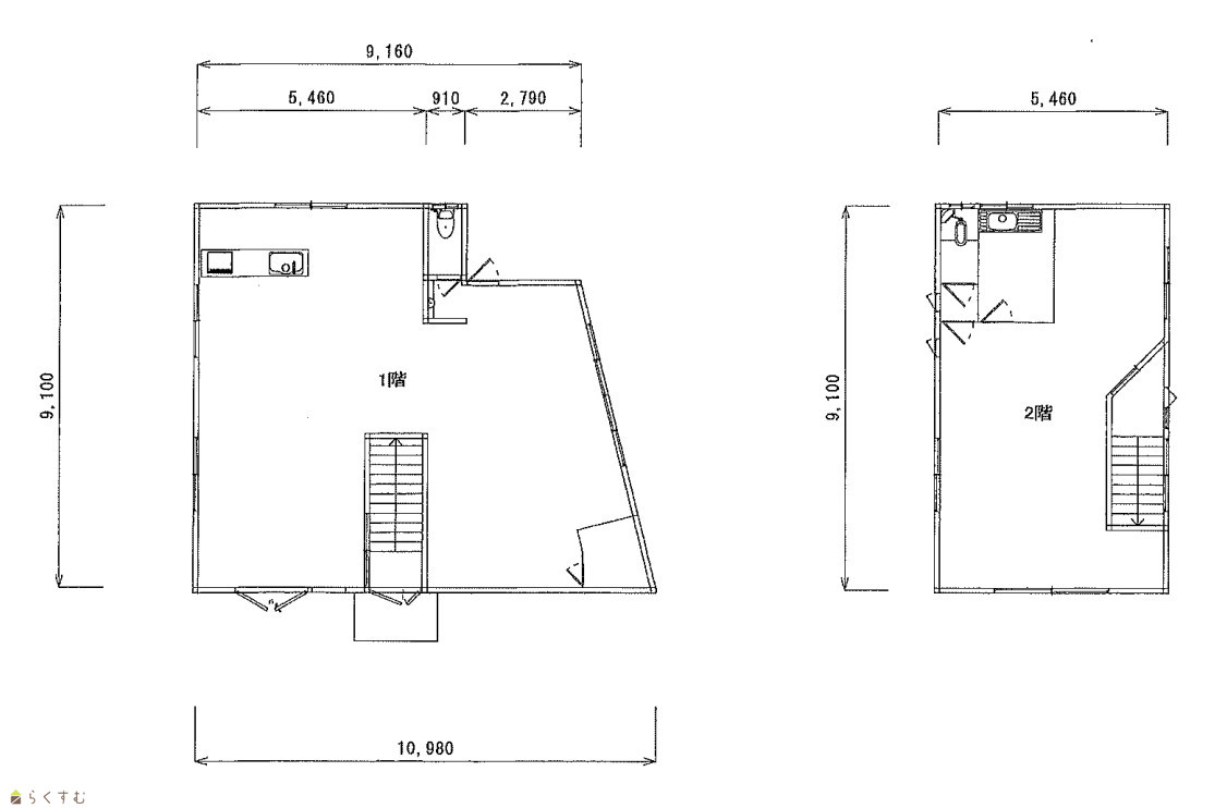
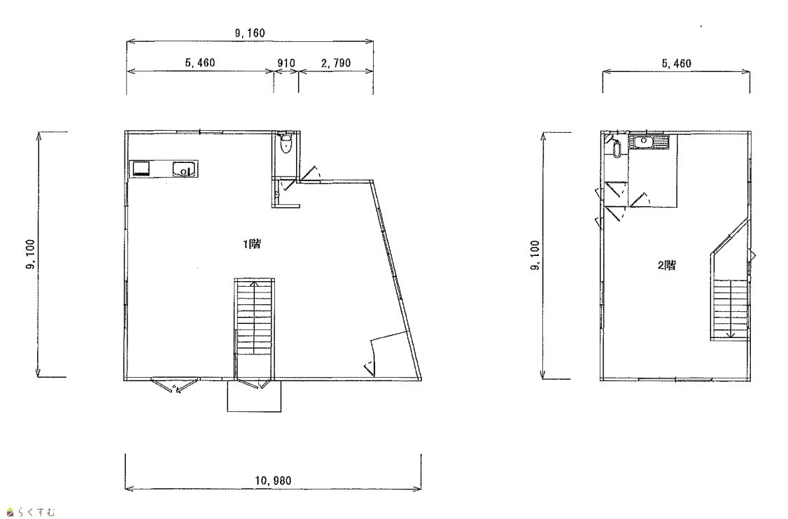
| 建物面積 | 1階 84.93㎡/ 2階 49.68㎡/ 計 134.61㎡ /40.71坪 | ||
| 土地面積 | 182.57㎡ /55.22坪 | ||
| 築年月 | 1992年4月(築34年) | ||
| 入居(引き渡し)時期 | 相談 | ||
| 用途地域 | 第1種低層住居専用地域 | 地目 | 宅地 |
| 都市計画 | 市街化区域 | 学校区 | 富岡小学校(657m)・城東中学校(3,838m) |
| 形状 | - | 道路 | - |
| 私道 | - | その他の制限 | - |
| 所在階/階数 | - | 号室 | - |
|---|---|---|---|
| 販売価格 | 15,000,000円 | 方位 | - |
| 間取り |
2LDK 1階が店舗、2階が事務所となっています。 |
||
| 専有面積 | - | バルコニー面積 | - |
| その他面積 | - | 駐車場 | - |
| 管理費 | - | 修繕積立金 | - |
| 現況 | 居住中 | ||
| 仲介手数料 | 561,000円 | ||
| 利用制限 | - | ||
| 設備 | 角地、日当り良好、駐車3台以上可能 | ||
| 取引態様 | 一般 | ||
| 備考 | - | ||
| 取り扱い会社 |
上越宅地販売株式会社 新潟県上越市南高田町1-2アサノビル1階 |
||
| 情報登録日 | 2023/12/10 | 次回更新予定日 | 2026/06/05 |
| 取引条件有効期限 | 2024/03/31 | ||
| TEL: | 025-522-3838 | |
|---|---|---|
| 所在地: | 新潟県上越市南高田町1-2アサノビル1階 | |
| 交通: | 妙高はねうまライン 南高田駅 徒歩1分 | |
| 営業時間: | 9:00~18:30/定休日:毎週水曜日・GW(5/2~5/6)・夏季・・年末年始 | |
| 免許番号: | 新潟県知事(9)第3372号 | |
| 所属団体名: | 公社 新潟県宅地建物取引協会 上越支部 | |
| 取引態様: | 一般 | |
| ホームページ: | http://takuhan.com/ | |