新潟県上越市南本町1丁目5-18 投資物件・その他 4,000,000円の物件情報

幹線道路沿い!水回りリフォーム済み!

物件名/所在地 詳細 価格
表面利回り
南本町1丁目 売家
新潟県上越市南本町1丁目5-18
  • 土地面積
    :158.4㎡ /47.91坪
  • 建ぺい率
    :60%
  • 容積率
    :200%
4,000,000
12%
(満室想定時)
  • 南本町1丁目 売家
    上越宅地販売株式会社
  • この物件を問い合わせる/無料
  • TEL: 025-522-3838 025-522-3838

物件画像

外観
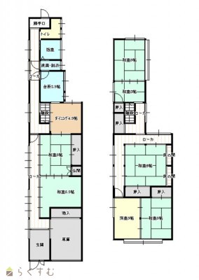
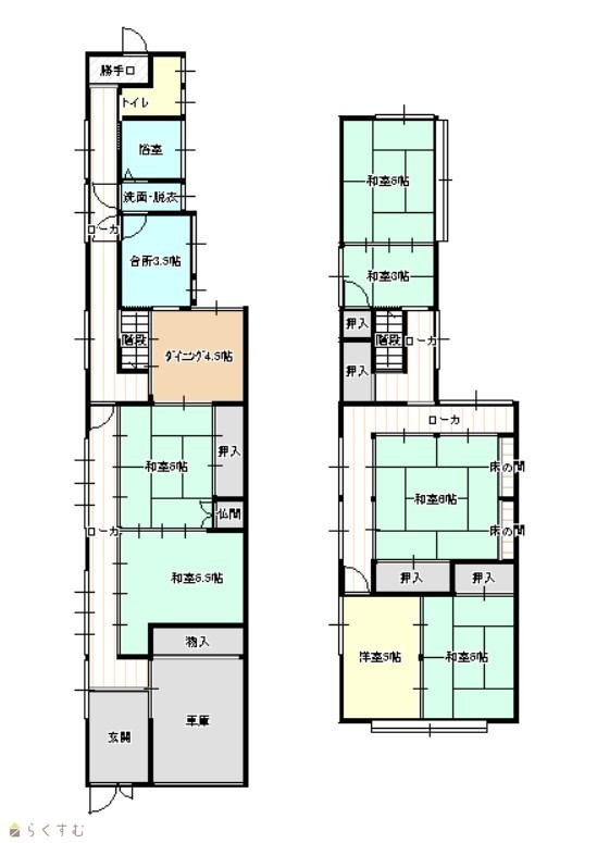
間取り
物件画像
※画像クリックで拡大表示
外観
物件画像
※画像クリックで拡大表示
間取図
詳細画像
物件画像
1階和室
物件画像
浴室
物件画像
キッチン
物件画像
トイレ
物件画像
2階 和室
物件画像
2階 洋室和室
物件画像
周辺地図


物件概要

物件コード 00308-200232
物件名 南本町1丁目 売家
交通 駅:妙高はねうまライン 南高田駅から徒歩13分
物件所在地 新潟県上越市南本町1丁目5-18
物件種別 投資物件・その他
物件区分 1棟売りマンション・アパート
構造 木造 階建 地上2階建
建ぺい率/容積率 60%/200%
建物面積 1階 93.32㎡/ 2階 42.97㎡/ 計 136.29㎡ /41.22坪
土地面積 158.4㎡ /47.91坪
築年月 不詳
入居(引き渡し)時期 相談
用途地域 準工業地域 地目 宅地
都市計画 市街化区域 学校区 南本町小学校(1,017m)・城西中学校(677m)
形状 - 道路 西側 9m
私道 - その他の制限 -
  • 南本町1丁目 売家
    上越宅地販売株式会社
  • この物件を問い合わせる/無料
  • TEL: 025-522-3838 025-522-3838

物件詳細情報

所在階/階数 - 号室 -
販売価格 4,000,000円 方位 -
表面利回り(満室想定時) 12% 満室想定年収 480,000円 (想定月収: 40,000円 )
現行利回り 12% 現行年間年収 480,000円
住戸数 1
間取り 6DK
専有面積 136.29㎡ /41.22坪 ~ 136.29㎡ /41.22坪 バルコニー面積 -
その他面積 - 駐車場 車庫に1台
管理費 - 修繕積立金 -
現況 賃貸中
仲介手数料 330,000円
利用制限 -
設備 -
取引態様 一般
備考 現在、賃貸中です。
取り扱い会社

上越宅地販売株式会社

新潟県上越市南高田町1-2アサノビル1階

情報登録日 2024/08/30 次回更新予定日 2025/11/16
取引条件有効期限 2024/03/31
  • 南本町1丁目 売家
    上越宅地販売株式会社
  • この物件を問い合わせる/無料
  • TEL: 025-522-3838 025-522-3838

この物件の地図・周辺情報・行政情報

この物件の周辺情報・行政情報を詳しく見る
【周辺情報】
物件の近くにあるコンビニや銀行・学校など、アイコン付のマップで詳しく表示できます!
【行政情報】
水道料や下水道料・ガス料金など、暮らしに関係のある情報を表示しています。

担当取扱い店舗情報

取扱い店舗画像
上越宅地販売株式会社
TEL: 025-522-3838
所在地: 新潟県上越市南高田町1-2アサノビル1階
交通: 妙高はねうまライン 南高田駅 徒歩1分
営業時間: 9:00~18:30/定休日:毎週水曜日・GW・夏季・臨時休業(9/21日曜日)・年末年始
免許番号: 新潟県知事(9)第3372号
所属団体名: 公社 新潟県宅地建物取引協会 上越支部
取引態様: 一般
ホームページ: http://takuhan.com/