新潟県上越市柿崎区柿崎6647ー4 中古一戸建て 5K 800,000円の物件情報

銀行、郵便局が近くて便利

物件名/所在地 詳細 価格
諏訪中古物件
新潟県上越市柿崎区柿崎6647ー4
  • 土地面積
    :181.96㎡ /55.04坪
  • 建物面積
    :104.17㎡ /31.51坪
  • 間取り
    :5K
  • 築年月
    :不詳
800,000
  • 諏訪中古物件
    有限会社古田建築
  • この物件を問い合わせる/無料
  • TEL: 025-536-2741 025-536-2741

物件画像

外観
間取り
物件画像
※画像クリックで拡大表示
外観
物件画像
※画像クリックで拡大表示
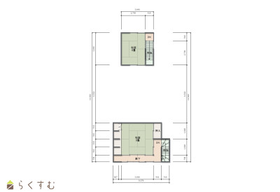
1階間取り
詳細画像
物件画像
2階間取り
物件画像
1階居間
物件画像
1階和室6畳
物件画像
1階洋室8畳
物件画像
1階洋室8畳
物件画像
キッチン
物件画像
洋式トイレ
物件画像
和式トイレ
物件画像
洗面台
物件画像
浴室
物件画像
2階和室6畳
物件画像
2階和室8畳
物件画像
印刷用地図


物件概要

銀行、郵便局が近くて便利
物件コード 00284-200029
物件名 諏訪中古物件
交通 駅:信越線 柿崎駅から徒歩6分、バス:住吉町から徒歩2分
物件所在地 新潟県上越市柿崎区柿崎6647ー4
物件種別 中古一戸建て
構造 木造 階建 地上2階建
建ぺい率/容積率 80%/400%
建物面積 1階 71.1㎡/ 2階 33.07㎡/ 計 104.17㎡ /31.51坪
土地面積 181.96㎡ /55.04坪
築年月 不詳
入居(引き渡し)時期 随時入居(引き渡し)可
用途地域 商業地域 地目 宅地  (現状:宅地)
都市計画 非線引き都市計画区域 学校区 柿崎小学校(468m)・柿崎中学校(892m)
形状 - 道路 -
私道 - その他の制限 -
  • 諏訪中古物件
    有限会社古田建築
  • この物件を問い合わせる/無料
  • TEL: 025-536-2741 025-536-2741

物件詳細情報

所在階/階数 - 号室 -
販売価格 800,000円 方位 -
間取り 5K (和室:6畳、6畳、8畳、8畳) (洋室:8)
専有面積 - バルコニー面積 -
その他面積 - 駐車場 -
管理費 - 修繕積立金 -
現況 空家
仲介手数料 110,000円
利用制限 -
設備 ガスコンロ設置可能、トイレ2か所以上、都市ガス、上水道、浄化槽、即引き渡し可能、別荘、田舎暮らし
取引態様 専任
備考 -
取り扱い会社

有限会社古田建築

新潟県上越市柿崎区柿崎7248

情報登録日 2025/06/30 次回更新予定日 2025/11/19
取引条件有効期限 2025/12/30
  • 諏訪中古物件
    有限会社古田建築
  • この物件を問い合わせる/無料
  • TEL: 025-536-2741 025-536-2741

この物件の地図・周辺情報・行政情報

この物件の周辺情報・行政情報を詳しく見る
【周辺情報】
物件の近くにあるコンビニや銀行・学校など、アイコン付のマップで詳しく表示できます!
【行政情報】
水道料や下水道料・ガス料金など、暮らしに関係のある情報を表示しています。
セブン-イレブン 上越柿崎インター店(コンビニ)まで740m
ナルス 柿崎店(スーパー)まで830m
新潟県立柿崎病院(病院)まで360m
第四北越銀行 柿崎支店(銀行)まで280m
上越信用金庫 柿崎支店(銀行)まで340m
柿崎郵便局(郵便局)まで350m

※カメラのアイコンがある場合は、マウスをポイントするとその施設の画像がご覧いただけます。


担当取扱い店舗情報

取扱い店舗画像
有限会社古田建築
TEL: 025-536-2741
所在地: 新潟県上越市柿崎区柿崎7248
交通: JR信越線・柿崎駅
営業時間: 8:00 ~ 18:00/定休日:日曜・祝祭日
免許番号: 新潟県知事(5)第4266号
所属団体名: 公社 新潟県宅地建物取引協会 上越支部
取引態様: 専任
ホームページ: http://furutakenchiku.com