新潟県上越市東本町3丁目3-29 中古一戸建て 4K 1,200,000円の物件情報

☆倉庫・車庫用途の中古物件☆

物件名/所在地 詳細 価格
東本町3丁目
新潟県上越市東本町3丁目3-29
  • 土地面積
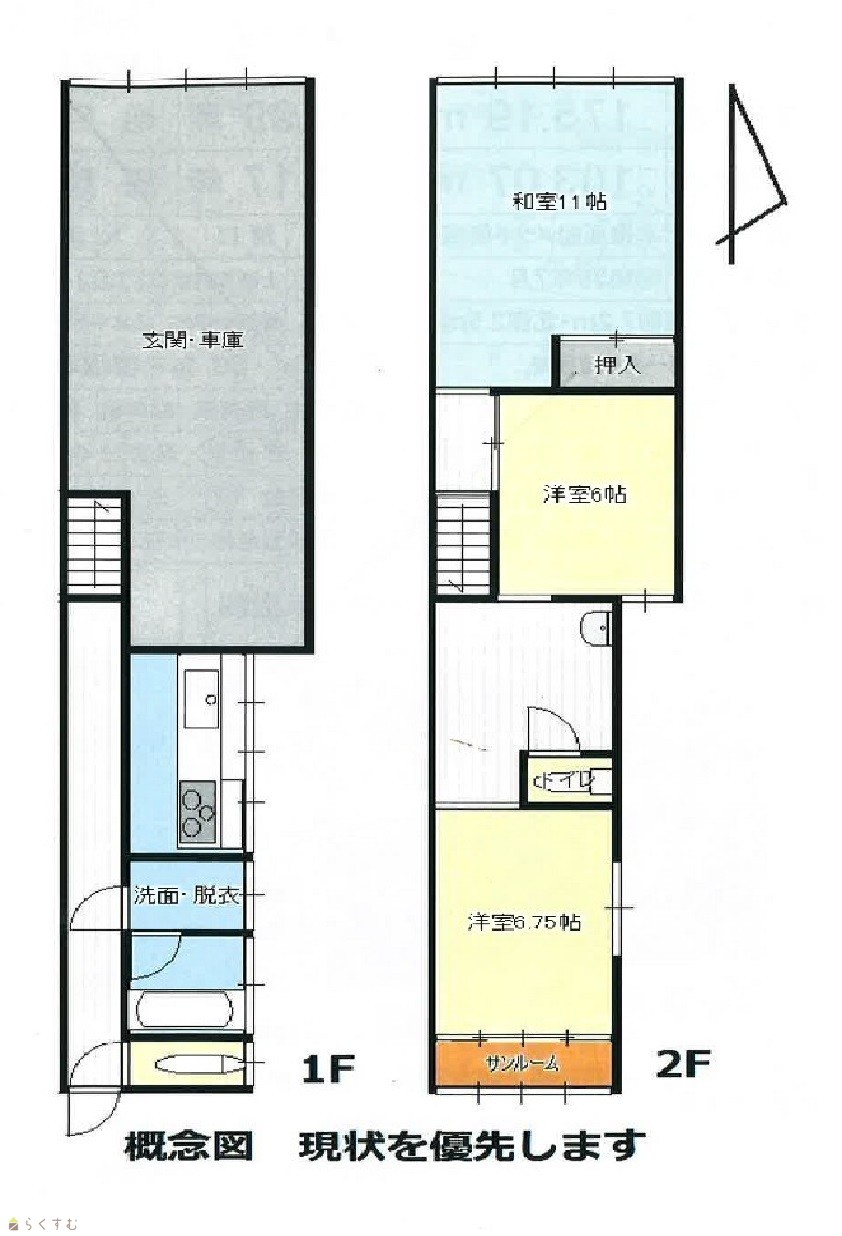
    :175.19㎡ /52.99坪
  • 建物面積
    :103.07㎡ /31.17坪
  • 間取り
    :4K
  • 築年月
    :1960年7月
1,200,000
  • 東本町3丁目
    有限会社田村家具店
  • この物件を問い合わせる/無料
  • TEL: 025-523-2438 025-523-2438

物件画像

外観
間取り
物件画像
※画像クリックで拡大表示
物件画像
※画像クリックで拡大表示
詳細画像
物件画像
前面道路


物件概要

物件コード 00277-200238
物件名 東本町3丁目
交通 駅:妙高はねうまライン 高田駅から徒歩21分
物件所在地 新潟県上越市東本町3丁目3-29
物件種別 中古一戸建て
構造 木造 階建 地上2階建
建ぺい率/容積率 60%/200%
建物面積 計 103.07㎡ /31.17坪
土地面積 175.19㎡ /52.99坪
築年月 1960年7月(築65年)
入居(引き渡し)時期 随時入居(引き渡し)可
用途地域 第1種住居地域 地目 宅地  (現状:宅地)
都市計画 市街化区域 学校区 東本町小学校(454m)・城北中学校(523m)
形状 間口 3.5m 道路 南側約7.2m
私道 - その他の制限 -
  • 東本町3丁目
    有限会社田村家具店
  • この物件を問い合わせる/無料
  • TEL: 025-523-2438 025-523-2438

物件詳細情報

所在階/階数 - 号室 -
販売価格 1,200,000円 方位 指定なし
間取り 4K
専有面積 - バルコニー面積 -
その他面積 - 駐車場 -
管理費 - 修繕積立金 -
現況 空家
仲介手数料 なし
利用制限 -
設備 駐車2台可能、南向き、トイレ2か所以上、都市ガス、上水道、浄化槽
取引態様 一般
備考 ・車庫や倉庫の用途に適した中古物件です!
・ライフラインや居住設備については、修繕が必要と思うます。
・下水道負担金は完納済みで下水マスは敷地内に有りません。

※本体代金に別途仲介手数料・諸費用が掛かります。
取り扱い会社

有限会社田村家具店

新潟県上越市稲田4-5-21

情報登録日 2025/04/01 次回更新予定日 2026/06/07
取引条件有効期限 2031/12/31
  • 東本町3丁目
    有限会社田村家具店
  • この物件を問い合わせる/無料
  • TEL: 025-523-2438 025-523-2438

この物件の地図・周辺情報・行政情報

この物件の周辺情報・行政情報を詳しく見る
【周辺情報】
物件の近くにあるコンビニや銀行・学校など、アイコン付のマップで詳しく表示できます!
【行政情報】
水道料や下水道料・ガス料金など、暮らしに関係のある情報を表示しています。

担当取扱い店舗情報

取扱い店舗画像
有限会社田村家具店
TEL: 025-523-2438
所在地: 新潟県上越市稲田4-5-21
交通: 高田駅
営業時間: 午前9:00~午後18:00/定休日:水曜日 第1、第3日曜日
免許番号: 新潟県知事(10)第2792号
所属団体名: 公社 新潟県宅地建物取引協会 上越支部
取引態様: 一般