ご商談中!
| 物件名/所在地 | 詳細 | 価格 |
|---|---|---|
| 三和区川浦 戸建 1997年築
新潟県上越市三和区川浦496 |
|
16,800,000円 |
| 広い敷地に駐車スペースも多くあります。高床式3階建の戸建! 敷地174.99坪 1997年築! | |||
| 物件コード | 00250-200072 | ||
|---|---|---|---|
| 物件名 | 三和区川浦 戸建 1997年築 | ||
| 交通 | 駅:妙高はねうまライン 高田駅から徒歩107分 | ||
| 物件所在地 | 新潟県上越市三和区川浦496 | ||
| 物件種別 | 中古一戸建て | ||
| 構造 | 木造鉄筋コン | 階建 | 地上3階建 |
| 建ぺい率/容積率 | - | ||
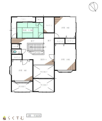
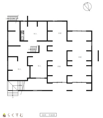
| 建物面積 | 1階 162.66㎡/ 2階 164.88㎡/ 3階 94.59㎡/ 計 422.13㎡ /127.69坪 | ||
| 土地面積 | 578.51㎡ /174.99坪 | ||
| 築年月 | 1997年9月(築28年) | ||
| 入居(引き渡し)時期 | 相談 | ||
| 用途地域 | 無指定 | 地目 | 宅地 (現状:宅地) |
| 都市計画 | 都市計画区域外 | 学校区 | 三和小学校(972m)・三和中学校(3,410m) |
| 形状 | 間口 28m × 奥行 20.5m | 道路 | 物件は市道(幅員10.2m)から赤道を経由。 |
| 私道 | 北側赤道(幅員3m) | その他の制限 | - |
| 所在階/階数 | - | 号室 | - |
|---|---|---|---|
| 販売価格 | 16,800,000円 | 方位 | 南 |
| 間取り |
9DK (和室:8畳、10畳、10畳、8畳、7.5畳、7.5畳) (洋室:8、10、8) DK8 |
||
| 専有面積 | - | バルコニー面積 | - |
| その他面積 | - | 駐車場 | - |
| 管理費 | - | 修繕積立金 | - |
| 現況 | 空家 | ||
| 仲介手数料 | 620,400円 | ||
| 固定資産税/年間 |
87,531円
|
||
| 利用制限 | - | ||
| 設備 | 日当り良好、閑静な住宅街、新築時図面あり、駐車3台以上可能、南向き、システムキッチン、カウンターキッチン、3口コンロ、追いだき機能付き、浴室乾燥機、バス1坪以上、温水洗浄便座、トイレ2か所以上、シャワー付き洗面台、エアコンあり、LPG、上水道、下水道、シューズBOX、2世帯向き、即引き渡し可能、田舎暮らし | ||
| 取引態様 | 専任 | ||
| 備考 | 上水道・下水道・プロパンガス 屋根の雪は東側へ自然落下。 |
||
| 取り扱い会社 |
越乃エステート株式会社 新潟県上越市春日野1丁目7番4号オフィスYAMADA-B号 |
||
| 情報登録日 | 2025/10/27 | 次回更新予定日 | 2025/11/19 |
| 取引条件有効期限 | 2026/01/27 | ||
| TEL: | 025-520-6623 | |
|---|---|---|
| 所在地: | 新潟県上越市春日野1丁目7番4号オフィスYAMADA-B号 | |
| 交通: | 春日山駅より徒歩8分 | |
| 営業時間: | 9:00~17:00/定休日:水・日 | |
| 免許番号: | 新潟県知事(1)第5592号 | |
| 所属団体名: | 公益社団法人 全日本不動産協会 新潟県本部 | |
| 取引態様: | 専任 | |
| ホームページ: | https://koshino-e.com | |