新潟県長岡市草生津3丁目3-26付近 新築一戸建て 3LDK 26,900,000円の物件情報

【子育て世帯オススメ♪通学安心な住環境】 ■前面道路消雪パイプ有 ■LDKエアコン1台付き ■多彩な収納完備 ■長生橋近くで川西へのアクセス良好

物件名/所在地 詳細 価格
( 新築住宅)長岡市草生津
新潟県長岡市草生津3丁目3-26付近
  • 土地面積
    :152.86㎡ /46.24坪
  • 建物面積
    :90.66㎡ /27.42坪
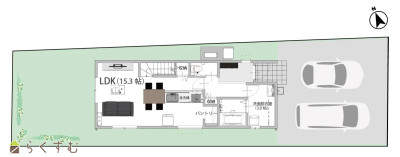
  • 間取り
    :3LDK
  • 築年月
    :2026年4月
26,900,000
  • ( 新築住宅)長岡市草生津
    新潟土地建物販売センター 株式会社
  • この物件を問い合わせる/無料
  • TEL: 0258-89-8245 0258-89-8245

物件画像

外観
間取り
物件画像
※画像クリックで拡大表示
4月完成予定♪同施工会社の完成物件をご案内します!
物件画像
※画像クリックで拡大表示
間取り
詳細画像
物件画像
駐車2台可能!


物件概要

2箇所のWICやリビング収納、パントリーなど収納充実♪コンパクトながらも住空間を充分に確保できる間取りです。1階の洗面脱衣室で室内干しもできるので天候に左右されず安心です◎
物件コード 00239-200615
物件名 ( 新築住宅)長岡市草生津
交通 駅:上越新幹線 長岡駅から徒歩19分、バス:長生橋東詰から徒歩4分
物件所在地 新潟県長岡市草生津3丁目3-26付近
物件種別 新築一戸建て
構造 木造 階建 地上2階建
建ぺい率/容積率 60%/200%
建物面積 1階 44.71㎡/ 2階 45.95㎡/ 計 90.66㎡ /27.42坪
土地面積 152.86㎡ /46.24坪
築年月 2026年4月完成予定
入居(引き渡し)時期 相談
用途地域 第1種住居地域 地目 宅地
都市計画 市街化区域 学校区 千手小学校(300m)・南中学校(850m)
形状 - 道路 東側8.0m公道
私道 - その他の制限 法22条
  • ( 新築住宅)長岡市草生津
    新潟土地建物販売センター 株式会社
  • この物件を問い合わせる/無料
  • TEL: 0258-89-8245 0258-89-8245

物件詳細情報

所在階/階数 - 号室 -
販売価格 26,900,000円 方位 南西
間取り 3LDK (洋室:6.7、6.0、4.5)
LDK15.3
専有面積 - バルコニー面積 -
その他面積 - 駐車場 -
管理費 - 修繕積立金 -
現況 空家
仲介手数料 953,700円
利用制限 -
設備 整形地、前面道路6m以上、日当り良好、閑静な住宅街、LDK15畳以上、全室フローリング、駐車場2台以上、TVインターホン、複層ガラス、システムキッチン、カウンターキッチン、IHクッキングヒーター、3口コンロ、追いだき機能付き、バス1坪以上、温水洗浄便座、シャワー付き洗面台、エアコン、24時間換気システム、オール電化、省エネ給湯、高気密高断熱住宅、上水道、下水道、電気、ウォークインクローゼット、全居室収納あり、照明器具付き、バリアフリー
取引態様 一般
備考 【教育】
千手小学校 約300m 徒歩約4分
南中学校 約850m 徒歩約11分

【交通】
JR上越新幹線 長岡駅 徒歩約19分
越後交通バス 長生橋東詰 徒歩約4分

【備考】
町内会費 12,000円
消雪組合費 6,000円

-物件情報-
■リビング収納・パントリー・ウォークインクローゼットなどの収納が充実
■火を使わない安心安全なオール電化
■全居室に収納スペースを完備
■3帖の脱衣室・ランドリールームで家事動線スムーズ
■トイレ1,2階に完備
取り扱い会社

新潟土地建物販売センター 株式会社

新潟県長岡市台町1-7-331階

情報登録日 2025/11/21 次回更新予定日 2026/03/06
取引条件有効期限 2027/12/31
  • ( 新築住宅)長岡市草生津
    新潟土地建物販売センター 株式会社
  • この物件を問い合わせる/無料
  • TEL: 0258-89-8245 0258-89-8245

この物件の地図・周辺情報・行政情報

この物件の周辺情報・行政情報を詳しく見る
【周辺情報】
物件の近くにあるコンビニや銀行・学校など、アイコン付のマップで詳しく表示できます!
【行政情報】
水道料や下水道料・ガス料金など、暮らしに関係のある情報を表示しています。
セブン-イレブン 長岡西千手店(コンビニ)まで240m
ローソン 長岡幸町店(コンビニ)まで640m

※カメラのアイコンがある場合は、マウスをポイントするとその施設の画像がご覧いただけます。


担当取扱い店舗情報

取扱い店舗画像
新潟土地建物販売センター 株式会社
TEL: 0258-89-8245
所在地: 新潟県長岡市台町1-7-331階
交通: 長岡駅
営業時間: 9:00~18:00/定休日:なし
免許番号: 新潟県知事(3)第5151号
所属団体名: 公社 新潟県宅地建物取引協会 新潟支部
取引態様: 一般
ホームページ: https://niigata-tochitate.jp/