新潟県見附市昭和町2丁目11-12 中古一戸建て 4LDK 21,980,000円の物件情報

■内外装リノベーション ■駐車並列4台可能 ■各種生活施設近く便利な住環境 ■住宅ローン控除及び各種優遇税制対象物件

物件名/所在地 詳細 価格
見附市昭和町 リノベーション住宅
新潟県見附市昭和町2丁目11-12
  • 土地面積
    :211.57㎡ /63.99坪
  • 建物面積
    :120.63㎡ /36.49坪
  • 間取り
    :4LDK
  • 築年月
    :2005年11月
21,980,000
  • 見附市昭和町 リノベーション住宅
    新潟土地建物販売センター 株式会社
  • この物件を問い合わせる/無料
  • TEL: 0258-89-8245 0258-89-8245

物件画像

外観
間取り
物件画像
※画像クリックで拡大表示
外観
物件画像
※画像クリックで拡大表示
収納充実の全室6帖超!納戸も備えており住空間がスッキリ!
詳細画像
物件画像
駐車4台可能なので来客時も安心
物件画像
ご案内いたします! お気軽にご連絡ください(^^♪


物件概要

新耐震基準物件+第三者機関によるインスペクション(建物調査)を実施予定♪安心してすぐにお住まいいただけます!水回りも全て新品なので新生活を気持ちよくスタートできますね。工事中でもご見学可能です。
物件コード 00239-200610
物件名 見附市昭和町 リノベーション住宅
交通 駅:信越線 見附駅から徒歩20分、バス:市野坪南から徒歩3分
物件所在地 新潟県見附市昭和町2丁目11-12
物件種別 中古一戸建て
構造 木造 階建 地上2階建
建ぺい率/容積率 60%/200%
建物面積 1階 61.14㎡/ 2階 59.49㎡/ 計 120.63㎡ /36.49坪
土地面積 211.57㎡ /63.99坪
築年月 2005年11月(築20年)
入居(引き渡し)時期 相談
用途地域 第1種中高層住居専用地域 地目 宅地
都市計画 市街化区域 学校区 葛巻小学校(1,500m)・西中学校(550m)
形状 - 道路 北西側約6.0m公道
私道 - その他の制限 法22条
  • 見附市昭和町 リノベーション住宅
    新潟土地建物販売センター 株式会社
  • この物件を問い合わせる/無料
  • TEL: 0258-89-8245 0258-89-8245

物件詳細情報

所在階/階数 - 号室 -
販売価格 21,980,000円 方位 南東
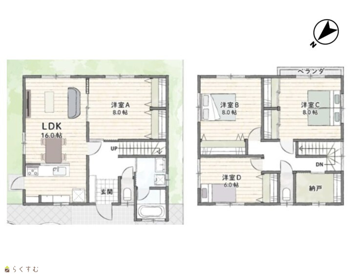
間取り 4LDK (洋室:8.0、8.0、8.0、6.0)
LDK16.0
2階に納戸有り
専有面積 - バルコニー面積 -
その他面積 - 駐車場 -
管理費 - 修繕積立金 -
現況 空家
仲介手数料 791,340円
利用制限 -
設備 日当り良好、閑静な住宅街、スーパー近く、LDK15帖以上、全室フローリング、駐車3台以上可能、TVインターホン、複層ガラス、システムキッチン、カウンターキッチン、浄水器、食器洗浄乾燥機、3口コンロ、追いだき機能付き、浴室乾燥機、バス1坪以上、温水洗浄便座、トイレ2か所以上、シャワー付き洗面台、エアコンあり、省エネ給湯機、都市ガス、上水道、下水道、全居室収納あり、シューズBOX、リノベーション物件
取引態様 一般
備考 【教育機関】
葛巻小学校 約1500m 徒歩約19分
西中学校 約550m 徒歩約7分

【交通機関】
JR信越本線 見附駅 徒歩約20分
みつけコミュニティバス 市野坪南 徒歩約3分

【備考】
・町内会費:9,600円/年
・消雪組合費:12,000円/年

【リノベーション内容】2025年12月完了予定
~新規交換~
・システムキッチン(食洗機・浄水器付)
・食器棚
・ユニットバス(浴室暖房換気乾燥機付)
・洗面化粧台(LED三面鏡)
・トイレ(ウォシュレット付)×2
・給湯器
・建具一部
・窓枠一部
・照明器具(全てLED)
・モニターホン

~新規張替・その他~
・フロア増し張り(1階)
・クロス貼替
・外壁塗装
・屋根洗浄
・玄関ドア鍵交換
・網戸張替
・整地、防草シート
・防蟻工事(5年保証)
・ハウスクリーニング
※工事内容は変更になる場合がございます※
取り扱い会社

新潟土地建物販売センター 株式会社

新潟県長岡市台町1-7-331階

情報登録日 2025/11/04 次回更新予定日 2025/11/20
取引条件有効期限 2026/12/31
  • 見附市昭和町 リノベーション住宅
    新潟土地建物販売センター 株式会社
  • この物件を問い合わせる/無料
  • TEL: 0258-89-8245 0258-89-8245

この物件の地図・周辺情報・行政情報

この物件の周辺情報・行政情報を詳しく見る
【周辺情報】
物件の近くにあるコンビニや銀行・学校など、アイコン付のマップで詳しく表示できます!
【行政情報】
水道料や下水道料・ガス料金など、暮らしに関係のある情報を表示しています。
セブン-イレブン 見附市役所通り店(コンビニ)まで320m
ウオロク 見附店(スーパー)まで440m

※カメラのアイコンがある場合は、マウスをポイントするとその施設の画像がご覧いただけます。


担当取扱い店舗情報

取扱い店舗画像
新潟土地建物販売センター 株式会社
TEL: 0258-89-8245
所在地: 新潟県長岡市台町1-7-331階
交通: 長岡駅
営業時間: 9:00~18:00/定休日:なし
免許番号: 新潟県知事(3)第5151号
所属団体名: 公社 新潟県宅地建物取引協会 新潟支部
取引態様: 一般
ホームページ: https://niigata-tochitate.jp/