新潟県長岡市三和1丁目7ー23付近 新築一戸建て 4LDK 33,800,000円の物件情報

■前面6m公道 ■複合商業施設まで車約4分 ■駐車並列3台可 ■全居室収納有、ゆとりある室内空間

物件名/所在地 詳細 価格
(新築住宅)長岡市三和町 第1 1号棟
新潟県長岡市三和1丁目7ー23付近
  • 土地面積
    :295.39㎡ /89.35坪
  • 建物面積
    :108.54㎡ /32.83坪
  • 間取り
    :4LDK
  • 築年月
    :2025年12月
33,800,000
  • (新築住宅)長岡市三和町 第1 1号棟
    新潟土地建物販売センター 株式会社
  • この物件を問い合わせる/無料
  • TEL: 0258-89-8245 0258-89-8245

物件画像

外観
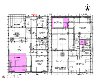
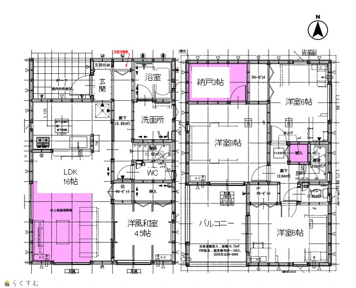
間取り
物件画像
※画像クリックで拡大表示
敷地面積約89坪のゆとりある住まい!お気軽にご連絡ください♪
物件画像
※画像クリックで拡大表示
全居室収納付♪住み心地のいい大きさ。お問い合わせ下さい♪
詳細画像
物件画像
区画図 駐車3台可能
物件画像
前面道路北側8m公道♪お車の出し入れも安心です(^^)/
物件画像
【ご購入者様特典のメンテナンス制度】
物件画像
耐震装置【SAFE365】搭載
物件画像
ベタ基礎工法採用 より丈夫な土台を築く為にこだわっています。
物件画像
住宅性能表示制度において耐震、劣化対策など、最高等級を取得
物件画像
陽当たり良好な南向き16帖LDK。※家具はCG合成です
物件画像
収納完備で、生活感を抑えた快適な住空間に。
物件画像
お料理をしながらリビングを見渡せるカウンターキッチン。
物件画像
ミラー扉の内側がすべて収納スペースになっている三面鏡の洗面台
物件画像
足をのばしてゆったり入浴時間を楽しめます♪
物件画像
温水洗浄機能付きのシンプルなトイレを各階に完備。
物件画像
1階和室4.5帖 客間や寛ぎスペースとして多目的に使用可能。
物件画像
2階洋室8帖 バルコニーへ出入り可能な納戸付きのお部屋。
物件画像
2階洋室6帖 全居室収納付き、2面採光で日当たり、通風良好。
物件画像
2階洋室6帖 子ども部屋や書斎にもぴったりなお部屋です。
物件画像
広々インナーバルコニーには物干し付き。急な雨でも安心です(
物件画像
大容量の玄関収納!ご家族の履物がスッキリ片付き急な来客も安心
物件画像
広々としたお庭付き♪


物件概要

◆毎日営業中!当日のご内覧大歓迎!いつでもご案内します!!◆急なご来店でも相談出来ます◆豊富な知識と経験を基に丁寧にアドバイスします!先ずはお電話、メール、LINEにてお問合せ下さい♪
物件コード 00239-200608
物件名 (新築住宅)長岡市三和町 第1 1号棟
交通 駅:信越線 宮内駅から徒歩22分、バス:三和町から徒歩4分
物件所在地 新潟県長岡市三和1丁目7ー23付近
物件種別 新築一戸建て
構造 木造 階建 地上2階建
建ぺい率/容積率 60%/200%
建物面積 1階 51.84㎡/ 2階 56.7㎡/ 計 108.54㎡ /32.83坪
土地面積 295.39㎡ /89.35坪
築年月 2025年12月(築2ヶ月)
入居(引き渡し)時期 随時入居(引き渡し)可
用途地域 第2種中高層住居専用地域 地目 宅地
都市計画 市街化区域 学校区 宮内小学校(1,100m)・宮内中学校(1,600m)
形状 - 道路 北側8.0m公道
私道 - その他の制限 建築基準法22条指定区域
  • (新築住宅)長岡市三和町 第1 1号棟
    新潟土地建物販売センター 株式会社
  • この物件を問い合わせる/無料
  • TEL: 0258-89-8245 0258-89-8245

物件詳細情報

所在階/階数 - 号室 -
販売価格 33,800,000円 方位
間取り 4LDK (和室:4.5畳) (洋室:8.0、6.0、6.0)
LDK16
2階に納戸3帖有
専有面積 - バルコニー面積 -
その他面積 - 駐車場 -
管理費 - 修繕積立金 -
現況 空家
仲介手数料 1,181,400円
利用制限 -
設備 前面道路6m以上、閑静な住宅街、耐震構造、LDK15畳以上、駐車場3台以上、南向き、TVインターホン、複層ガラス、ディンプルキー、システムキッチン、カウンターキッチン、浄水器、3口コンロ、ガスコンロ設置済み、追いだき機能付き、浴室暖房乾燥機、バス1坪以上、温水洗浄便座、シャワー付き洗面台、24時間換気システム、省エネ給湯、高気密高断熱住宅、都市ガス、上水道、下水道、電気、全居室収納あり、床下収納、シューズBOX、バリアフリー
取引態様 一般
備考 【教育】
宮内小学校 約1100m 徒歩約14分
宮内中学校 約1600m 徒歩約20分

【交通】
JR信越本線/上越線 宮内駅 徒歩約22分
越後交通 三和町 徒歩約4分

■■売って終わりにしない、充実のアフターサービス体制■■
◎アフターサービスの専門スタッフが、迅速・丁寧にご対応
◎独自のメンテナンス制度で設備の故障や建物の傷を無償修理
◎ご購入後のお困り事も、充実した体制で手厚くサポート

■■選べるプレゼント■■
◎エアコンや照明などの新生活に必要な設備を無料でプレゼント
取り扱い会社

新潟土地建物販売センター 株式会社

新潟県長岡市台町1-7-331階

情報登録日 2026/02/09 次回更新予定日 2026/03/06
取引条件有効期限 2026/12/31
  • (新築住宅)長岡市三和町 第1 1号棟
    新潟土地建物販売センター 株式会社
  • この物件を問い合わせる/無料
  • TEL: 0258-89-8245 0258-89-8245

この物件の地図・周辺情報・行政情報

この物件の周辺情報・行政情報を詳しく見る
【周辺情報】
物件の近くにあるコンビニや銀行・学校など、アイコン付のマップで詳しく表示できます!
【行政情報】
水道料や下水道料・ガス料金など、暮らしに関係のある情報を表示しています。
セブン-イレブン 長岡市立劇場前店(コンビニ)まで260m
ローソン 長岡左近店(コンビニ)まで860m
ウオロク 要町店(スーパー)まで850m
クスリのアオキ 千歳店(ドラッグストア)まで860m

※カメラのアイコンがある場合は、マウスをポイントするとその施設の画像がご覧いただけます。


担当取扱い店舗情報

取扱い店舗画像
新潟土地建物販売センター 株式会社
TEL: 0258-89-8245
所在地: 新潟県長岡市台町1-7-331階
交通: 長岡駅
営業時間: 9:00~18:00/定休日:なし
免許番号: 新潟県知事(3)第5151号
所属団体名: 公社 新潟県宅地建物取引協会 新潟支部
取引態様: 一般
ホームページ: https://niigata-tochitate.jp/