新潟県長岡市希望が丘南5丁目3-21付近 新築一戸建て 3LDK 26,600,000円の物件情報

\ファミリークローゼットやWICなどの多彩な収納が備わった家/ ■駐車2台可能 ■前面道路に消雪パイプ有 ■LDKエアコン完備 ■バイパス・教育施設・商業施設が徒歩圏内

物件名/所在地 詳細 価格
(新築住宅)長岡市希望が丘南
新潟県長岡市希望が丘南5丁目3-21付近
  • 土地面積
    :148.29㎡ /44.85坪
  • 建物面積
    :90.67㎡ /27.42坪
  • 間取り
    :3LDK
  • 築年月
    :2026年2月
26,600,000
  • (新築住宅)長岡市希望が丘南
    新潟土地建物販売センター 株式会社
  • この物件を問い合わせる/無料
  • TEL: 0258-89-8245 0258-89-8245

物件画像

外観
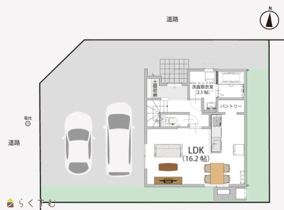
間取り
物件画像
※画像クリックで拡大表示
外観はシンプルにまとめたデザインです。
物件画像
※画像クリックで拡大表示
ファミリークローゼット+土間収納などの充実した収納を完備。
詳細画像
物件画像
駐車2台可能!
物件画像
落ち着いた色調のフローリングが心地よい16.2帖のLDK。
物件画像
心地よい光が差し込み、家族が自然と集う温かな空間。
物件画像
ご家族とのコミュニケーションが取りやすい対面式キッチン♪
物件画像
キッチン横にパントリーを備え、収納力と使い勝手を両立。
物件画像
お掃除がしやすいシャワーヘッドの洗面台です。
物件画像
ホスクリーン付きで、洗濯物を洗濯機からそのまま干せますね!
物件画像
足を伸ばしてゆったり入浴できる広々とした浴槽です。
物件画像
温水洗浄機能付きトイレで清潔にご使用いただけます。
物件画像
2階にもトイレがあるので安心ですね。
物件画像
2階洋室6.5帖 オープンクローゼットを完備!
物件画像
2階洋室6帖 ウォークインクローゼット付きのお部屋です。
物件画像
3帖のウォークインクローゼットは大容量収納(^^)/
物件画像
2階洋室6帖 子ども部屋やプライベート空間にいかがでしょうか
物件画像
2階には、ご家族みんなの収納・ファミリークローゼットあり♪
物件画像
玄関には土間収納もあり、ベビーカーなども置けちゃいます♪
物件画像
駐車スペースには並列駐車2台が可能♪
物件画像
前面道路は北側8m市道、西側6m市道、どちらも消雪パイプ完備


物件概要

豊富な収納と住環境の良さが魅力の新築住宅です♪ファミリークローゼットやWIC、パントリーなど、生活動線に沿った収納が充実!教育施設や買い物施設が徒歩圏内で、子育て世帯にもおすすめの立地です(^^♪
物件コード 00239-200582
物件名 (新築住宅)長岡市希望が丘南
交通 バス:希望が丘1丁目から徒歩8分
物件所在地 新潟県長岡市希望が丘南5丁目3-21付近
物件種別 新築一戸建て
構造 木造 階建 地上2階建
建ぺい率/容積率 60%/80%
建物面積 1階 44.3㎡/ 2階 46.37㎡/ 計 90.67㎡ /27.42坪
土地面積 148.29㎡ /44.85坪
築年月 2026年2月(築3ヶ月)
入居(引き渡し)時期 相談
用途地域 第1種低層住居専用地域 地目 宅地
都市計画 市街化区域 学校区 希望が丘小学校(500m)・西中学校(650m)
形状 - 道路 北側8.0m市道、西側6.0m市道
私道 - その他の制限 法22条
  • (新築住宅)長岡市希望が丘南
    新潟土地建物販売センター 株式会社
  • この物件を問い合わせる/無料
  • TEL: 0258-89-8245 0258-89-8245

物件詳細情報

所在階/階数 - 号室 -
販売価格 26,600,000円 方位
間取り 3LDK (洋室:6.5、6、6)
LDK16.2
ウォークインクローゼット3帖、ファミリークローゼット3帖、土間収納0.7帖あり
専有面積 - バルコニー面積 -
その他面積 - 駐車場 -
管理費 - 修繕積立金 -
現況 空家
仲介手数料 943,800円
利用制限 -
設備 角地、整形地、前面道路6m以上、日当り良好、閑静な住宅街、スーパー近く、LDK15畳以上、全室フローリング、駐車場2台以上、南向き、TVインターホン、複層ガラス、システムキッチン、カウンターキッチン、IHクッキングヒーター、3口コンロ、追いだき機能付き、バス1坪以上、温水洗浄便座、シャワー付き洗面台、エアコン、オール電化、省エネ給湯、上水道、下水道、電気、ウォークインクローゼット、全居室収納あり、床下収納、シューズインクローゼット、シューズBOX、照明器具付き、バリアフリー
取引態様 一般
備考 【教育】
希望が丘小学校 約500m 徒歩約7分
西中学校 約650m 徒歩約9分

【交通】
越後交通バス 希望が丘1丁目 徒歩約8分

【備考】
※町内費:9,600円/年
※消雪組合費:12,000円/年
※消雪組合加入金:200,000円

-物件情報-
■北西角地で日当たり・通風良好
■全居室6帖以上+収納完備
■各階にトイレ完備
■洗面脱衣室に物干し金物付きで室内干しにも便利
■ベビーカーなども置ける土間収納あり
■火を使わない安心安全なオール電化
■アクロスプラザ七日町まで徒歩12分
■フェニックス大橋までお車約3分
取り扱い会社

新潟土地建物販売センター 株式会社

新潟県長岡市台町1-7-331階

情報登録日 2026/05/20 次回更新予定日 2026/06/05
取引条件有効期限 2026/12/31
  • (新築住宅)長岡市希望が丘南
    新潟土地建物販売センター 株式会社
  • この物件を問い合わせる/無料
  • TEL: 0258-89-8245 0258-89-8245

この物件の地図・周辺情報・行政情報

この物件の周辺情報・行政情報を詳しく見る
【周辺情報】
物件の近くにあるコンビニや銀行・学校など、アイコン付のマップで詳しく表示できます!
【行政情報】
水道料や下水道料・ガス料金など、暮らしに関係のある情報を表示しています。
ファミリーマート 長岡新産東町店(コンビニ)まで750m
ウオロク 北山店(スーパー)まで840m
ココカラファイン 希望が丘店(ドラッグストア)まで750m

※カメラのアイコンがある場合は、マウスをポイントするとその施設の画像がご覧いただけます。


担当取扱い店舗情報

取扱い店舗画像
新潟土地建物販売センター 株式会社
TEL: 0258-89-8245
所在地: 新潟県長岡市台町1-7-331階
交通: 長岡駅
営業時間: 9:00~18:00/定休日:なし
免許番号: 新潟県知事(3)第5151号
所属団体名: 公社 新潟県宅地建物取引協会 新潟支部
取引態様: 一般
ホームページ: https://niigata-tochitate.jp/