新潟県見附市今町5丁目39-52 中古一戸建て 4LDK 21,980,000円の物件情報

見附市今町5丁目でリノベ住宅が出ました♬今町小・中学校・スーパー・コンビニ徒歩圏内で利便性良好♬車3台駐車可能(*‘∀‘)北東角地、前面道路も融雪完備になっております。耐震補強済、住宅ローン控除対象です。

物件名/所在地 詳細 価格
見附市今町5丁目【リノベ住宅】
新潟県見附市今町5丁目39-52
  • 土地面積
    :205.59㎡ /62.19坪
  • 建物面積
    :135.79㎡ /41.07坪
  • 間取り
    :4LDK
  • 築年月
    :1980年3月
21,980,000
  • 見附市今町5丁目【リノベ住宅】
    合同会社 さくら中央不動産
  • この物件を問い合わせる/無料
  • TEL: 0258-89-8842 0258-89-8842

物件画像

外観
間取り
物件画像
※画像クリックで拡大表示
外観
物件画像
※画像クリックで拡大表示
間取り
詳細画像
物件画像
キッチン
物件画像
洗面所
物件画像
バスルーム
物件画像
1Fトイレ
物件画像
リビング
物件画像
リビング
物件画像
リビング
物件画像
玄関
物件画像
1F収納
物件画像
1F洋室A
物件画像
2F洋室B
物件画像
2F洋室C
物件画像
2F洋室D
物件画像
2F洋室B・WIC
物件画像
2Fトイレ
物件画像
東南外観
物件画像
北東外観
物件画像
北西外観
物件画像
印刷用地図


物件概要

融資相談も承っております。お気軽にお問合せください(^^)/※物件から弊社事務所まで車で約2~3分です。
物件コード 00232-200134
物件名 見附市今町5丁目【リノベ住宅】
交通 駅:信越線 見附駅から徒歩30分
物件所在地 新潟県見附市今町5丁目39-52
物件種別 中古一戸建て
構造 木造 階建 地上2階建
建ぺい率/容積率 60%/200%
建物面積 1階 80.31㎡/ 2階 55.48㎡/ 計 135.79㎡ /41.07坪
土地面積 205.59㎡ /62.19坪
築年月 1980年3月(築46年)
入居(引き渡し)時期 相談
用途地域 準工業地域 地目 宅地
都市計画 市街化区域 学校区 今町小学校(566m)・今町中学校(664m)
形状 間口 14.22m × 奥行 12.83m 道路 公道(東6.0m/北6.0m)
私道 - その他の制限 -
  • 見附市今町5丁目【リノベ住宅】
    合同会社 さくら中央不動産
  • この物件を問い合わせる/無料
  • TEL: 0258-89-8842 0258-89-8842

物件詳細情報

所在階/階数 - 号室 -
販売価格 21,980,000円 方位 北東
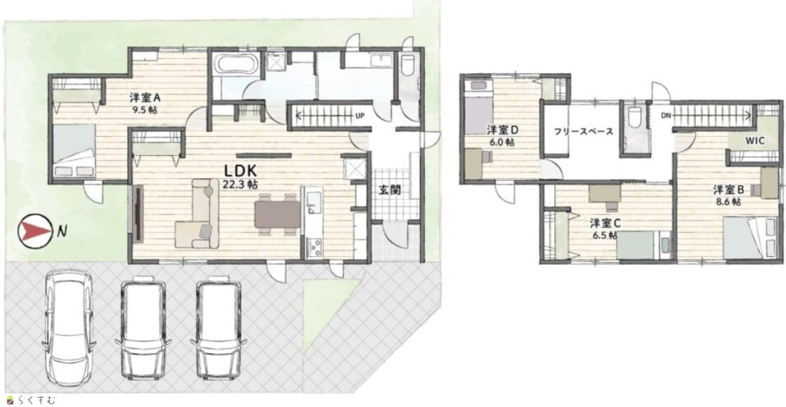
間取り 4LDK (洋室:9.5、8.6、6.5、6.0)
LDK22.3
専有面積 - バルコニー面積 -
その他面積 - 駐車場 -
管理費 - 修繕積立金 -
現況 空家
仲介手数料 704,496円
利用制限 -
設備 角地、閑静な住宅街、スーパー近く、LDK15帖以上、全室フローリング、駐車2台可能、駐車3台以上可能、TVインターホン、複層ガラス、システムキッチン、浄水器、食器洗浄乾燥機、3口コンロ、追いだき機能付き、浴室乾燥機、バス1坪以上、温水洗浄便座、トイレ2か所以上、シャワー付き洗面台、エアコンあり、都市ガス、上水道、下水道、ウォークインクローゼット、全居室収納あり、シューズBOX、内装リフォーム済み、外装リフォーム済み、リノベーション物件
取引態様 一般
備考 ■4SLDK+駐車3台可能!■耐震改修、断熱改修済■住宅設備すべて新品■北東角地■スーパー、コンビニ徒歩圏内■年間固定資産税額44,960円
※ローンシュミレーション※
2,198万円/40年返済/変動金利1.125%/月々56,886円
2,198万円/35年返済/変動金利1.125%/月々63,335円
2,198万円/30年返済/変動金利1.125%/月々71,965円
取り扱い会社

合同会社 さくら中央不動産

新潟県見附市今町4-8-21

情報登録日 2026/05/02 次回更新予定日 2026/06/06
取引条件有効期限 2025/12/31
  • 見附市今町5丁目【リノベ住宅】
    合同会社 さくら中央不動産
  • この物件を問い合わせる/無料
  • TEL: 0258-89-8842 0258-89-8842

この物件の地図・周辺情報・行政情報

この物件の周辺情報・行政情報を詳しく見る
【周辺情報】
物件の近くにあるコンビニや銀行・学校など、アイコン付のマップで詳しく表示できます!
【行政情報】
水道料や下水道料・ガス料金など、暮らしに関係のある情報を表示しています。
セブン-イレブン 見附今町7丁目店(コンビニ)まで640m
マルイ 今町国道店(スーパー)まで390m
venolipa(スーパー)まで360m
ひらせい生鮮広場 見附店(スーパー)まで500m
石川医院(病院)まで750m
セブン銀行ATM(銀行)までm

※カメラのアイコンがある場合は、マウスをポイントするとその施設の画像がご覧いただけます。


担当取扱い店舗情報

取扱い店舗画像
合同会社 さくら中央不動産
TEL: 0258-89-8842
所在地: 新潟県見附市今町4-8-21
交通:
営業時間: 10:00~18:00/定休日:毎週水曜日・他
免許番号: 新潟県知事(2)第5521号
所属団体名: 公社 全日本不動産協会 新潟県本部
取引態様: 一般
ホームページ: https://sakura-cf.net/