新潟県柏崎市米山台4丁目6-15 中古一戸建て 6LDK 6,280,000円の物件情報

閑静な住宅街、車庫付き、水回りリフォーム済

物件名/所在地 詳細 価格
米山台4丁目中古住宅
新潟県柏崎市米山台4丁目6-15
  • 土地面積
    :240.24㎡ /72.67坪
  • 建物面積
    :142.62㎡ /43.14坪
  • 間取り
    :6LDK
  • 築年月
    :1977年11月
6,280,000
  • 米山台4丁目中古住宅
    有限会社イッケン
  • この物件を問い合わせる/無料
  • TEL: 0257-22-1422 0257-22-1422

物件画像

外観
間取り
物件画像
※画像クリックで拡大表示
外観
物件画像
※画像クリックで拡大表示
車庫
詳細画像
物件画像
間取り1階
物件画像
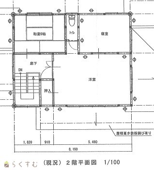
間取り2階
物件画像
洋室
物件画像
キッチン
物件画像
玄関
物件画像
トイレ
物件画像
洗面室
物件画像
バスルーム
物件画像
キッチン設備
物件画像
キッチン
物件画像
和室
物件画像
和室
物件画像
廊下
物件画像
階段
物件画像
2階廊下
物件画像
2階トイレ
物件画像
2階洋室
物件画像
2階収納
物件画像
外観
物件画像
地図画像


物件概要

閑静な住宅街、車庫付き、水回りリフォーム済
物件コード 00205-200029
物件名 米山台4丁目中古住宅
交通 駅:信越線 柏崎駅から徒歩30分、バス:米山台第4公園から徒歩4分
物件所在地 新潟県柏崎市米山台4丁目6-15
物件種別 中古一戸建て
構造 木造 階建 地上2階建
建ぺい率/容積率 50%/100%
建物面積 1階 90.6㎡/ 2階 52.02㎡/ 計 142.62㎡ /43.14坪
土地面積 240.24㎡ /72.67坪
築年月 1977年11月(築48年)
入居(引き渡し)時期 随時入居(引き渡し)可
用途地域 第1種低層住居専用地域 地目 宅地
都市計画 非線引き都市計画区域 学校区 剣野小学校(794m)・第三中学校(499m)
形状 間口 13.4m × 奥行 17.93m 道路 南西側公道、幅5m
私道 - その他の制限 -
  • 米山台4丁目中古住宅
    有限会社イッケン
  • この物件を問い合わせる/無料
  • TEL: 0257-22-1422 0257-22-1422

物件詳細情報

所在階/階数 - 号室 -
販売価格 6,280,000円 方位 南西
間取り 6LDK (和室:8畳、6畳、6畳) (洋室:8、12、6)
9.5
専有面積 - バルコニー面積 -
その他面積 - 駐車場 -
管理費 - 修繕積立金 -
現況 空家
仲介手数料 330,000円
利用制限 -
設備 閑静な住宅街、駐車2台可能、システムキッチン、追いだき機能付き、温水洗浄便座、トイレ2か所以上、シャワー付き洗面台、都市ガス、即引き渡し可能、別荘、田舎暮らし
取引態様 専任
備考 閑静な住宅街、車庫付き、水回りリフォーム済
取り扱い会社

有限会社イッケン

新潟県柏崎市錦町8-29

情報登録日 2025/12/27 次回更新予定日 2026/06/05
取引条件有効期限 2026/12/31
  • 米山台4丁目中古住宅
    有限会社イッケン
  • この物件を問い合わせる/無料
  • TEL: 0257-22-1422 0257-22-1422

この物件の地図・周辺情報・行政情報

この物件の周辺情報・行政情報を詳しく見る
【周辺情報】
物件の近くにあるコンビニや銀行・学校など、アイコン付のマップで詳しく表示できます!
【行政情報】
水道料や下水道料・ガス料金など、暮らしに関係のある情報を表示しています。
エムケイ薬局 かしわざき店(ドラッグストア)まで1090m
国立病院機構 新潟病院(病院)まで1400m

※カメラのアイコンがある場合は、マウスをポイントするとその施設の画像がご覧いただけます。


担当取扱い店舗情報

取扱い店舗画像
有限会社イッケン
TEL: 0257-22-1422
所在地: 新潟県柏崎市錦町8-29
交通: 駅前公園、向かい♪
営業時間: 9:00~17:30 土曜日10:00~15:00/定休日:日曜・祝日
免許番号: 新潟県知事(8)第3675号
所属団体名: 公社 新潟県宅地建物取引業協会 柏崎支部
取引態様: 専任
ホームページ: https://www.ikken.co.jp/