新潟県三島郡出雲崎町大字川西字泉根366番地1 中古一戸建て 9DK 12,000,000円の物件情報

出雲崎町川西。風情豊かな庭を望む、9DKの中古住宅。敷地内大型車庫・作業所あり。

物件名/所在地 詳細 価格
出雲崎町 中古住宅 土地557坪・建物74坪
新潟県三島郡出雲崎町大字川西字泉根366番地1
  • 土地面積
    :1,842.32㎡ /557.3坪
  • 建物面積
    :247.22㎡ /74.78坪
  • 間取り
    :9DK
  • 築年月
    :1990年11月
12,000,000
  • 出雲崎町 中古住宅 土地557坪・建物74坪
    株式会社 ライフプラン
  • この物件を問い合わせる/無料
  • TEL: 0257-23-0500 0257-23-0500

物件画像

外観
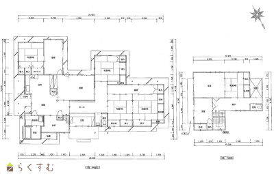
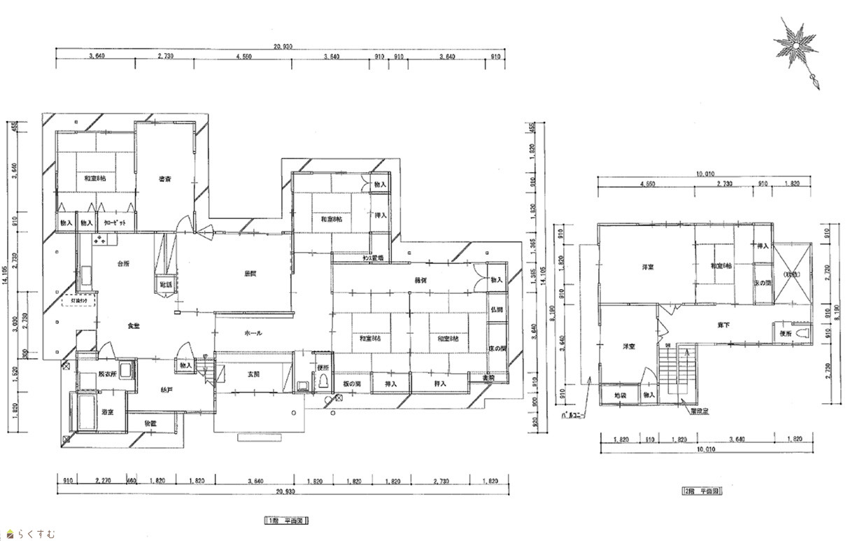
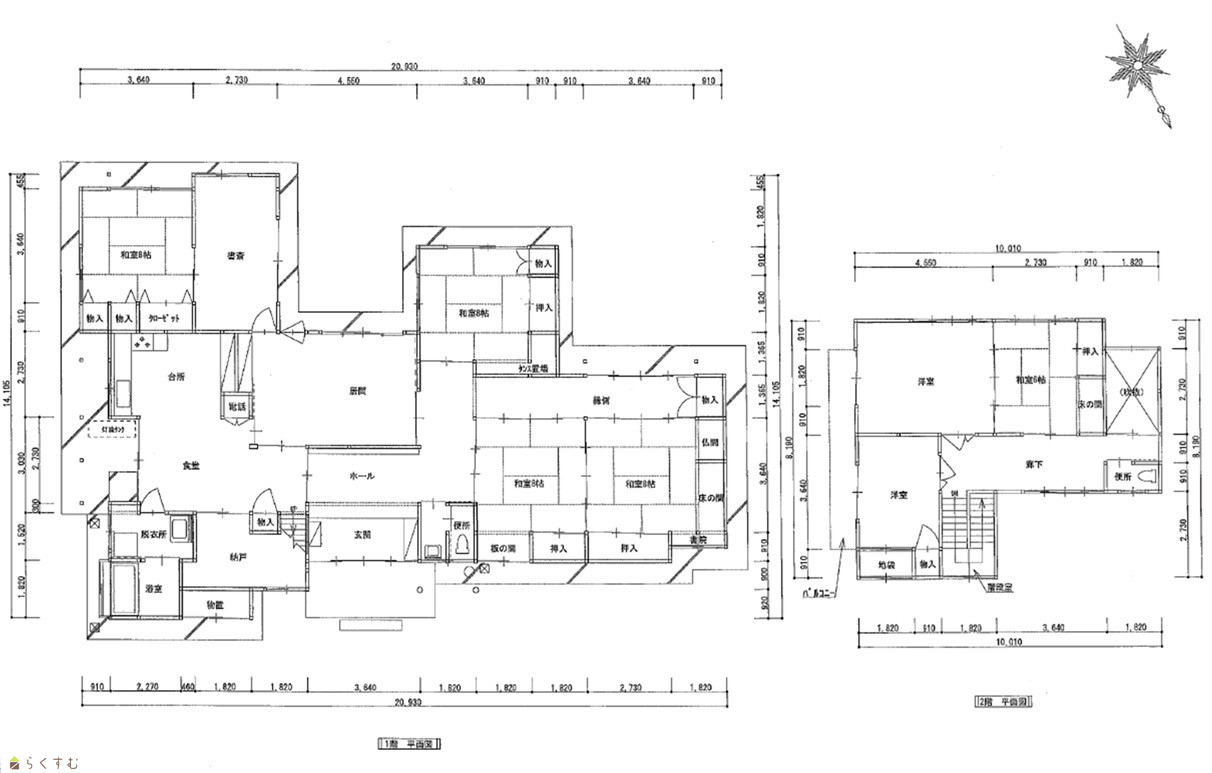
間取り
物件画像
※画像クリックで拡大表示
外観
物件画像
※画像クリックで拡大表示
間取図
詳細画像
物件画像
外観
物件画像
1階居間(CG加工で家財消去)
物件画像
1階和室(CG加工で家財消去)
物件画像
1階和室(CG加工で家財消去)
物件画像
1階和室
物件画像
1階(CG加工で家財消去)
物件画像
1階和室
物件画像
台所
物件画像
台所2
物件画像
台所3(CG加工で家財消去)
物件画像
洗面所
物件画像
浴室
物件画像
1階トイレ
物件画像
2階和室
物件画像
2階洋室
物件画像
2階洋室
物件画像
2階トイレ
物件画像
物件画像
前面道路
物件画像
地図画像


物件概要

周辺は自然豊かで野鳥の鳴き声も聞こえてきます。
物件コード 00190-200295
物件名 出雲崎町 中古住宅 土地557坪・建物74坪
交通 駅:越後線 出雲崎駅から徒歩14分、バス:出雲崎役場前から徒歩13分
物件所在地 新潟県三島郡出雲崎町大字川西字泉根366番地1
物件種別 中古一戸建て
構造 木造 階建 地上2階建
建ぺい率/容積率 -
建物面積 1階 187.59㎡/ 2階 59.63㎡/ 計 247.22㎡ /74.78坪
土地面積 1,842.32㎡ /557.3坪
築年月 1990年11月(築35年)
入居(引き渡し)時期 随時入居(引き渡し)可
用途地域 無指定 地目 宅地、雑種地
都市計画 都市計画区域外 学校区 出雲崎小学校(816m)・出雲崎中学校(1,239m)
形状 間口 70.05m × 奥行 49.62m 道路 北東側、町道中ノ谷線(幅員:6.1m~11.6m)
私道 - その他の制限 -
  • 出雲崎町 中古住宅 土地557坪・建物74坪
    株式会社 ライフプラン
  • この物件を問い合わせる/無料
  • TEL: 0257-23-0500 0257-23-0500

物件詳細情報

所在階/階数 - 号室 -
販売価格 12,000,000円 方位 北東
間取り 9DK (和室:6畳、8畳、8畳、8畳、8畳) (洋室:6、8、10、12)
専有面積 - バルコニー面積 -
その他面積 58.53㎡ /17.7坪  敷地内、作業所 駐車場 -
管理費 - 修繕積立金 -
現況 空家
仲介手数料 462,000円
利用制限 -
設備 日当り良好、閑静な住宅街、駐車3台以上可能、3口コンロ、ガスコンロ設置済み、追いだき機能付き、バス1坪以上、トイレ2か所以上、シャワー付き洗面台、LPG、上水道、下水道、2世帯向き、即引き渡し可能、別荘、田舎暮らし、事業向け
取引態様 一般
備考 ・建物内外部の家財類は、引渡時までに売主にて撤去します。※一部写真は、CGで家具等を消したものであり、現況と異なる可能性がございます。
・現況でのお引渡しとなります。(令和7年6月、建物内部調査記録あり)※建物に傾きがあります。
・居宅面積は、247.22㎡(74.78坪)。その他、敷地内に作業所があります。(58.53㎡/17.70坪)
取り扱い会社

株式会社 ライフプラン

新潟県柏崎市半田2-1-17

情報登録日 2025/08/19 次回更新予定日 2026/04/21
取引条件有効期限 2026/03/31
  • 出雲崎町 中古住宅 土地557坪・建物74坪
    株式会社 ライフプラン
  • この物件を問い合わせる/無料
  • TEL: 0257-23-0500 0257-23-0500

この物件の地図・周辺情報・行政情報

この物件の周辺情報・行政情報を詳しく見る
【周辺情報】
物件の近くにあるコンビニや銀行・学校など、アイコン付のマップで詳しく表示できます!
【行政情報】
水道料や下水道料・ガス料金など、暮らしに関係のある情報を表示しています。
出雲崎町役場(市区町村機関)まで1500m
出雲崎町立出雲崎小学校(学校)まで1000m

※カメラのアイコンがある場合は、マウスをポイントするとその施設の画像がご覧いただけます。


担当取扱い店舗情報

取扱い店舗画像
株式会社 ライフプラン
TEL: 0257-23-0500
所在地: 新潟県柏崎市半田2-1-17
交通: R8バイパス「半田中央」交差点角
営業時間: 9:00~17:30/定休日:土・日・祝(ご予約にて対応可能です。)
免許番号: 新潟県知事(9)第3314号
所属団体名: 公社 宅地建物取引業協会 柏崎支部
取引態様: 一般
ホームページ: http://www.kk-life-plan.co.jp/