新潟県長岡市滝谷町244 中古一戸建て 4LDK 22,000,000円の物件情報

駅近だけど田舎暮らし物件です!平成25年大幅リフォーム済み!リビングに薪ストーブあり!スローライフにピッタリの物件です♪

物件名/所在地 詳細 価格
滝谷町 中古住宅(平成25年リフォーム済み)
新潟県長岡市滝谷町244
  • 土地面積
    :1,395.83㎡ /422.23坪
  • 建物面積
    :170.91㎡ /51.7坪
  • 間取り
    :4LDK
  • 築年月
    :不詳
22,000,000
  • 滝谷町 中古住宅(平成25年リフォーム済み)
    有限会社 遠藤機販
  • この物件を問い合わせる/無料
  • TEL: 0258-28-3200 0258-28-3200

物件画像

外観
間取り
物件画像
※画像クリックで拡大表示
外観
物件画像
※画像クリックで拡大表示
間取り
詳細画像
物件画像
キッチン
物件画像
リビング
物件画像
リビング
物件画像
洋室・和室
物件画像
外観
物件画像
外観
物件画像
外観
物件画像
外観
物件画像
物件画像
印刷用地図


物件概要

駅近だけど田舎暮らし物件です!平成25年大幅リフォーム済み!リビングに薪ストーブあり!スローライフにピッタリの物件です♪
物件コード 00186-200088
物件名 滝谷町 中古住宅(平成25年リフォーム済み)
交通 駅:上越線 越後滝谷駅から徒歩9分、バス:滝谷2丁目から徒歩1分
物件所在地 新潟県長岡市滝谷町244
物件種別 中古一戸建て
構造 木造 階建 地上2階建
建ぺい率/容積率 70%/200%
建物面積 1階 103.85㎡/ 2階 67.06㎡/ 計 170.91㎡ /51.7坪
土地面積 1,395.83㎡ /422.23坪
築年月 不詳
入居(引き渡し)時期 相談
用途地域 無指定 地目 宅地・田・畑
都市計画 市街化調整区域 学校区 岡南小学校(228m)・岡南中学校(432m)
形状 間口 22.2m × 奥行 81.9m 道路 (東側)県道滝谷三和線 (西側) 長岡市道
私道 - その他の制限 農地法3条許可必要(地目 農地部分)
  • 滝谷町 中古住宅(平成25年リフォーム済み)
    有限会社 遠藤機販
  • この物件を問い合わせる/無料
  • TEL: 0258-28-3200 0258-28-3200

物件詳細情報

所在階/階数 - 号室 -
販売価格 22,000,000円 方位
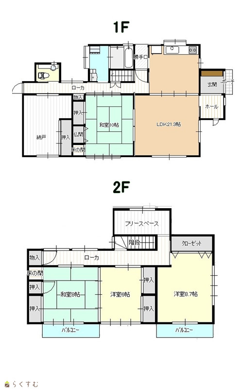
間取り 4LDK (和室:10畳、8畳) (洋室:6、8.7)
LDK21.3
専有面積 - バルコニー面積 -
その他面積 - 駐車場 -
管理費 - 修繕積立金 -
現況 空家
仲介手数料 792,000円
利用制限 -
設備 LDK15帖以上、駐車3台以上可能、駐車場融雪設備あり、TVインターホン、複層ガラス、デインプルキー、システムキッチン、3口コンロ、追いだき機能付き、バス1坪以上、温水洗浄便座、シャワー付き洗面台、エアコンあり、LPG、上水道、下水道、全居室収納あり、シューズBOX、田舎暮らし
取引態様 一般
備考 都市計画法第34条12号区域内、都市計画法第43条許可を受けることで宅地部分に専用住宅の再建築は可、但し市街化区域に土地を所有の場合は再建築不可。  公簿面積1395.83㎡のうち農地部分404㎡。所有権移転の為には農地法3条許可が必要となります(別途費用、農地部分住宅建築不可)、敷地内消雪用浅井戸あり 建築確認・検査済み証は平成25年の時のものがございます。※仲介業者様へ 仲介手数料は当社との折半でお願いします。※水道管の引き込みが隣地を経由しておりますが現状渡しとなります。(隣地所有者承諾済み)※内部家財は撤去予定ですが希望であれば残置可能です。※ハウスクリーニング後引渡し
取り扱い会社

有限会社 遠藤機販

新潟県長岡市藤沢1-8-20

情報登録日 2025/10/02 次回更新予定日 2026/06/06
取引条件有効期限 2026/01/02
  • 滝谷町 中古住宅(平成25年リフォーム済み)
    有限会社 遠藤機販
  • この物件を問い合わせる/無料
  • TEL: 0258-28-3200 0258-28-3200

この物件の地図・周辺情報・行政情報

この物件の周辺情報・行政情報を詳しく見る
【周辺情報】
物件の近くにあるコンビニや銀行・学校など、アイコン付のマップで詳しく表示できます!
【行政情報】
水道料や下水道料・ガス料金など、暮らしに関係のある情報を表示しています。

担当取扱い店舗情報

取扱い店舗画像
有限会社 遠藤機販
TEL: 0258-28-3200
所在地: 新潟県長岡市藤沢1-8-20
交通:
営業時間: 8:30~18:00/定休日:日曜…祝日
免許番号: 新潟県知事(9)第3297号
所属団体名: 公社 新潟県宅地建物取引業協会 長岡支部
取引態様: 一般
ホームページ: http://endokihan.net