新潟県柏崎市穂波町4番15号 投資物件・その他 220,000,000円の物件情報

物件名/所在地 詳細 価格
表面利回り
リセスホナミ
新潟県柏崎市穂波町4番15号
  • 土地面積
    :1,530.39㎡ /462.94坪
  • 建ぺい率
    :60%
  • 容積率
    :200%
220,000,000
11.39%
(満室想定時)
  • リセスホナミ
    株式会社オフィス・シナダ
  • この物件を問い合わせる/無料
  • TEL: 0257-41-5077 0257-41-5077

物件画像

外観
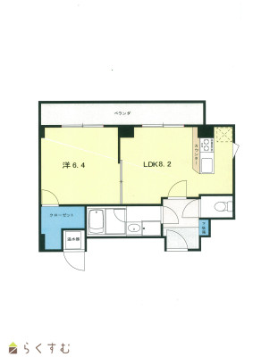
間取り
物件画像
※画像クリックで拡大表示
外観
物件画像
※画像クリックで拡大表示
間取り
詳細画像
物件画像
001
物件画像
002
物件画像
003
物件画像
004
物件画像
005
物件画像
006
物件画像
007
物件画像
008
物件画像
009
物件画像
010
物件画像
011
物件画像
宅配ボックス
物件画像
管理人室
物件画像
エレベーター
物件画像
コインランドリー


物件概要

物件コード 00178-200021
物件名 リセスホナミ
交通 駅:越後線 柏崎駅から徒歩9分
物件所在地 新潟県柏崎市穂波町4番15号
物件種別 投資物件・その他
物件区分 1棟売りマンション・アパート
構造 鉄筋コン 階建 地上7階建
建ぺい率/容積率 60%/200%
建物面積 1階 222.04㎡/ 2階 271.22㎡/ 3階 271.22㎡/ 4階 271.22㎡/ 計 1,849.36㎡ /559.43坪
土地面積 1,530.39㎡ /462.94坪
築年月 1990年3月(築35年)
入居(引き渡し)時期 相談
用途地域 第1種中高層住居専用地域 地目 宅地  (現状:宅地)
都市計画 非線引き都市計画区域 学校区 枇杷島小学校(410m)・鏡が沖中学校(668m)
形状 間口 37m × 奥行 53m 道路 柏崎7-143号線
私道 - その他の制限 -
  • リセスホナミ
    株式会社オフィス・シナダ
  • この物件を問い合わせる/無料
  • TEL: 0257-41-5077 0257-41-5077

物件詳細情報

所在階/階数 1階/7階 号室 -
販売価格 220,000,000円 方位 -
表面利回り(満室想定時) 11.39% 満室想定年収 25,068,000円 (想定月収: 2,089,000円 )
現行利回り 10.31% 現行年間年収 22,692,000円
住戸数 45
間取り 1K、1LDK、2Kその他
専有面積 18.72㎡ /5.66坪 ~ 49.65㎡ /15.01坪 バルコニー面積 -
その他面積 - 駐車場 敷地内
管理費 - 修繕積立金 -
現況 賃貸中
仲介手数料 7,326,000円
利用制限 -
設備 エレベーター、駐車場(近隣含む)、公営水道、下水道、高利回り物件
取引態様 一般
備考 -
取り扱い会社

株式会社オフィス・シナダ

新潟県柏崎市西港町4番19号

情報登録日 2025/09/05 次回更新予定日 2025/11/19
取引条件有効期限 2025/12/31
  • リセスホナミ
    株式会社オフィス・シナダ
  • この物件を問い合わせる/無料
  • TEL: 0257-41-5077 0257-41-5077

この物件の地図・周辺情報・行政情報

この物件の周辺情報・行政情報を詳しく見る
【周辺情報】
物件の近くにあるコンビニや銀行・学校など、アイコン付のマップで詳しく表示できます!
【行政情報】
水道料や下水道料・ガス料金など、暮らしに関係のある情報を表示しています。

担当取扱い店舗情報

取扱い店舗画像
株式会社オフィス・シナダ
TEL: 0257-41-5077
所在地: 新潟県柏崎市西港町4番19号
交通: 柏崎駅
営業時間: 10:00~18:00土日は10:00~17:00/定休日:水曜日・祝日
免許番号: 新潟県知事(2)第5342号
所属団体名: 公社 宅地建物取引協会 柏崎支部
取引態様: 一般
ホームページ: http://www.officeshinada.co.jp/