新潟県長岡市今井2丁目187番2 新築一戸建て 3LDK 22,550,000円の物件情報

◆アクセントクロス3面分プレゼントキャンペーン実施中!■周辺には公園、スーパーなど生活利便施設が充実! ■お車でのお出かけにも不便のない立地です! ■前面道路もゆとりがありストレスなく駐車ができます♪ ■シューズクロークがあるので玄関まわりもすっきりします。

物件名/所在地 詳細 価格
長岡市今井2丁目 建売住宅
新潟県長岡市今井2丁目187番2
  • 土地面積
    :150.44㎡ /45.5坪
  • 建物面積
    :91.08㎡ /27.55坪
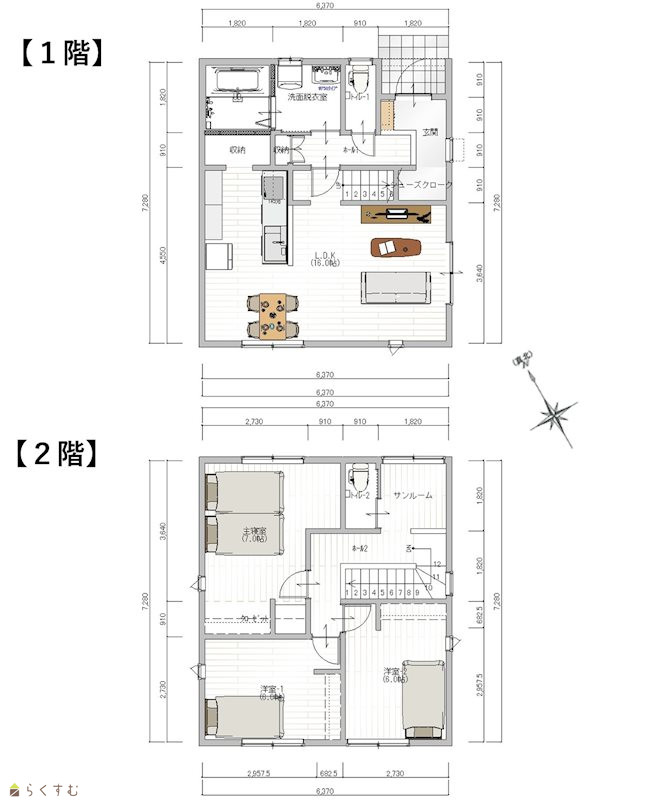
  • 間取り
    :3LDK
  • 築年月
    :2023年12月
22,550,000
  • 長岡市今井2丁目 建売住宅
    ハーバーエステート株式会社 
  • この物件を問い合わせる/無料
  • TEL: 0120-228-815 0120-228-815

物件画像

外観
間取り
物件画像
※画像クリックで拡大表示
LDK※家具はCGですので、物件に含まれません
物件画像
※画像クリックで拡大表示
間取り
詳細画像
物件画像
外観
物件画像
LDK
物件画像
LDK
物件画像
キッチン
物件画像
キッチン
物件画像
洗面脱衣室
物件画像
浴室
物件画像
1Fトイレ
物件画像
サンルーム
物件画像
主寝室
物件画像
洋室
物件画像
洋室
物件画像
2Fトイレ
物件画像
玄関
物件画像
シューズクローク


物件概要

物件コード 00154-200726
物件名 長岡市今井2丁目 建売住宅
交通 駅:信越線 宮内駅から徒歩19分、バス:今宮橋から徒歩5分
物件所在地 新潟県長岡市今井2丁目187番2
物件種別 新築一戸建て
構造 木造 階建 地上2階建
建ぺい率/容積率 50%/80%
建物面積 1階 44.71㎡/ 2階 46.37㎡/ 計 91.08㎡ /27.55坪
土地面積 150.44㎡ /45.5坪
築年月 2023年12月(築1年)
入居(引き渡し)時期 随時入居(引き渡し)可
用途地域 第1種低層住居専用地域 地目 宅地
都市計画 市街化区域 学校区 宮内小学校(1,300m)・宮内中学校(1,300m)
形状 間口 10.50m 道路 公道 北東 幅員6.0m
私道 - その他の制限 法22条指定区域、景観法、水防法、土地再生特別措置法
  • 長岡市今井2丁目 建売住宅
    ハーバーエステート株式会社 
  • この物件を問い合わせる/無料
  • TEL: 0120-228-815 0120-228-815

物件詳細情報

所在階/階数 - 号室 -
販売価格 22,550,000円 方位 -
間取り 3LDK
専有面積 - バルコニー面積 -
その他面積 - 駐車場 -
管理費 - 修繕積立金 -
現況 空家
仲介手数料 810,150円
利用制限 -
設備 前面道路6m以上、閑静な住宅街、スーパー近く、LDK15畳以上、駐車場2台以上、システムキッチン、IHクッキングヒーター、追いだき機能付き、バス1坪以上、温水洗浄便座、シャワー付き洗面台、オール電化、上水道、下水道、電気、シューズインクローゼット、即引き渡し可能
取引態様 一般
備考 アクセントクロス3面分プレゼントキャンペーン実施中!
対象となるお客様:
2025年12月31日までに弊社で対象物件のご契約・お引渡しを完了していただいたお客様。
対象物件に対して弊社に直接お問い合わせをいただいたお客様。(他社様の紹介などは除きます。)
プレゼント内容:
・当社指定の壁紙カタログ(標準商品)からお色・種類を選択頂けます。
・施工会社は当社指定となりますのでご了承ください。

建築確認番号 NK第23本01017号

キッチン以外のコンセントは全て3口コンセントです。
全居室にテレビコンセントが併設しています。
屋内で郵便を受取れる埋込式ポストを採用しています。

【その他費用】
消雪組合加入金:104,000円/一括
消雪組合年会費:5,000円/年
取り扱い会社

ハーバーエステート株式会社 

新潟県長岡市神田町2-1-2

情報登録日 2025/11/02 次回更新予定日 2025/11/17
取引条件有効期限 2025/10/31
  • 長岡市今井2丁目 建売住宅
    ハーバーエステート株式会社 
  • この物件を問い合わせる/無料
  • TEL: 0120-228-815 0120-228-815

この物件の地図・周辺情報・行政情報

この物件の周辺情報・行政情報を詳しく見る
【周辺情報】
物件の近くにあるコンビニや銀行・学校など、アイコン付のマップで詳しく表示できます!
【行政情報】
水道料や下水道料・ガス料金など、暮らしに関係のある情報を表示しています。

担当取扱い店舗情報

取扱い店舗画像
ハーバーエステート株式会社 
TEL: 0120-228-815
所在地: 新潟県長岡市神田町2-1-2
交通: 長岡駅
営業時間: 10:00~18:00/定休日:無休
免許番号: 国土交通大臣(2)第9588号
所属団体名: 全日本不動産協会 新潟県本部
取引態様: 一般
ホームページ: http://www.niigata-tochi.com/