価格改定 2400万→2100万円 パルス徒歩1分、原信徒歩3分など商業施設が至近距離の好立地。6LDKの和洋ミックスの風情ある広々とした庭園付き住宅です!
| 物件名/所在地 | 詳細 | 価格 |
|---|---|---|
| 豊1丁目 売中古住宅
新潟県長岡市豊1丁目7番12号 |
|
21,000,000円 |
| 近隣にショッピングセンター等の商業施設が充実している6LDKの和洋ミックスの風情ある和風住宅です! | |||
| 物件コード | 00129-200064 | ||
|---|---|---|---|
| 物件名 | 豊1丁目 売中古住宅 | ||
| 交通 | 駅:上越新幹線 長岡駅から徒歩31分 | ||
| 物件所在地 | 新潟県長岡市豊1丁目7番12号 | ||
| 物件種別 | 中古一戸建て | ||
| 構造 | 木造 | 階建 | 地上2階建 |
| 建ぺい率/容積率 | 70%/200% | ||
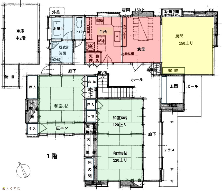
| 建物面積 | 1階 133.55㎡/ 2階 69.78㎡/ 計 203.33㎡ /61.5坪 | ||
| 土地面積 | 338㎡ /102.24坪 | ||
| 築年月 | 1983年7月(築42年) | ||
| 入居(引き渡し)時期 | 相談 | ||
| 用途地域 | 第1種中高層住居専用地域 | 地目 | 宅地 (現状:空き家) |
| 都市計画 | 市街化区域 | 学校区 | 川崎東小学校(305m)・東北中学校(354m) |
| 形状 | 間口 16m × 奥行 22m | 道路 | 東側市道:幅員6.1m / 北側市道:幅員6m |
| 私道 | - | その他の制限 | 第二種高度地区・建築基準法22条区域・まちなか居住区域 |
| 所在階/階数 | - | 号室 | - |
|---|---|---|---|
| 販売価格 | 21,000,000円 | 方位 | - |
| 間取り | 6LDK (和室:8畳、8畳、6畳、6畳) (洋室:8、8) | ||
| 専有面積 | - | バルコニー面積 | - |
| その他面積 | - | 駐車場 | - |
| 管理費 | - | 修繕積立金 | - |
| 現況 | 空家 | ||
| 仲介手数料 | 759,000円 | ||
| 利用制限 | - | ||
| 設備 | 角地、日当り良好、閑静な住宅街、スーパー近く、エアコンあり、都市ガス、上水道、下水道 | ||
| 取引態様 | 一般 | ||
| 備考 | ・売主契約不適合責任免責 ・消雪組合加入必要 年間24,000円 ・シロアリ駆除工事2022年1月11日施工済(5年間の保証有り) ・隣地(50坪)も一緒に購入可 ・内覧希望の方は事前にご連絡下さい。 |
||
| 取り扱い会社 |
有限会社 北日本不動産 新潟県長岡市平島1丁目139番地 |
||
| 情報登録日 | 2025/09/01 | 次回更新予定日 | 2026/04/21 |
| 取引条件有効期限 | 2025/06/15 | ||
|
良食生活館 川崎店(スーパー)まで130m 原信 川崎店(スーパー)まで350m 美園内科クリニック(病院)まで290m |
長岡信用金庫 美園支店(銀行)まで130m セブン銀行ATM(銀行)まで350m |
※カメラのアイコンがある場合は、マウスをポイントするとその施設の画像がご覧いただけます。
| TEL: | 0258-34-1441 | |
|---|---|---|
| 所在地: | 新潟県長岡市平島1丁目139番地 | |
| 交通: | 長岡駅 | |
| 営業時間: | 8:30~17:30/定休日:土日祝祭日 | |
| 免許番号: | 新潟県知事(16)第472号 | |
| 所属団体名: | 新潟県宅地建物取引協会 長岡支部 | |
| 取引態様: | 一般 | |
| ホームページ: | http://kita2hon.co.jp | |