新潟県長岡市花園3丁目10番15 新築一戸建て 4LDK 28,800,000円の物件情報

豊田小学区エリア。マルイまで徒歩7分で買い物もラクラク♪国道へのアクセスも良く、休日のお出かけも便利な立地です♪4LDKの広々LDK!

物件名/所在地 詳細 価格
花園 新築建売住宅 豊田小学校区
新潟県長岡市花園3丁目10番15
  • 土地面積
    :145.96㎡ /44.15坪
  • 建物面積
    :92.74㎡ /28.05坪
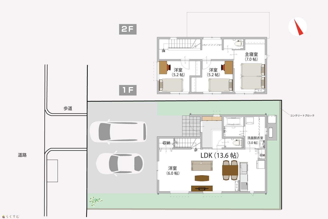
  • 間取り
    :4LDK
  • 築年月
    :2025年11月
28,800,000
  • 花園 新築建売住宅 豊田小学校区
    ダイエープロビス株式会社
  • この物件を問い合わせる/無料
  • TEL: 0258-24-1110 0258-24-1110

物件画像

外観
間取り
物件画像
※画像クリックで拡大表示
外観
物件画像
※画像クリックで拡大表示
間取り
詳細画像
物件画像
玄関
物件画像
リビング
物件画像
リビング
物件画像
ダイニング
物件画像
ダイニング
物件画像
キッチン
物件画像
収納
物件画像
洋室
物件画像
洗面所
物件画像
洗面所
物件画像
バスルーム
物件画像
トイレ
物件画像
寝室
物件画像
洋室
物件画像
洋室
物件画像
洋室
物件画像
物干しスペース
物件画像
トイレ
物件画像
駐車場
物件画像
印刷用地図


物件概要

LDKとつながる1部屋がある4LDK、お子様が小さいときはお昼寝や遊び場スペースとして広々過ごせます!
物件コード 00101-200404
物件名 花園 新築建売住宅 豊田小学校区
交通 駅:信越線 長岡駅から徒歩24分、バス:花園団地入口から徒歩1分
物件所在地 新潟県長岡市花園3丁目10番15
物件種別 新築一戸建て
構造 木造 階建 地上2階建
建ぺい率/容積率 50%/100%
建物面積 1階 51.34㎡/ 2階 41.4㎡/ 計 92.74㎡ /28.05坪
土地面積 145.96㎡ /44.15坪
築年月 2025年11月(築6ヶ月)
入居(引き渡し)時期 2026年2月入居
用途地域 第1種低層住居専用地域 地目 宅地  (現状:宅地)
都市計画 市街化区域 学校区 豊田小学校(1,000m)・旭岡中学校(950m)
形状 間口 8.9m × 奥行 16.2m 道路 西側 市道 16m
私道 - その他の制限 -
  • 花園 新築建売住宅 豊田小学校区
    ダイエープロビス株式会社
  • この物件を問い合わせる/無料
  • TEL: 0258-24-1110 0258-24-1110

物件詳細情報

所在階/階数 - 号室 -
販売価格 28,800,000円 方位 西
間取り 4LDK (洋室:7、6、5.2、5.2)
LDK13.6帖
専有面積 - バルコニー面積 -
その他面積  洗面室3帖 駐車場 -
管理費 - 修繕積立金 -
現況 空家
仲介手数料 なし
利用制限 -
設備 整形地、前面道路6m以上、日当り良好、閑静な住宅街、スーパー近く、BELS/省エネ基準適合認定建物、瑕疵担保保険付き、建物確認・完了検査済証あり、フラット35S適合、全室フローリング、駐車場2台以上、TVインターホン、複層ガラス、ディンプルキー、システムキッチン、カウンターキッチン、IHクッキングヒーター、追いだき機能付き、バス1坪以上、温水洗浄便座、シャワー付き洗面台、エアコン、24時間換気システム、オール電化、省エネ給湯、上水道、下水道、電気、全居室収納あり、シューズBOX、照明器具付き
取引態様 売主
備考 ↓ おすすめポイント ↓

安心のご契約!
~ニコニコ住宅の建物価格について~

表示価格には、
「土地」「建物」
「瑕疵担保責任保険」
「長期保証」「クリーニング費用」
「建物内の展示物撤収費用」
がきちんと含まれますのでご安心ください。

子育て世帯にうれしい、便利で安心な立地が魅力です。

■豊田小学校 徒歩13分
■旭岡中学校 徒歩12分
■花園団地入口バス停 徒歩1分
■マルイ長岡学校町店 徒歩7分
■原信花園店 徒歩9分
■長岡駅 車5分
毎日の通学やお買い物が徒歩圏内で!
国道へのアクセスも良好なので、休日のお出かけにも便利な立地です♪

リビングにつながる6帖の空間。

お子さまが小さいうちは、お昼寝や遊びスペースにぴったり!
キッチンやリビングから見守れるので、安心してのびのびと過ごせます。
将来的に来客時は仕切って客間にも、ご夫婦の寝室としても♪
暮らしの変化に合わせて、ずっと使いやすい場所に。


建売とは思えない!
手厚いアフターサービスが自慢の家

最長60年長期保証の家:
地盤・基礎・構造・雨漏りは基本保証20年
メンテナンス実施で最長60年

設備保証10年:
ユニットバス・システムキッチン・給湯設備・多機能便座

無料点検:10年間で4回実施

緊急駆けつけサービス:24時間365日10年間

建築確認番号 第R07-0520号
取り扱い会社

ダイエープロビス株式会社

新潟県長岡市宝4丁目2番地25

情報登録日 2025/12/20 次回更新予定日 2026/06/05
取引条件有効期限 2026/12/31
  • 花園 新築建売住宅 豊田小学校区
    ダイエープロビス株式会社
  • この物件を問い合わせる/無料
  • TEL: 0258-24-1110 0258-24-1110

この物件の地図・周辺情報・行政情報

この物件の周辺情報・行政情報を詳しく見る
【周辺情報】
物件の近くにあるコンビニや銀行・学校など、アイコン付のマップで詳しく表示できます!
【行政情報】
水道料や下水道料・ガス料金など、暮らしに関係のある情報を表示しています。
セブン-イレブン 長岡土合店(コンビニ)まで790m
マルイ 長岡学校町店(スーパー)まで510m
原信 長岡花園店(スーパー)まで730m
ながおか生協診療所(病院)まで380m
かわじ整形外科(病院)まで750m
第四北越銀行 土合支店(銀行)まで790m
長岡花園郵便局(郵便局)まで480m

※カメラのアイコンがある場合は、マウスをポイントするとその施設の画像がご覧いただけます。


担当取扱い店舗情報

取扱い店舗画像
ダイエープロビス株式会社
TEL: 0258-24-1110
所在地: 新潟県長岡市宝4丁目2番地25
交通: 「宝4丁目」バス停より徒歩2分
営業時間: 8:30 ~ 17:30/定休日:土曜・日曜・祝日
免許番号: 新潟県知事(13)1619号
所属団体名: 新潟県宅地建物取引業協会 長岡支部
取引態様: 売主
ホームページ: https://www.daiei-probis.com