新潟県長岡市大島新町1丁目2046番1、2046番2 新築一戸建て 3LDK 24,900,000円の物件情報

【10/2価格改定しました】 徒歩1分の土手から長岡花火が見えます!アピタやイオンまで車で5分圏内!買い物に便利な立地です!大島小学校区です。前面道路は消雪パイプがあり冬場も安心!

物件名/所在地 詳細 価格
大島新町 新築建売 大島小学校区
新潟県長岡市大島新町1丁目2046番1、2046番2
  • 土地面積
    :165.28㎡ /49.99坪
  • 建物面積
    :87.77㎡ /26.55坪
  • 間取り
    :3LDK
  • 築年月
    :2025年3月
24,900,000
  • 大島新町 新築建売 大島小学校区
    ダイエープロビス株式会社
  • この物件を問い合わせる/無料
  • TEL: 0258-24-1110 0258-24-1110

物件画像

外観
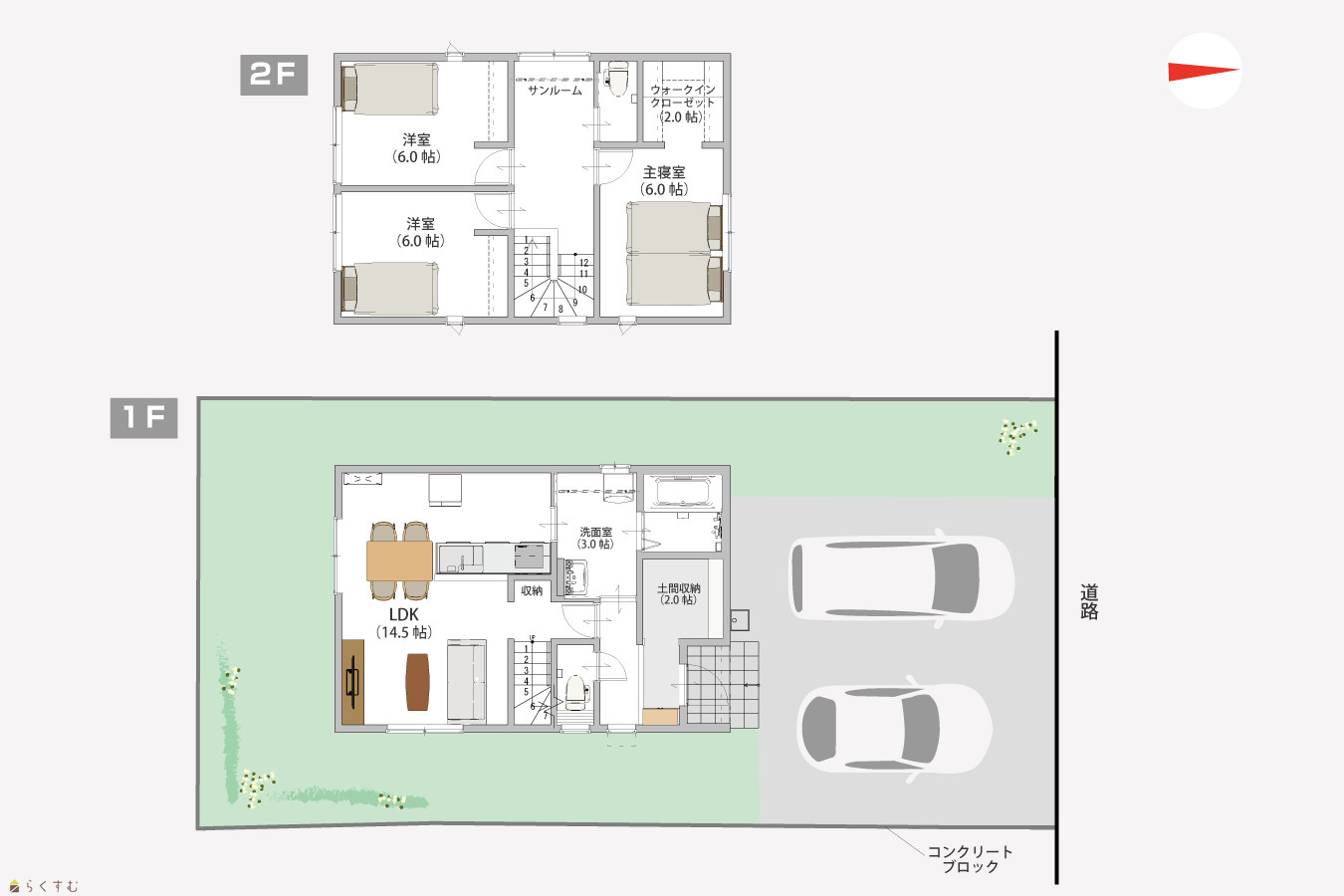
間取り
物件画像
※画像クリックで拡大表示
お家の外壁は、落ち着きのあるブラウン色に仕上げました。
物件画像
※画像クリックで拡大表示
家事をスムーズにするために、家事動線を1直線にまとめました!
詳細画像
物件画像
内観も外観に合わせて、ナチュラルテイストに。
物件画像
LIXILの対面型キッチンです。シンプルで使いやすいです。
物件画像
LIXILのアライズです。1坪のエコベンチタイプです。
物件画像
三面鏡タイプの洗面台です。
物件画像
LIXILの1階トイレ。1階、2階にあります。
物件画像
家事動線を考えた間取りです。
物件画像
14.5帖のLDKです。
物件画像
南向きの掃き出し窓から光が入ります。
物件画像
カーテンレール、カーテン付きです。
物件画像
LDKにエアコンがついています。
物件画像
玄関は窓があり、明るいです。
物件画像
2帖の広さの土間収納があります。
物件画像
洗面室は3帖の広さがあり、サンルームとしてつかえます。
物件画像
2階ホールは物干し金物があり洗濯物干し場になります。
物件画像
6帖の主寝室にはWICがついています。
物件画像
たっぷり収納できるウォークインクローゼットです。
物件画像
2階にもトイレがついています。
物件画像
2階6帖の洋室です。
物件画像
2階6帖の洋室です。
物件画像
地図画像


物件概要

大島小学校まで徒歩7分、大島中学校まで徒歩15分、公園やこどもえんが徒歩10分!バス停徒歩5分!通学に便利な立地です。
物件コード 00101-200403
物件名 大島新町 新築建売 大島小学校区
交通 駅:上越新幹線 長岡駅から徒歩35分、バス:長生橋西詰から徒歩5分
物件所在地 新潟県長岡市大島新町1丁目2046番1、2046番2
物件種別 新築一戸建て
構造 木造 階建 地上1階建
建ぺい率/容積率 60%/200%
建物面積 1階 43.06㎡/ 2階 44.71㎡/ 計 87.77㎡ /26.55坪
土地面積 165.28㎡ /49.99坪
築年月 2025年3月(築11ヶ月)
入居(引き渡し)時期 随時入居(引き渡し)可
用途地域 第1種中高層住居専用地域 地目 宅地  (現状:宅地)
都市計画 市街化区域 学校区 大島小学校(500m)・大島中学校(1,200m)
形状 間口 9.1m × 奥行 18.1m 道路 北側 市道 幅員5.7m 消雪パイプ有
私道 - その他の制限 -
  • 大島新町 新築建売 大島小学校区
    ダイエープロビス株式会社
  • この物件を問い合わせる/無料
  • TEL: 0258-24-1110 0258-24-1110

物件詳細情報

所在階/階数 - 号室 -
販売価格 24,900,000円 方位
間取り 3LDK (洋室:6、6、6)
LDK14.5帖
洗面室3帖、土間収納2帖、WIC2帖
専有面積 - バルコニー面積 -
その他面積 - 駐車場 -
管理費 - 修繕積立金 -
現況 指定なし
仲介手数料 なし
消雪組合加入金 200,000円
消雪組合費:10,000円/年
利用制限 -
設備 整形地、閑静な住宅街、BELS/省エネ基準適合認定建物、瑕疵担保保険付き、フラット35S適合、全室フローリング、駐車場2台以上、庭あり、TVインターホン、複層ガラス、ディンプルキー、システムキッチン、カウンターキッチン、IHクッキングヒーター、追いだき機能付き、バス1坪以上、温水洗浄便座、シャワー付き洗面台、エアコン、24時間換気システム、全室エアコン、オール電化、省エネ給湯、上水道、下水道、電気、ウォークインクローゼット、全居室収納あり、シューズインクローゼット、シューズBOX、照明器具付き
取引態様 売主
備考 ↓ おすすめポイント ↓

安心のご契約!
~ニコニコ住宅の建物価格について~

表示価格には、
「土地」「建物」
「瑕疵担保責任保険」
「長期保証」「クリーニング費用」
「建物内の展示物撤収費用」
がきちんと含まれますのでご安心ください。


家事の時間を短縮できるよう、
家事楽にこだわった間取りです。

アウトドア用品や除雪道具も収納できる!
1坪の広々土間収納があります。

長岡の夏といったら、長岡花火!
長岡花火が、徒歩1分の土手から見れちゃいます!

通学や買い物に便利な立地です!

・リバーサイド千秋 車4分
・イオン長岡 車3分
・原信古正寺店 車3分
・大島小学校 徒歩7分
・大島中学校 徒歩15分
・大島公園 徒歩5分
・大島こどもえん 徒歩8分

LDKエアコン、カーテン、2階トイレ付です!


建売とは思えない!
手厚いアフターサービスが自慢の家

最長60年長期保証の家:
地盤・基礎・構造・雨漏りは基本保証20年
メンテナンス実施で最長60年

設備保証10年:
ユニットバス・システムキッチン・給湯設備・多機能便座

無料点検:10年間で4回実施

緊急駆けつけサービス:24時間365日10年間

建築確認番号 第R06-1799号
取り扱い会社

ダイエープロビス株式会社

新潟県長岡市宝4丁目2番地25

情報登録日 2026/02/07 次回更新予定日 2026/03/06
取引条件有効期限 2026/12/31
  • 大島新町 新築建売 大島小学校区
    ダイエープロビス株式会社
  • この物件を問い合わせる/無料
  • TEL: 0258-24-1110 0258-24-1110

この物件の地図・周辺情報・行政情報

この物件の周辺情報・行政情報を詳しく見る
【周辺情報】
物件の近くにあるコンビニや銀行・学校など、アイコン付のマップで詳しく表示できます!
【行政情報】
水道料や下水道料・ガス料金など、暮らしに関係のある情報を表示しています。
クスリのアオキ 大島店(ドラッグストア)まで840m
第四北越銀行 大島支店(銀行)まで650m
長岡信用金庫 大島支店(銀行)まで660m
長岡大島郵便局(郵便局)まで620m

※カメラのアイコンがある場合は、マウスをポイントするとその施設の画像がご覧いただけます。


担当取扱い店舗情報

取扱い店舗画像
ダイエープロビス株式会社
TEL: 0258-24-1110
所在地: 新潟県長岡市宝4丁目2番地25
交通: 「宝4丁目」バス停より徒歩2分
営業時間: 8:30 ~ 17:30/定休日:土曜・日曜・祝日
免許番号: 新潟県知事(13)1619号
所属団体名: 新潟県宅地建物取引業協会 長岡支部
取引態様: 売主
ホームページ: https://www.daiei-probis.com