新潟県長岡市表町1丁目10-7 中古マンション 1LDK 13,000,000円の物件情報

【居住中につき内見ご希望の場合はお問い合わせ下さい】長岡駅徒歩圏内、室内一部リフォーム済の1SLDK。

物件名/所在地 詳細 価格
リバーヴュー長岡
802号室
新潟県長岡市表町1丁目10-7
  • 専有面積
    :56.36㎡ /17.04坪
  • 間取り
    :1LDK
  • 築年月
    :1992年1月
13,000,000
  • リバーヴュー長岡
    有限会社 グリーン土地
  • この物件を問い合わせる/無料
  • TEL: 0258-32-1222 0258-32-1222

物件画像

外観
間取り
物件画像
※画像クリックで拡大表示
外観
物件画像
※画像クリックで拡大表示
間取図
詳細画像
物件画像
共有部分
物件画像
共有部分
物件画像
共有部分


物件概要

物件コード 00071-200134
物件名 リバーヴュー長岡
交通 駅:上越新幹線 長岡駅から徒歩10分
物件所在地 新潟県長岡市表町1丁目10-7
物件種別 中古マンション
構造 鉄骨鉄筋コン 階建 地上14階建
建ぺい率/容積率 -
建物面積 -
土地面積 -
築年月 1992年1月(築34年)
入居(引き渡し)時期 相談
用途地域 商業地域 地目 宅地
都市計画 市街化区域 学校区 表町小学校(699m)・東中学校(1,324m)
形状 - 道路 -
私道 - その他の制限 -
  • リバーヴュー長岡
    有限会社 グリーン土地
  • この物件を問い合わせる/無料
  • TEL: 0258-32-1222 0258-32-1222

物件詳細情報

所在階/階数 8階/14階 号室 802号室
販売価格 13,000,000円 方位 指定なし
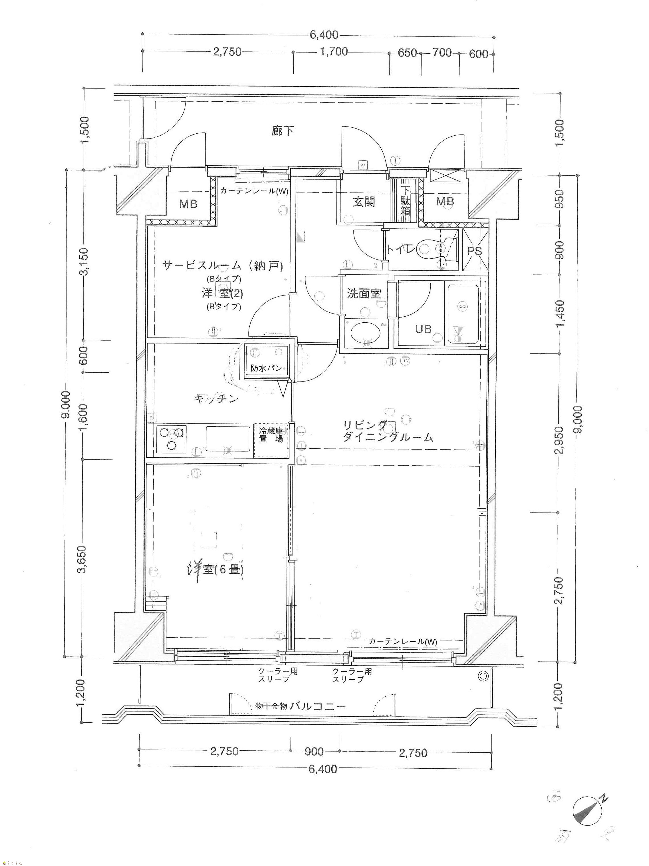
間取り 1LDK (洋室:6)
専有面積 56.36㎡ /17.04坪 バルコニー面積 -
その他面積 - 駐車場 -
管理費 月額11,400円 修繕積立金 月額6,840円
現況 居住中
仲介手数料 495,000円
利用制限 -
設備 10階建て以上、2階以上、最寄駅近く、洗濯機置き場、エレベーター、駐輪場、管理人常駐(日中)、TV付きインターホン、エントランスオートロック、IHクッキングヒーター、温水洗浄便座、シャワー付き洗面台、エアコン、都市ガス、シューズBOX、内装リフォーム済み
取引態様 一般
備考 2SLDK→1SLDKへ間取り変更、水回り等室内一部リフォーム済
取り扱い会社

有限会社 グリーン土地

新潟県長岡市本町3-1-9 アーバンヒルズ長岡1F

情報登録日 2025/11/11 次回更新予定日 2026/04/21
取引条件有効期限 2025/01/31
  • リバーヴュー長岡
    有限会社 グリーン土地
  • この物件を問い合わせる/無料
  • TEL: 0258-32-1222 0258-32-1222

この物件の地図・周辺情報・行政情報

この物件の周辺情報・行政情報を詳しく見る
【周辺情報】
物件の近くにあるコンビニや銀行・学校など、アイコン付のマップで詳しく表示できます!
【行政情報】
水道料や下水道料・ガス料金など、暮らしに関係のある情報を表示しています。

担当取扱い店舗情報

取扱い店舗画像
有限会社 グリーン土地
TEL: 0258-32-1222
所在地: 新潟県長岡市本町3-1-9 アーバンヒルズ長岡1F
交通: 長岡駅
営業時間: 9:00~17:00/定休日:日・祝・祭日
免許番号: 新潟県知事(10)3038号
所属団体名: 新潟県宅地建物取引協会 長岡支部
取引態様: 一般
ホームページ: https://www.greentoti.com