新潟県三条市東大崎字江添1061番1 売土地・分譲地 6,000,000円の物件情報

南側道路に面す!道路幅員10.3m

物件名/所在地 詳細 価格
◆売地◆三条市東大崎
新潟県三条市東大崎字江添1061番1
  • 土地面積
    :284.27㎡ /85.99坪
  • 坪単価
    :69,775円/坪
  • 建ぺい率
    :70%
  • 容積率
    :200%
6,000,000
  • ◆売地◆三条市東大崎
    株式会社 ユタカ不動産
  • この物件を問い合わせる/無料
  • TEL: 0256-35-5825 0256-35-5825

物件画像

外観
間取り
物件画像
※画像クリックで拡大表示
外観
物件画像
※画像クリックで拡大表示
間取り
詳細画像


物件概要

物件コード 00052-200153
物件名 ◆売地◆三条市東大崎
交通 駅:信越線 東三条駅から徒歩29分、バス:東大崎(東)から徒歩7分
物件所在地 新潟県三条市東大崎字江添1061番1
物件種別 売土地・分譲地
物件区分 売土地
構造 - 階建 -
建ぺい率/容積率 70%/200%
建物面積 -
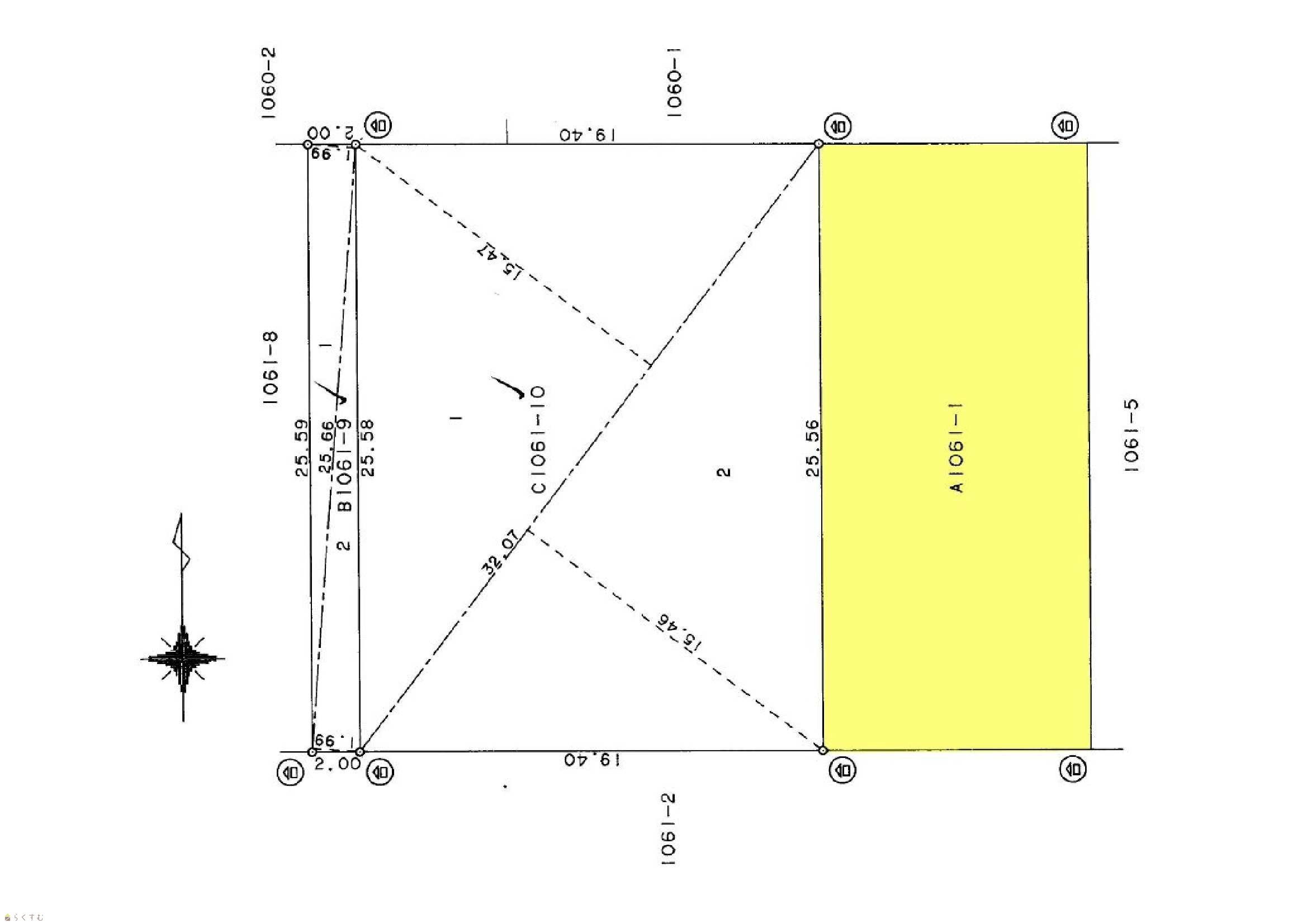
土地面積 284.27㎡ /85.99坪
築年月 -
入居(引き渡し)時期 相談
用途地域 無指定 地目 宅地  (現状:宅地)
都市計画 非線引き都市計画区域 学校区 大崎学園(小)(570m)・大崎学園(中)(570m)
形状 奥行 25.56m 道路 南側10.3m 三条市道
私道 - その他の制限 -
  • ◆売地◆三条市東大崎
    株式会社 ユタカ不動産
  • この物件を問い合わせる/無料
  • TEL: 0256-35-5825 0256-35-5825

物件詳細情報

所在階/階数 - 号室 -
販売価格 6,000,000円 方位 -
間取り -
専有面積 - バルコニー面積 -
その他面積 - 駐車場 -
管理費 - 修繕積立金 -
現況 更地
仲介手数料 330,000円
利用制限 -
設備 前道6m以上、南側道路面す、更地、閑静な住宅街、建築条件なし、所有権、即引き渡し可、電気、上水道(宅地内)、住宅向け
取引態様 一般
備考 -
取り扱い会社

株式会社 ユタカ不動産

新潟県三条市旭町1丁目1-19-3ユタカビル

情報登録日 2026/03/22 次回更新予定日 2026/06/06
取引条件有効期限 2026/07/01
  • ◆売地◆三条市東大崎
    株式会社 ユタカ不動産
  • この物件を問い合わせる/無料
  • TEL: 0256-35-5825 0256-35-5825

この物件の地図・周辺情報・行政情報

この物件の周辺情報・行政情報を詳しく見る
【周辺情報】
物件の近くにあるコンビニや銀行・学校など、アイコン付のマップで詳しく表示できます!
【行政情報】
水道料や下水道料・ガス料金など、暮らしに関係のある情報を表示しています。

担当取扱い店舗情報

取扱い店舗画像
株式会社 ユタカ不動産
TEL: 0256-35-5825
所在地: 新潟県三条市旭町1丁目1-19-3ユタカビル
交通: 東三条駅
営業時間: 9:00~18:00/定休日:火曜・祭日
免許番号: 新潟見知事(9)第3203号
所属団体名: 新潟県宅地建物取引協会 三条支部
取引態様: 一般
ホームページ: http://www.yutakafudousan.com